Astora Olive Club House

Eladó téglalakás
Bicske

57 720 000 Ft57.72 M Ft 901 875 Ft/m2
3 szoba
64 m2
építés éve:2025

Részletes adatok

Fűtés: Házközponti egyedi méréssel
Közmű: Gáz, Csatorna
Energetikai besorolás: Nem adta meg a hirdető

Az OTP Bank lakáshitel ajánlataFizetett hirdetés

+36 70 681
Pap Éva Zsuzsanna
referens

Érdekel az OTP Bank kedvezményes lakáshitel ajánlata? *

* A kérdésre „Igen” válasz bejelölése esetén, az „Üzenet küldése” gombra kattintva kijelentem, hogy az OTP Bank Nyrt. Adatkezelési tájékoztatójának tartalmát megismertem és tudomásul vettem.

Eladó téglalakás leírása

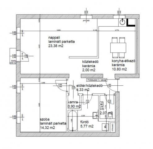
Bicske fejlődő belterületén, több lakótömbből álló, árnyas, fákkal benőtt lakópark második épületének földszinti 3-as számú, 64,14 nm-es lakása eladó. A lakás elosztása: 26nm nappali-étkező-konyha, 14,32 nm szoba, 11nm szoba, 5,77 nm fürdőszoba, 2,07nm wc, 4,50 nm közlekedő, 0,55 kamra. A pinceszinten 13 nm-es tároló és egy darab felszíni parkoló tartozik hozzá, melyek külön megvásárolandók. A parkoló 1,8M, a tároló 2,58M Ft-os áron. A ház belső, kényelmes lépcsőházzal ellátott. Hőszigetelt falak, és nyílászárók kerültek beépítésre. A lakásban kiépített klíma, riasztó előkészítés, szerelvényezés történik. Saját mérőórákkal, gázfűtéssel ellátott. Közlekedése kiváló, M1-es autópálya, 1-es főút, vasútvonal elérhető távolságban. Gyors, szakszerű hitelügyintézéssel segítjük ingatlan vásárlását az OTP Bankon keresztül. További kérdéseivel, megtekintéssel kapcsolatban keressen bizalommal!

Hirdetés feltöltve: 2025. 08. 28. Utoljára módosítva: 2025. 11. 02.

3 szobás téglalakások ára Bicskén

Ebből az összehasonlításból megtudhatod, hogyan viszonyul a lakás ára a környékbeli téglalakások átlagos árához. Ez nem azt jelenti, hogy ennyivel olcsóbb vagy drágább, mint amennyit a lakás ér, hanem hogy ennyivel tér el a környékbeli átlagtól.

Ennek a m² ára
Bicske m² ár
902 e Ft
688 e Ft -31%
Ennek az ára
Bicske átlagár
57.72 M Ft m Ft
45.8 m Ft -26%

Az ingatlan elhelyezkedése

Cím: Bicske

Eladó téglalakások a környékről

Eladó téglalakás
Eladó téglalakás

Székesfehérvár

94.9 M Ft
3 szoba
73 m2
Eladó téglalakás
Eladó téglalakás

Bicske

63.4 M Ft
4 szoba
72 m2
Eladó téglalakás
Eladó téglalakás

Székesfehérvár

114.9 M Ft
4 szoba
113 m2
Eladó téglalakás
Eladó téglalakás

Bicske

57.72 M Ft
3 szoba
64 m2
Eladó téglalakás
Eladó téglalakás

Bicske

57.72 M Ft
3 szoba
64 m2
Eladó téglalakás
Eladó téglalakás

Bicske, Csákvári utca

57.72 M Ft
3 szoba
64 m2
Eladó téglalakás
Eladó téglalakás

Ercsi

28 M Ft
3 szoba
127 m2
Eladó téglalakás
Eladó téglalakás

Lepsény

22.9 M Ft
2 szoba
56 m2
Eladó téglalakás
Eladó téglalakás

Székesfehérvár

114.9 M Ft
4 szoba
136 m2
Eladó téglalakás
Eladó téglalakás

Bicske, Csákvári utca

68.8 M Ft
4 szoba
72 m2
Eladó téglalakás
Eladó téglalakás

Bicske

68.8 M Ft
4 szoba
72 m2
Eladó téglalakás
Eladó téglalakás

Sárbogárd

61.95 M Ft
1 + 2 szoba
64 m2
Eladó téglalakás
Eladó téglalakás

Bicske

67.1 M Ft
4 szoba
72 m2
Eladó téglalakás
Eladó téglalakás

Lepsény

34.9 M Ft
2 szoba
36 m2
Eladó téglalakás
Eladó téglalakás

Bicske, Bicske kertváros

84.9 M Ft
4 szoba
68 m2
Eladó téglalakás
Eladó téglalakás

Bicske

63.4 M Ft
4 szoba
73 m2
Eladó téglalakás
Eladó téglalakás

Bicske, Bogya Károly utca

34.8 M Ft
2 szoba
57 m2
Eladó téglalakás
Eladó téglalakás

Bicske

67.1 M Ft
4 szoba
72 m2
Eladó téglalakás
Eladó téglalakás

Bicske, Diófa utca

24.999 M Ft
2 szoba
47 m2
Eladó téglalakás
Eladó téglalakás

Óbarok

13 M Ft
1 szoba
28 m2
Eladó téglalakás
Eladó téglalakás

Bicske, Csákvári utca

67.1 M Ft
4 szoba
72 m2
Eladó téglalakás
Eladó téglalakás

Bicske

57.5 M Ft
2 szoba
64 m2
Eladó téglalakás
Eladó téglalakás

Bicske

57.5 M Ft
3 szoba
64 m2
Eladó téglalakás
Eladó téglalakás

Bicske, Csákvári utca

34.5 M Ft
1 szoba
28 m2

Falusi CSOK ingatlanok

Eladó családi ház
Eladó családi ház

Nyírtura

74.9 M Ft
3 szoba
120 m2
Eladó családi ház
Eladó családi ház

Porrogszentkirály

31.9 M Ft
3 szoba
82 m2
Eladó családi ház
Eladó családi ház

Vitnyéd, Petőfi Sándor utca 3

16.71 M Ft
1 + 1 szoba
99 m2
Eladó családi ház
Eladó családi ház

Újszilvás

20.9 M Ft
3 szoba
66 m2
Eladó családi ház
Eladó családi ház

Újlengyel

110 M Ft
4 szoba
121 m2
Eladó ikerház
Eladó ikerház

Seregélyes

39.9 M Ft
4 szoba
150 m2
Eladó családi ház
Eladó családi ház

Újszilvás

22.5 M Ft
2 szoba
65 m2
Eladó családi ház
Eladó családi ház

Balatonfenyves

430 M Ft
4 szoba
274 m2