Eladó téglalakás
Pákozd, földszint

+ 16 kép 1/19
99 000 000 Ft99 M Ft 785 714 Ft/m2
4 szoba
126 m2
földszint
építés éve:2024

Részletes adatok

Fűtés: Elektromos
Energetikai besorolás: Nem adta meg a hirdető

Az OTP Bank lakáshitel ajánlataFizetett hirdetés

3676815002
Kemecsei Szabin
Duna House - Kecskemét, Dobó krt.

Érdekel az OTP Bank kedvezményes lakáshitel ajánlata? *

* A kérdésre „Igen” válasz bejelölése esetén, az „Üzenet küldése” gombra kattintva kijelentem, hogy az OTP Bank Nyrt. Adatkezelési tájékoztatójának tartalmát megismertem és tudomásul vettem.

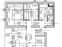
Eladó téglalakás leírása

Eladó Pákozd Gyönyörű kertvárosi részén Nappali+3 szobás sorházi lakás, garázzsal és kis kertel.
A 4 lakásos társasház folyamatosan épül, előre láthatóan 2025. nyarán kerülnek átadásra.
A lakások átgondolt tervezést követően lettek kialakítva, kiváló választás nagy családoknak is.
A társasház úgy kerül átadásra hogy a kivitelező elkészíti a térkövezett kocsibeállókat és a járdákat, rendezi és parkosítja a telket.
Az ingatlanból 94 nm a lakótér, 21.3 nm a garázs és további 23,2 nm a terasz, a kert 60 nm
Amennyiben felkeltette érdeklődését hívjon bizalommal!

Hirdetés feltöltve: 2024. 11. 22. Utoljára módosítva: 2025. 09. 27.

Az ingatlan elhelyezkedése

Cím: Pákozd, földszint

Eladó ingatlanok a környékről

Eladó üzlethelyiség
Eladó üzlethelyiség

Székesfehérvár

0.11 M Ft
1 szoba
35 m2
Eladó nyaraló
Eladó nyaraló

Sukoró

195 M Ft
5 szoba
186 m2
Eladó téglalakás
Eladó téglalakás

Pákozd

99 M Ft
4 szoba
125 m2
Eladó téglalakás
Eladó téglalakás

Székesfehérvár

64.9 M Ft
3 szoba
83 m2
Eladó családi ház
Eladó családi ház

Ercsi

78.9 M Ft
6 szoba
151 m2
Eladó panellakás
Eladó panellakás

Székesfehérvár, Széna téri lakótelep, Kigyó

64.9 M Ft
3 + 1 szoba
64 m2
Eladó ikerház
Eladó ikerház

Gárdony

69.9 M Ft
4 szoba
70 m2
Eladó téglalakás
Eladó téglalakás

Pákozd

99 M Ft
4 szoba
125 m2
Eladó téglalakás
Eladó téglalakás

Bicske, Csákvári utca

65.3 M Ft
4 szoba
72 m2
Eladó családi ház
Eladó családi ház

Pusztaszabolcs

74.9 M Ft
4 szoba
95 m2
Eladó téglalakás
Eladó téglalakás

Bicske, Csákvári utca

67.1 M Ft
4 szoba
72 m2
Eladó családi ház
Eladó családi ház

Ercsi, Gárdonyi Géza utca

35 M Ft
3 szoba
62 m2
Eladó téglalakás
Eladó téglalakás

Bicske, Csákvári utca

68.8 M Ft
4 szoba
72 m2
Eladó téglalakás
Eladó téglalakás

Székesfehérvár

56.2 M Ft
2 szoba
58 m2
Eladó családi ház
Eladó családi ház

Pusztaszabolcs

84.9 M Ft
4 szoba
106 m2
Eladó téglalakás
Eladó téglalakás

Bicske, Csákvári utca

63.4 M Ft
4 szoba
72 m2
Eladó téglalakás
Eladó téglalakás

Martonvásár

78.8 M Ft
3 szoba
58 m2
Eladó családi ház
Eladó családi ház

Velence

84.7 M Ft
2 szoba
90 m2
Eladó téglalakás
Eladó téglalakás

Óbarok

13 M Ft
1 szoba
28 m2
Eladó családi ház
Eladó családi ház

Székesfehérvár

55.5 M Ft
1 + 1 szoba
70 m2
Eladó ikerház
Eladó ikerház

Sárbogárd

65.9 M Ft
5 szoba
140 m2
Eladó nyaraló
Eladó nyaraló

Rácalmás

19.9 M Ft
1 szoba
40 m2
Eladó családi ház
Eladó családi ház

Előszállás

25 M Ft
2 szoba
52 m2
Eladó téglalakás
Eladó téglalakás

Bicske, Csákvári utca

34.5 M Ft
1 szoba
28 m2

Falusi CSOK ingatlanok

Eladó családi ház
Eladó családi ház

Balatonkenese

99.8 M Ft
5 szoba
138 m2
Eladó családi ház
Eladó családi ház

Bogács

79.5 M Ft
6 szoba
180 m2
Eladó családi ház
Eladó családi ház

Tihany

119.9 M Ft
3 + 1 szoba
92 m2
Eladó családi ház
Eladó családi ház

Recsk

21 M Ft
4 szoba
220 m2
Eladó családi ház
Eladó családi ház

Somogyszil

9.8 M Ft
3 szoba
110 m2
Eladó családi ház
Eladó családi ház

Geresdlak

24.8 M Ft
1 szoba
50 m2
Eladó családi ház
Eladó családi ház

Tápiószőlős

34 M Ft
1 + 2 szoba
85 m2
Eladó ikerház
Eladó ikerház

Besnyő

89.5 M Ft
1 + 3 szoba
93 m2