BAM Living

Eladó téglalakás
Balatonlelle, 2. emelet

+ 5 kép 1/8
99 990 000 Ft99.99 M Ft 1 281 923 Ft/m2
3 szoba
78 m2
2. emelet
építés éve:2024

Részletes adatok

Telekméret: 1170 m2
Fűtés: Egyéb
Parkolás: Kocsibeálló
Közmű: Víz, Villany, Csatorna
Energetikai besorolás: Nem adta meg a hirdető

Az OTP Bank lakáshitel ajánlataFizetett hirdetés

+36 70 866
Gál Balázs
City Cartel Balaton

Érdekel az OTP Bank kedvezményes lakáshitel ajánlata? *

* A kérdésre „Igen” válasz bejelölése esetén, az „Üzenet küldése” gombra kattintva kijelentem, hogy az OTP Bank Nyrt. Adatkezelési tájékoztatójának tartalmát megismertem és tudomásul vettem.

Eladó téglalakás leírása

Belvárosi elhelyezkedés, a szabad strandtól 200 méter távolságra.

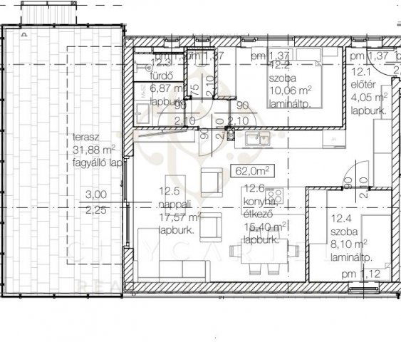
A CITY CARTEL INGATLANIRODA eladásra kínál Balatonlelle központjában, a strandtól pár lépés távolságra, újonnan épülő, kis lélekszámú, 14 egységes társasházban található, új építésű, 78 m2 lakóterületű, 1+2 szobás penthouse lakást.

Az ingatlan kulcsrakész állapotban, várhatóan 2025. IV. negyedévében kerül átadásra.

Beosztását tekintve egy amerikai konyhás nappali + étkező egy légtérben, kettő hálószoba, előtér, zuhanyzós fürdőszoba, külön WC és egy tágas terasz került benne kialakításra.

Beruházó referenciái városban megtekinthetőek.

Magas műszaki tartalom, értékhatárig választható burkolatok.

Hűtést-fűtést egyaránt hőszivattyú biztosítja a társasházban.

Az ingatlanokhoz zárt udvari, felszíni parkoló 5.000.000 Ft-ért kötelezően megvásárolandó.

Nyaralónak, állandó lakhatásra egyaránt ajánlott.

Mindentől pár lépés távolságra.

További részletes információért forduljon hozzám bizalommal, a hét bármely napján!

Irodáink:
8600 Siófok, Fő tér 6. (Sió Pláza -1. szint)
8640 Fonyód, Ady Endre u. 5. (Balaton Áruház földszint)
8638 Balatonlelle, Rákóczi út 276.

Kövess minket Facebook-on is: @citycartelbalaton!

Hirdetés feltöltve: 2025. 02. 28. Utoljára módosítva: 2025. 11. 02.

3 szobás téglalakások ára Balatonlelleén

Ebből az összehasonlításból megtudhatod, hogyan viszonyul a lakás ára a környékbeli téglalakások átlagos árához. Ez nem azt jelenti, hogy ennyivel olcsóbb vagy drágább, mint amennyit a lakás ér, hanem hogy ennyivel tér el a környékbeli átlagtól.

Ennek a m² ára
Balatonlelle m² ár
1282 e Ft
1371 e Ft 6%
Ennek az ára
Balatonlelle átlagár
99.99 M Ft m Ft
108.9 m Ft 8%

Az ingatlan elhelyezkedése

Cím: Balatonlelle, 2. emelet

Eladó téglalakások a környékről

Eladó téglalakás
Eladó téglalakás

Balatonlelle

49.99 M Ft
3 szoba
70 m2
Eladó téglalakás
Eladó téglalakás

Balatonlelle

95.45 M Ft
3 szoba
61 m2
Eladó téglalakás
Eladó téglalakás

Balatonföldvár

125.4 M Ft
4 szoba
114 m2
Eladó téglalakás
Eladó téglalakás

Balatonlelle

144.999 M Ft
3 szoba
75 m2
Eladó téglalakás
Eladó téglalakás

Balatonfenyves

79 M Ft
1 szoba
35 m2
Eladó téglalakás
Eladó téglalakás

Balatonfenyves

135.05 M Ft
2 szoba
59 m2
Eladó téglalakás
Eladó téglalakás

Siófok, Ezustparti utca

84.9 M Ft
3 szoba
58 m2
Eladó téglalakás
Eladó téglalakás

Balatonfenyves

129.5 M Ft
3 szoba
67 m2
Eladó téglalakás
Eladó téglalakás

Balatonfenyves

218.75 M Ft
2 szoba
66 m2
Eladó téglalakás
Eladó téglalakás

Balatonlelle

52.5 M Ft
1 szoba
60 m2
Eladó téglalakás
Eladó téglalakás

Balatonlelle

99 M Ft
2 szoba
55 m2
Eladó téglalakás
Eladó téglalakás

Balatonlelle

467.25 M Ft
6 szoba
166 m2
Eladó téglalakás
Eladó téglalakás

Balatonlelle

54.9 M Ft
3 szoba
66 m2
Eladó téglalakás
Eladó téglalakás

Balatonlelle

115.5 M Ft
4 szoba
80 m2
Eladó téglalakás
Eladó téglalakás

Balatonfenyves

78 M Ft
1 szoba
35 m2
Eladó téglalakás
Eladó téglalakás

Balatonlelle

97.49 M Ft
3 szoba
63 m2
Eladó téglalakás
Eladó téglalakás

Balatonfenyves

115.625 M Ft
2 szoba
51 m2
Eladó téglalakás
Eladó téglalakás

Balatonlelle

137.702 M Ft
3 szoba
70 m2
Eladó téglalakás
Eladó téglalakás

Balatonlelle

110 M Ft
2 szoba
85 m2
Eladó téglalakás
Eladó téglalakás

Balatonlelle

95.99 M Ft
3 szoba
62 m2
Eladó téglalakás
Eladó téglalakás

Siófok, Ezustparti utca

86.9 M Ft
3 szoba
60 m2
Eladó téglalakás
Eladó téglalakás

Siófok, Ezustparti utca

76.4 M Ft
3 szoba
58 m2
Eladó téglalakás
Eladó téglalakás

Balatonlelle

77.49 M Ft
2 szoba
47 m2
Eladó téglalakás
Eladó téglalakás

Balatonlelle

144.999 M Ft
3 szoba
75 m2

Falusi CSOK ingatlanok

Eladó családi ház
Eladó családi ház

Recsk

59 M Ft
2 szoba
70 m2
Eladó családi ház
Eladó családi ház

Somogygeszti

38.6 M Ft
3 + 1 szoba
98 m2
Eladó családi ház
Eladó családi ház

Szil

25 M Ft
2 szoba
90 m2
Eladó családi ház
Eladó családi ház

Hosszúpereszteg

27.9 M Ft
4 szoba
121 m2
Eladó családi ház
Eladó családi ház

Üllés

35.5 M Ft
3 szoba
99 m2
Eladó családi ház
Eladó családi ház

Devecser

42.9 M Ft
3 szoba
100 m2
Eladó családi ház
Eladó családi ház

Iharos

8 M Ft
2 szoba
45 m2
Eladó családi ház
Eladó családi ház

Szabadbattyán

67.5 M Ft
5 szoba
180 m2