Astora Márvány8

Eladó téglalakás
Balatonfüred, földszint

+ 1 kép 1/4
244 977 480 Ft244.977 M Ft 2 525 541 Ft/m2
3 szoba
97 m²
földszint
építés éve:2025

Részletes adatok

Fűtés: Egyéb
Emelet: földszint
Extrák: Lift
Energetikai besorolás: Nem adta meg a hirdető

Az OTP Bank lakáshitel ajánlataFizetett hirdetés

+36 30 345
Maczucza Márton
OTP Ingatlanpont Veszprém

Érdekel az OTP Bank kedvezményes lakáshitel ajánlata? *

* A kérdésre „Igen” válasz bejelölése esetén, az „Üzenet küldése” gombra kattintva kijelentem, hogy az OTP Bank Nyrt. Adatkezelési tájékoztatójának tartalmát megismertem és tudomásul vettem.

Eladó téglalakás leírása

*** ÚJÉPÍTÉSŰ LAKÁSOK BALATONFÜREDEN, A BALATON KÖZELSÉGÉBEN! ***

Balatonfüreden, a tó partjától néhány lépésre kínálunk új építésű, lakásokat, melyek kulcsrakész állapotban kerülnek átadásra. Az ingatlanok modern építészeti megoldásokkal, magas minőségű anyagokkal és kifinomult műszaki tartalommal készülnek, kiváló infrastrukturális ellátottságú környezetben, parkosított területen.

Lakásméretek széles választékban:

Az 58 m²-es praktikus otthonoktól egészen a 130 m²-es panorámás penthouse lakásokig mindenki megtalálhatja az életstílusához legjobban illőt.

Minden karnyújtásnyira:

A központ, a Balaton-part, a móló, a strand és a bevásárlási lehetőségek gyalogosan is könnyen elérhetők.

Akadálymentes kialakítás:

A lakások lifttel, a mélygarázstól a legfelső emeletig akadálymentesen megközelíthetők.

Modern szerkezet és gépészet:

- Vasbeton épületszerkezet
- Fan-coil rendszer fűtéshez és hűtéshez
- A fürdőszobákban és a mellékhelyiségekben elektromos padlófűtés

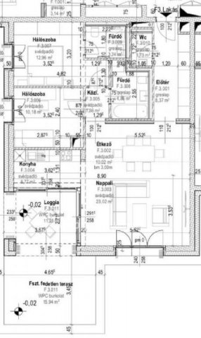
A kínált ingatlan:

- 84 m2-es lakás
- 11 m2-es fedett loggia és 16 m2-es fedetlen terasz
- 60 m2-es kizárólagos használatú kert
- Tágas nappali amerikai konyhával és étkezővel
- 2 hálószoba
- 2 fürdőszoba
- Nagy nyílászárók, természetes fény és panoráma

Kényelmes parkolás:

Mélygarázs, felszíni és mozgáskorlátozott parkolóhelyek is megvásárolhatók.

Személyre szabhatóság:

A belső burkolatok egyedileg választhatók, így az otthon teljes mértékben igazodhat az Ön ízléséhez.

Keressen bizalommal!

Kérje részletes prezentációnkat – biztosak vagyunk benne, hogy megtaláljuk az Ön számára tökéletes lakást Balatonfüreden!

Amennyiben hirdetésem felkeltette az érdeklődését, keressen bizalommal, az ingatlan időpont-egyeztetést követően rugalmasan megtekinthető! Nálunk minden megtekintés DÍJMENTES!

Az OTP Ingatlanpont teljes körű ügyintézéssel áll az eladók és a vevők rendelkezésére. A kínálatunkból választott ingatlan finanszírozásához kedvezményes hitelkonstrukciót kínálunk. Az adásvételi szerződés megkötéséhez igény szerint megbízható ügyvédi közreműködést biztosítunk, és segítséget nyújtunk az adásvételhez kapcsolódó ügyek intézéséhez is!

Hirdetés feltöltve: 2026. 04. 19.

3 szobás téglalakások ára Balatonfüreden

Ebből az összehasonlításból megtudhatod, hogyan viszonyul a lakás ára a környékbeli téglalakások átlagos árához. Ez nem azt jelenti, hogy ennyivel olcsóbb vagy drágább, mint amennyit a lakás ér, hanem hogy ennyivel tér el a környékbeli átlagtól.

Ennek a m² ára
Balatonfüred m² ár
2526 e Ft
2325 e Ft -9%
Ennek az ára
Balatonfüred átlagár
244.977 M Ft m Ft
198 m Ft -24%

Az ingatlan elhelyezkedése

Cím: Balatonfüred, földszint

Eladó téglalakások a környékről

Balatonakarattya
Eladó téglalakás

Balatonakarattya

176.581 M Ft
2 szoba
67 m²
Balatonfüred
Eladó téglalakás

Balatonfüred

178.84 M Ft
5 szoba
184 m²
Balatonfüred
Eladó téglalakás

Balatonfüred

165.06 M Ft
2 szoba
60 m²
Balatonfüred
Eladó téglalakás

Balatonfüred

95 M Ft
3 + 3 szoba
144 m²
Balatonfüred
Eladó téglalakás

Balatonfüred

262.676 M Ft
5 szoba
194 m²
Balatonfüred
Eladó téglalakás

Balatonfüred

74.9 M Ft
2 szoba
55 m²
Balatonfüred
Eladó téglalakás

Balatonfüred

74.9 M Ft
2 szoba
52 m²
Balatonfüred
Eladó téglalakás

Balatonfüred

166.576 M Ft
2 szoba
60 m²
Balatonfüred, Külterület
Eladó téglalakás

Balatonfüred

435.728 M Ft
4 szoba
214 m²
Balatonfüred
Eladó téglalakás

Balatonfüred

184 M Ft
4 szoba
119 m²
Balatonakarattya
Eladó téglalakás

Balatonakarattya

163.576 M Ft
2 szoba
62 m²
Balatonakarattya
Eladó téglalakás

Balatonakarattya

213.055 M Ft
3 szoba
81 m²
Balatonalmádi
Eladó téglalakás

Balatonalmádi

103 M Ft
2 szoba
47 m²
Balatonfüred, Külterület
Eladó téglalakás

Balatonfüred

301.109 M Ft
4 szoba
133 m²
Balatonfüred
Eladó téglalakás

Balatonfüred

436.916 M Ft
3 szoba
142 m²
Balatonfüred
Eladó téglalakás

Balatonfüred

143 M Ft
3 szoba
83 m²
Balatonfüred, Külterület
Eladó téglalakás

Balatonfüred

203.148 M Ft
4 szoba
94 m²
Balatonfüred
Eladó téglalakás

Balatonfüred

143 M Ft
3 szoba
83 m²
Balatonakarattya
Eladó téglalakás

Balatonakarattya

208.331 M Ft
3 szoba
80 m²
Balatonakarattya
Eladó téglalakás

Balatonakarattya

225.4 M Ft
3 szoba
86 m²
Balatonakarattya
Eladó téglalakás

Balatonakarattya

186.639 M Ft
3 szoba
71 m²
Tapolca
Eladó téglalakás

Tapolca

29.5 M Ft
2 szoba
54 m²
Balatonakarattya
Eladó téglalakás

Balatonakarattya

160.147 M Ft
2 szoba
61 m²
Balatonakarattya
Eladó téglalakás

Balatonakarattya

239.192 M Ft
3 szoba
92 m²

Falusi CSOK ingatlanok

Pálfa
Eladó családi ház

Pálfa

26.99 M Ft
3 szoba
90 m²
Balástya, Tanya 86/1
Eladó családi ház

Balástya

8.28 M Ft
1 + 1 szoba
111 m²
Sárosd
Eladó családi ház

Sárosd

21.9 M Ft
3 szoba
86 m²
Székkutas
Eladó családi ház

Székkutas

12.5 M Ft
2 szoba
70 m²
Ceglédbercel
Eladó családi ház

Ceglédbercel

53 M Ft
3 szoba
67 m²
Cece
Eladó családi ház

Cece

44.9 M Ft
4 szoba
103 m²
Badacsonytördemic
Eladó családi ház

Badacsonytördemic

90 M Ft
3 szoba
130 m²
Tök
Eladó családi ház

Tök

20 M Ft
2 szoba
47 m²