Avico Greentop

Eladó téglalakás
Balatonfüred, földszint

+ 4 kép 1/7
178 840 000 Ft178.84 M Ft 971 957 Ft/m2
5 szoba
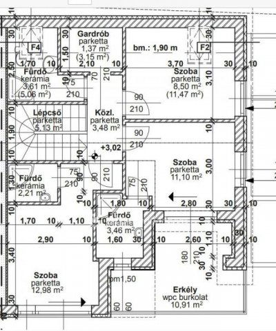
184 m²
földszint
építés éve:2025

Részletes adatok

Fűtés: Egyéb
Emelet: földszint
Energetikai besorolás: Nem adta meg a hirdető

Az OTP Bank lakáshitel ajánlataFizetett hirdetés

+36 30 400
Papp-Horváth Katalin
Otp Ingatlanpont Falk Miksa

Érdekel az OTP Bank kedvezményes lakáshitel ajánlata? *

* A kérdésre „Igen” válasz bejelölése esetén, az „Üzenet küldése” gombra kattintva kijelentem, hogy az OTP Bank Nyrt. Adatkezelési tájékoztatójának tartalmát megismertem és tudomásul vettem.

Eladó téglalakás leírása

Eladó Balatonfüred Arács városrészén lenyűgöző kivitelezésű luxus ikerházak! Az ingatlanok a csendes, természet közeli életre vágyók számára tökéletes választás, modern és energia hatékony megoldásokkal. A két különálló ikerház jelenleg szerkezetkész állapotban van, a kulcsrakész átadás várhatóan 2025 tavaszán történik. Az ingatlanok tégla falazattal, 15 cm-es szigeteléssel és hőszivattyús fűtéssel épülnek, biztosítva az alacsony energiaigényű besorolást. A lakások alapterületei: 146 nm, 175 nm, és két darab 184 nm, mindegyikhez saját garázs és tároló tartozik. A lakásokhoz tartozó 700 nm-es telek alapszintű kertépítéssel készül el. Az árban légkondicionálás, riasztó- és redőny előkészítés is benne van, így további kényelmi funkciók beépítése könnyedén megoldható. Hitellel is megvásárolható. Amennyiben szeretné megtekinteni ezt a különleges ingatlant, keressen meg, és egyeztessünk időpontot!

Referencia szám: M287139

Referencia szám: M287139

Hirdetés feltöltve: 2026. 02. 26. Utoljára módosítva: 2026. 04. 25.

5 szobás téglalakások ára Balatonfüreden

Ebből az összehasonlításból megtudhatod, hogyan viszonyul a lakás ára a környékbeli téglalakások átlagos árához. Ez nem azt jelenti, hogy ennyivel olcsóbb vagy drágább, mint amennyit a lakás ér, hanem hogy ennyivel tér el a környékbeli átlagtól.

Ennek a m² ára
Balatonfüred m² ár
972 e Ft
1108 e Ft 12%
Ennek az ára
Balatonfüred átlagár
178.84 M Ft m Ft
237.3 m Ft 25%

Az ingatlan elhelyezkedése

Cím: Balatonfüred, földszint

Eladó téglalakások a környékről

Balatonfüred, Külterület
Eladó téglalakás

Balatonfüred

436.916 M Ft
4 szoba
216 m²
Balatonfüred
Eladó téglalakás

Balatonfüred

435.728 M Ft
3 szoba
148 m²
Pápa
Eladó téglalakás

Pápa

37.445 M Ft
1 + 1 szoba
41 m²
Balatonfüred
Eladó téglalakás

Balatonfüred

74.9 M Ft
2 szoba
55 m²
Balatonfüred
Eladó téglalakás

Balatonfüred

268.834 M Ft
5 szoba
185 m²
Balatonakarattya
Eladó téglalakás

Balatonakarattya

239.192 M Ft
3 szoba
92 m²
Balatonfüred
Eladó téglalakás

Balatonfüred

166 M Ft
4 szoba
103 m²
Balatonfüred
Eladó téglalakás

Balatonfüred

217 M Ft
4 szoba
168 m²
Balatonfüred
Eladó téglalakás

Balatonfüred

262.676 M Ft
5 szoba
194 m²
Balatonakarattya
Eladó téglalakás

Balatonakarattya

186.639 M Ft
3 szoba
71 m²
Balatonfüred
Eladó téglalakás

Balatonfüred

184 M Ft
4 szoba
119 m²
Balatonfüred
Eladó téglalakás

Balatonfüred

205.64 M Ft
3 szoba
78 m²
Balatonakarattya
Eladó téglalakás

Balatonakarattya

160.147 M Ft
2 szoba
61 m²
Balatonakarattya
Eladó téglalakás

Balatonakarattya

208.331 M Ft
3 szoba
80 m²
Balatonfüred
Eladó téglalakás

Balatonfüred

436.916 M Ft
3 szoba
142 m²
Balatonfüred
Eladó téglalakás

Balatonfüred

143 M Ft
3 szoba
83 m²
Balatonfüred
Eladó téglalakás

Balatonfüred

95 M Ft
3 + 3 szoba
144 m²
Balatonfüred
Eladó téglalakás

Balatonfüred

436.916 M Ft
3 szoba
142 m²
Balatonfüred
Eladó téglalakás

Balatonfüred

435.728 M Ft
3 szoba
148 m²
Balatonfüred
Eladó téglalakás

Balatonfüred

217 M Ft
4 szoba
168 m²
Balatonakarattya
Eladó téglalakás

Balatonakarattya

163.576 M Ft
2 szoba
62 m²
Balatonalmádi
Eladó téglalakás

Balatonalmádi

103 M Ft
2 szoba
47 m²
Balatonakarattya
Eladó téglalakás

Balatonakarattya

205.384 M Ft
3 szoba
78 m²
Balatonfüred, Külterület
Eladó téglalakás

Balatonfüred

435.728 M Ft
4 szoba
214 m²

Falusi CSOK ingatlanok

Pécsvárad
Eladó családi ház

Pécsvárad

140 M Ft
4 + 1 szoba
119 m²
Maklár
Eladó családi ház

Maklár

99 M Ft
6 szoba
230 m²
Jakabszállás
Eladó családi ház

Jakabszállás

105 M Ft
6 szoba
180 m²
Jánosháza
Eladó családi ház

Jánosháza

32 M Ft
2 szoba
116 m²
Szigetcsép
Eladó családi ház

Szigetcsép

158.9 M Ft
5 szoba
176 m²
Újlengyel
Eladó családi ház

Újlengyel

110 M Ft
4 szoba
121 m²
Seregélyes
Eladó családi ház

Seregélyes

75 M Ft
6 szoba
160 m²
Fülöpszállás
Eladó családi ház

Fülöpszállás

29.9 M Ft
2 + 1 szoba
87 m²