Avico Greentop

Eladó téglalakás
Ács, Családi ház

71 095 350 Ft71.095 M Ft 748 372 Ft/m2
4 szoba
95 m2
Családi ház
építés éve:2025

Részletes adatok

Fűtés: Egyéb
Emelet: 1. emelet
Energetikai besorolás: Nem adta meg a hirdető

Az OTP Bank lakáshitel ajánlataFizetett hirdetés

+36 70 372
Dobos András
referens

Érdekel az OTP Bank kedvezményes lakáshitel ajánlata? *

* A kérdésre „Igen” válasz bejelölése esetén, az „Üzenet küldése” gombra kattintva kijelentem, hogy az OTP Bank Nyrt. Adatkezelési tájékoztatójának tartalmát megismertem és tudomásul vettem.

Eladó téglalakás leírása

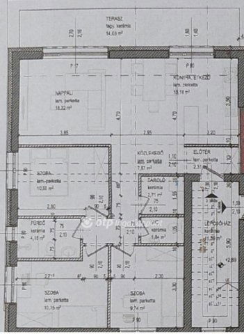
Komárom-Esztergom vármegyében, Ácson modern, 4 lakásos társasházakban új építésű lakások vásárolhatók kiváló műszaki tartalommal és minőségi beépített anyagokkal. 2026. II. negyedévi átadással emeltszintű fűtés- szerkezetkész állapotban leköthetők, igény szerint kulcsrakész átadást is vállal a kivitelező. Az épületek monolit vasbeton vázszerkezettel készülnek, falazatuk 30 cm vastag Leier Plan tégla, míg a válaszfalak 10 cm-es hanggátló téglából épülnek. A homlokzati hőszigetelés 15 cm vastagságú. Beépített nyílászárók kiváló minőséget képviselnek, 5 légkamrás, 3 rétegű üveggel, motoros redőnnyel, szúnyoghálóval ellátott ablakok, kívül dió, belül fehér színben.
A földszinti lakások kizárólagos használatú kerttel rendelkeznek, míg az emeleti lakásokhoz tágas erkély tartozik. A fűtésről és melegvízellátásról lakásonként saját hőszivattyú gondoskodik, padlófűtéssel fürdőben törölközőszárítóval. A meghirdetett ár szerkezetkész állapotra vonatkozik, MAGÁBAN FOGLALJA A TELEKHÁNYADOT, VALAMINT AJÁNDÉK KOCSIBEÁLLÓT. Ez egy emeleti lakás 81,4nm +14.03nm terasz.
A projekt nyugodt, zöld környezetben valósul meg, napfényes és tágas lakásokkal, praktikus alaprajzokkal és modern megoldásokkal. Több éves tapasztalattal rendelkező kivitelező garantálja a minőséget, nyugodt,élhető, környezetben.
Amennyiben további kérdése van, forduljon hozzánk bizalommal elérhetőségeinken.

71095350 Ft
Tekintse meg személyesen, várom hívását!
Dobos András +36703724717

Referencia szám: M311380

Hirdetés feltöltve: 2025. 10. 03. Utoljára módosítva: 2026. 01. 12.

Az ingatlan elhelyezkedése

Cím: Ács, Családi ház

Eladó ingatlanok a környékről

Eladó téglalakás
Eladó téglalakás

Dorog

89 M Ft
2 szoba
150 m2
Eladó téglalakás
Eladó téglalakás

Ács

71.167 M Ft
4 szoba
84 m2
Eladó téglalakás
Eladó téglalakás

Tatabánya

67 M Ft
4 szoba
100 m2
Eladó panellakás
Eladó panellakás

Tatabánya

48.99 M Ft
2 szoba
53 m2
Eladó téglalakás
Eladó téglalakás

Komárom

39.75 M Ft
2 szoba
53 m2
Eladó téglalakás
Eladó téglalakás

Komárom, Mártírok útja

34.02 M Ft
2 szoba
48 m2
Eladó téglalakás
Eladó téglalakás

Ács

59.949 M Ft
3 szoba
70 m2
Eladó családi ház
Eladó családi ház

Süttő, Szitli dűlő

27.9 M Ft
1 + 2 szoba
81 m2
Eladó téglalakás
Eladó téglalakás

Komárom, Városi

86.06 M Ft
2 szoba
73 m2
Eladó családi ház
Eladó családi ház

Komárom

72 M Ft
4 szoba
130 m2
Eladó mezogazdasagi ingatlan
Eladó mezogazdasagi ingatlan

Vérteskethely, Nincs utca

6.6 M Ft
1 szoba
40 m2
Eladó téglalakás
Eladó téglalakás

Komárom

83 M Ft
3 szoba
104 m2
Eladó téglalakás
Eladó téglalakás

Komárom, Mártírok útja

37.658 M Ft
2 szoba
44 m2
Eladó téglalakás
Eladó téglalakás

Tatabánya

72 M Ft
2 szoba
52 m2
Eladó téglalakás
Eladó téglalakás

Komárom, Mártírok útja

44.668 M Ft
2 szoba
55 m2
Eladó téglalakás
Eladó téglalakás

Ács

71.167 M Ft
4 szoba
84 m2
Eladó téglalakás
Eladó téglalakás

Komárom, Mártírok útja

35.361 M Ft
2 szoba
45 m2
Eladó téglalakás
Eladó téglalakás

Esztergom, Vaskapui út

99.9 M Ft
4 szoba
140 m2
Eladó téglalakás
Eladó téglalakás

Oroszlány

29 M Ft
1 + 1 szoba
48 m2
Eladó panellakás
Eladó panellakás

Tatabánya

48.99 M Ft
2 + 1 szoba
54 m2
Eladó családi ház
Eladó családi ház

Esztergom

57 M Ft
2 + 1 szoba
82 m2
Eladó téglalakás
Eladó téglalakás

Nyergesújfalu

47.158 M Ft
2 szoba
49 m2
Eladó téglalakás
Eladó téglalakás

Ács

59.949 M Ft
3 szoba
70 m2
Eladó téglalakás
Eladó téglalakás

Komárom

30.8 M Ft
1 szoba
44 m2

Falusi CSOK ingatlanok

Eladó családi ház
Eladó családi ház

Szigliget

299 M Ft
3 szoba
95 m2
Eladó családi ház
Eladó családi ház

Segesd

14.3 M Ft
3 szoba
100 m2
Eladó családi ház
Eladó családi ház

Nemesszalók

41.9 M Ft
5 + 1 szoba
170 m2
Eladó ikerház
Eladó ikerház

Seregélyes

39.9 M Ft
4 szoba
150 m2
Eladó családi ház
Eladó családi ház

Mezőfalva

39 M Ft
3 szoba
77 m2
Eladó családi ház
Eladó családi ház

Tihany

149 M Ft
5 szoba
270 m2
Eladó családi ház
Eladó családi ház

Csemő

54.9 M Ft
4 szoba
108 m2
Eladó családi ház
Eladó családi ház

Iváncsa

34.5 M Ft
2 + 1 szoba
72 m2