Kedves Felhasználónk! Rendszerfrissítés miatt az oldalunk 2026. február 9-én 12 órától várhatóan 20 óráig nem lesz elérhető. Köszönjük megértésed!
River Life

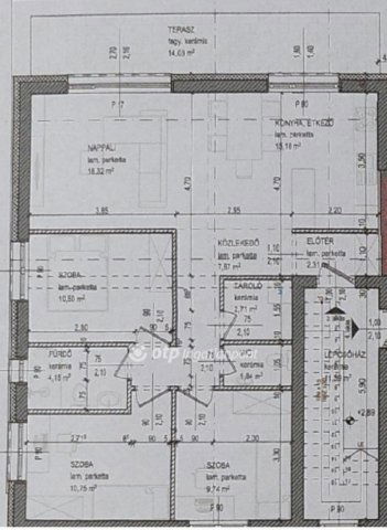
Eladó téglalakás
Ács, 1. emelet

71 095 350 Ft71.095 M Ft 748 372 Ft/m2
4 szoba
95 m2
1. emelet
építés éve:2025

Részletes adatok

Fűtés: Egyéb
Emelet: 1. emelet
Energetikai besorolás: Nem adta meg a hirdető

Az OTP Bank lakáshitel ajánlataFizetett hirdetés

+36 70 321
Berkiné Pölöskei Erzsébet
referens

Érdekel az OTP Bank kedvezményes lakáshitel ajánlata? *

* A kérdésre „Igen” válasz bejelölése esetén, az „Üzenet küldése” gombra kattintva kijelentem, hogy az OTP Bank Nyrt. Adatkezelési tájékoztatójának tartalmát megismertem és tudomásul vettem.

Eladó téglalakás leírása

Komárom-Esztergom vármegyében, Ácson modern, 4 lakásos társasházakban új építésű lakások vásárolhatók kiváló műszaki tartalommal és minőségi beépített anyagokkal. 2026. II. negyedévi átadással emeltszintű fűtés- szerkezetkész állapotban leköthetők, igény szerint kulcsrakész átadást is vállal a kivitelező. Az épületek monolit vasbeton vázszerkezettel készülnek, falazatuk 30 cm vastag Leier Plan tégla, míg a válaszfalak 10 cm-es hanggátló téglából épülnek. A homlokzati hőszigetelés 15 cm vastagságú. Beépített nyílászárók kiváló minőséget képviselnek, 5 légkamrás, 3 rétegű üveggel, motoros redőnnyel, szúnyoghálóval ellátott ablakok, kívül dió, belül fehér színben.
A földszinti lakások kizárólagos használatú kerttel rendelkeznek, míg az emeleti lakásokhoz tágas erkély tartozik. A fűtésről és melegvízellátásról lakásonként saját hőszivattyú gondoskodik, padlófűtéssel fürdőben törölközőszárítóval. A meghirdetett ár szerkezetkész állapotra vonatkozik, MAGÁBAN FOGLALJA A TELEKHÁNYADOT, VALAMINT AJÁNDÉK KOCSIBEÁLLÓT. Ez egy emeleti lakás 81,4nm +14.03nm terasz.
A projekt nyugodt, zöld környezetben valósul meg, napfényes és tágas lakásokkal, praktikus alaprajzokkal és modern megoldásokkal. Több éves tapasztalattal rendelkező kivitelező garantálja a minőséget, nyugodt,élhető, környezetben.
Amennyiben további kérdése van, forduljon hozzánk bizalommal elérhetőségeinken.

Referencia szám: M311380-ZE

Hirdetés feltöltve: 2025. 10. 18. Utoljára módosítva: 2026. 02. 06.

Az ingatlan elhelyezkedése

Cím: Ács, 1. emelet

Eladó ingatlanok a környékről

Eladó téglalakás
Eladó téglalakás

Tatabánya

39.9 M Ft
2 szoba
52 m2
Eladó családi ház
Eladó családi ház

Tatabánya, Bánhidai lakótelep, Boróka

89.9 M Ft
3 szoba
84 m2
Eladó panellakás
Eladó panellakás

Bábolna

43.9 M Ft
3 szoba
78 m2
Eladó családi ház
Eladó családi ház

Kisbér

29.9 M Ft
2 szoba
80 m2
Eladó családi ház
Eladó családi ház

Komárom

49.9 M Ft
4 szoba
120 m2
Eladó panellakás
Eladó panellakás

Tatabánya

47.9 M Ft
2 szoba
53 m2
Eladó panellakás
Eladó panellakás

Oroszlány

25 M Ft
1 + 1 szoba
36 m2
Eladó téglalakás
Eladó téglalakás

Tatabánya

48.6 M Ft
3 szoba
56 m2
Eladó téglalakás
Eladó téglalakás

Komárom, Mártírok útja

37.633 M Ft
2 szoba
45 m2
Eladó téglalakás
Eladó téglalakás

Nyergesújfalu, Kossuth Lajos utca

82.9 M Ft
3 szoba
80 m2
Eladó panellakás
Eladó panellakás

Tatabánya

41.9 M Ft
2 + 1 szoba
49 m2
Eladó nyaraló
Eladó nyaraló

Gyermely

9.5 M Ft
2 szoba
22 m2
Eladó téglalakás
Eladó téglalakás

Esztergom, Bajcsy-Zsilinszky Endre út

178 M Ft
2 szoba
178 m2
Eladó téglalakás
Eladó téglalakás

Komárom, Városi

38.9 M Ft
1 szoba
43 m2
Eladó téglalakás
Eladó téglalakás

Nyergesújfalu

47.158 M Ft
2 szoba
49 m2
Eladó téglalakás
Eladó téglalakás

Komárom

35.9 M Ft
3 szoba
49 m2
Eladó téglalakás
Eladó téglalakás

Komárom, Mártírok útja

44.668 M Ft
2 szoba
55 m2
Eladó téglalakás
Eladó téglalakás

Komárom, Mártírok útja

43.477 M Ft
2 szoba
50 m2
Eladó családi ház
Eladó családi ház

Tata

118 M Ft
6 szoba
220 m2
Eladó téglalakás
Eladó téglalakás

Komárom, Mártírok útja

50.06 M Ft
2 szoba
65 m2
Eladó nyaraló
Eladó nyaraló

Dorog, Aranyhomoki Dűlő

34.5 M Ft
2 szoba
30 m2
Eladó téglalakás
Eladó téglalakás

Komárom

24.75 M Ft
1 szoba
33 m2
Eladó téglalakás
Eladó téglalakás

Ács

55.212 M Ft
2 szoba
74 m2
Eladó családi ház
Eladó családi ház

Tata

47.9 M Ft
2 szoba
72 m2

Falusi CSOK ingatlanok

Eladó családi ház
Eladó családi ház

Sárisáp, Orgona utca

60 M Ft
4 szoba
145 m2
Eladó családi ház
Eladó családi ház

Recsk

28 M Ft
3 szoba
91 m2
Eladó családi ház
Eladó családi ház

Ádánd

69.9 M Ft
6 szoba
251 m2
Eladó családi ház
Eladó családi ház

Bátmonostor

22.9 M Ft
3 szoba
82 m2
Eladó családi ház
Eladó családi ház

Helesfa

17.999 M Ft
2 szoba
74 m2
Eladó családi ház
Eladó családi ház

Szilvásvárad

50 M Ft
5 szoba
146 m2
Eladó családi ház
Eladó családi ház

Magyarszék

48.5 M Ft
3 + 1 szoba
86 m2
Eladó családi ház
Eladó családi ház

Pétfürdő

74.9 M Ft
3 szoba
89 m2