Eladó sorház
Veszprém

+ 17 kép 1/20
149 000 000 Ft149 M Ft 620 833 Ft/m2
7 szoba
240 m2
építés éve:1994

Részletes adatok

Telekméret: 405 m2
Fűtés: Gázkazán
Parkolás: Kocsibeálló
Energetikai besorolás: Nem adta meg a hirdető

Az OTP Bank lakáshitel ajánlataFizetett hirdetés

+36 20 338
Feketéné Lisztes Irén
referens

Érdekel az OTP Bank kedvezményes lakáshitel ajánlata? *

* A kérdésre „Igen” válasz bejelölése esetén, az „Üzenet küldése” gombra kattintva kijelentem, hogy az OTP Bank Nyrt. Adatkezelési tájékoztatójának tartalmát megismertem és tudomásul vettem.

Eladó sorház leírása

Tágas, igényes szélső sorház zöldövezetben – akár több generációnak is!

- Ha egy minőségi kialakítású, tágas és sokoldalú otthont keresel, ahol a kényelem, a nyugalom és a természet közelsége idilli harmóniában áll, akkor ez az ingatlan tökéletes választás!

- A 450 m²-es telken elhelyezkedő, 240 m²-es, kétszintes ház igényes kialakításának köszönhetően kifogástalan állapotban várja új lakóit.

- A fűtésrendszer sokoldalúságot kínál: padlófűtés, radiátorok és egy hangulatos kandalló gondoskodnak a kellemes hőmérsékletről és a meghitt hangulatról.

- A fa és műanyag nyílászárók, valamint a hatékony szigetelés energiatakarékos működést biztosítanak, a cseréptető pedig elegáns és időtálló megjelenést ad az épületnek.

- A földszint akadálymentesített, így kerekesszékkel is kényelmesen használható.
- A tágas amerikai konyhás nappali étkezővel, 3 nagyobb szoba, 2 fürdőszoba + külön WC, valamint tárolók és egy praktikus, beépített könyvespolcos folyosó teszik otthonossá a teret.

- Az udvarban három tároló található, igény szerint elbonthatók.

- Parkolás az udvarban és a ház előtt is biztosított.

- Az emeletet tömör falépcső köti össze a földszinttel.
- Itt két tágas szoba kapott helyet, az egyikhez 9 m²-es, a másikhoz pedig egy impozáns, 44 m²-es panorámás terasz tartozik.
- Ezen a szinten található még egy tágas fürdőszoba, külön mosdó és közlekedő, ahonnan lépcső vezet a tetőtérbe.

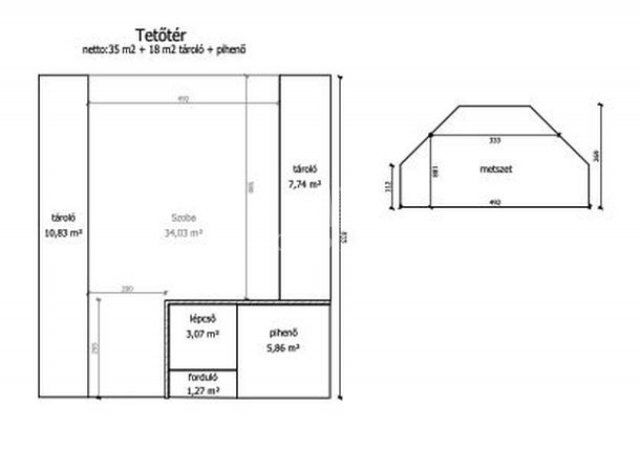
- A tetőtér jelenleg konditeremként funkcionál, kétoldalt további tárolóhelyiségekkel.
- Ez a ház valódi élettér, amely akár több generáció számára is kényelmesen használható.
- A különválasztható szintek, a tágas belső terek és a hatalmas teraszok biztosítják a kényelmet és a privát szférát mindenkinek.

Amennyiben a veszprémi GDN Ingatlaniroda által kínált gyönyörű környezetben elhelyezkedő sorház vagy bármely, a kínálatunkban található ingatlan felkeltette érdeklődését, forduljon hozzám bizalommal!

Ingatlanirodánk díjmentes, banksemleges hitelügyintézéssel, illetve ügyvédi tanácsadással is áll Ügyfeleink rendelkezésére! ...TOVÁBBI, TÖBBEZRES INGATLAN KÍNÁLAT: www.gdn-ingatlan.hu - GDN azonosító: 388993

Hirdetés feltöltve: 2025. 10. 29. Utoljára módosítva: 2025. 10. 29.

Az ingatlan elhelyezkedése

Cím: Veszprém

Eladó ingatlanok a környékről

Eladó sorház
Eladó sorház

Sümeg

12 M Ft
1 szoba
26 m2
Eladó sorház
Eladó sorház

Veszprém

82.499 M Ft
4 szoba
102 m2
Eladó sorház
Eladó sorház

Veszprém

77.9 M Ft
2 + 2 szoba
115 m2
Eladó sorház
Eladó sorház

Balatonszepezd, Központ

129.99 M Ft
5 szoba
111 m2
Eladó sorház
Eladó sorház

Ajka, Fő utca

96.568 M Ft
4 szoba
121 m2
Eladó sorház
Eladó sorház

Balatonfüred

149 M Ft
7 szoba
192 m2
Eladó sorház
Eladó sorház

Pápa

12.9 M Ft
1 szoba
60 m2
Eladó sorház
Eladó sorház

Ajka, Nincs utca

80 M Ft
4 szoba
98 m2
Eladó téglalakás
Eladó téglalakás

Herend

79 M Ft
3 szoba
79 m2
Eladó sorház
Eladó sorház

Pápa

33 M Ft
3 szoba
62 m2
Eladó családi ház
Eladó családi ház

Balatonalmádi

99.9 M Ft
4 + 1 szoba
98 m2
Eladó sorház
Eladó sorház

Veszprém

149.9 M Ft
2 + 4 szoba
182 m2
Eladó sorház
Eladó sorház

Veszprém

82.5 M Ft
4 szoba
102 m2
Eladó sorház
Eladó sorház

Veszprém

82.499 M Ft
4 szoba
102 m2
Eladó panellakás
Eladó panellakás

Veszprém

55.5 M Ft
3 szoba
62 m2
Eladó családi ház
Eladó családi ház

Bakonyság

21.9 M Ft
2 szoba
97 m2
Eladó sorház
Eladó sorház

Veszprém

77.9 M Ft
2 + 2 szoba
115 m2
Eladó sorház
Eladó sorház

Veszprém

77.9 M Ft
2 + 2 szoba
115 m2
Eladó családi ház
Eladó családi ház

Aszófő

139 M Ft
4 szoba
100 m2
Eladó családi ház
Eladó családi ház

Vilonya

135 M Ft
3 + 2 szoba
125 m2
Eladó téglalakás
Eladó téglalakás

Veszprém

57.9 M Ft
3 szoba
74 m2
Eladó sorház
Eladó sorház

Balatonalmádi

89.9 M Ft
6 szoba
146 m2
Eladó családi ház
Eladó családi ház

Berhida, Veszprémi út

59.5 M Ft
3 szoba
186 m2
Eladó családi ház
Eladó családi ház

Lovászpatona, Kossuth Lajos utca

9.9 M Ft
2949 m²
163 m2

Falusi CSOK ingatlanok

Eladó családi ház
Eladó családi ház

Balatonfenyves

430 M Ft
4 szoba
274 m2
Eladó családi ház
Eladó családi ház

Vaskút, Damjanich János utca

16.5 M Ft
3 szoba
100 m2
Eladó téglalakás
Eladó téglalakás

Tokaj

188.9 M Ft
3 szoba
93 m2
Eladó családi ház
Eladó családi ház

Kunszállás, Tóth Pál utca

62.218 M Ft
1 szoba
120 m2
Eladó családi ház
Eladó családi ház

Ádánd

55.5 M Ft
6 szoba
180 m2
Eladó családi ház
Eladó családi ház

Jakabszállás, Nyár utca

64.63 M Ft
1 szoba
132 m2
Eladó családi ház
Eladó családi ház

Darnózseli

79.9 M Ft
4 szoba
104 m2
Eladó ikerház
Eladó ikerház

Seregélyes

94.9 M Ft
4 szoba
107 m2