Oasis Residence

Eladó sorház
Vác

93 500 000 Ft93.5 M Ft 1 016 304 Ft/m2
4 szoba
92 m2

Részletes adatok

Telekméret: 460 m2
Fűtés: Egyéb
Energetikai besorolás: Nem adta meg a hirdető

Az OTP Bank lakáshitel ajánlataFizetett hirdetés

+36 30 846
Zsolnai Júlia
BeMyHome Ingatlan

Érdekel az OTP Bank kedvezményes lakáshitel ajánlata? *

* A kérdésre „Igen” válasz bejelölése esetén, az „Üzenet küldése” gombra kattintva kijelentem, hogy az OTP Bank Nyrt. Adatkezelési tájékoztatójának tartalmát megismertem és tudomásul vettem.

Eladó sorház leírása

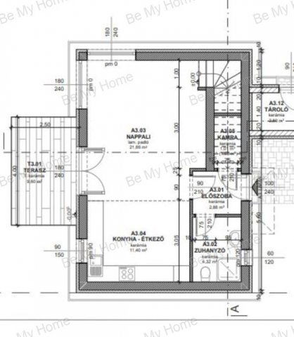
Vác új építésű lakóparkjában 92 nm-es, új építésű, nappali + 3 szobás, belső kétszintes sorházi lakás leköthető. A házak csak a tárolókkal érintkeznek. A lakáshoz 460 nm-es saját kert tartozik.

Az Új építésű,92 nm-es Nappali + 3 szobás, belső kétszintes ingatlan, kivételes adottságokkal, magas műszaki tartalommal, jól átgondolt élhető terekkel rendelkezik. A földszinten található egy 33,26 nm-es amerikai konyhás nappali, 2.88 nm-es előszoba, egy 4,32 nm-es zuhanyzós fürdőszoba, lépcső alatt kialakított 1,95 nm-es kamra, és egy 9,6 nm-es terasz.

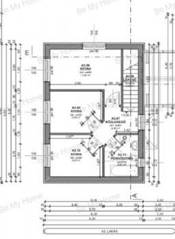
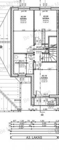
Az emeleten három hálószoba (2 x 8,84 nm és egy 13,06nm), és egy 5,6 nm-es fürdőszoba és egy 4,4 nm-es közlekedő kerül kialakításra.

A ház egyedi mérő órákkal felszerelt, a fűtést és a használati meleg vizet hőszivattyú biztosítja. A ház kulcsrakész állapotban kerül átadásra, szanitereket, burkolatokat a vevő a műszaki tartalomban megjelölt összegben választhatja ki, konyhabútor nélkül.

A környék infrastruktúrája kiváló: bevásárlási lehetőség, gyógyszertár, iskola, óvoda, a közelben található. Ingyenes hitel ügyintézéssel és ügyvédi háttérrel segítjük ügyfeleinket a vásárlásban.

Ha felkeltettem érdeklődését, várom hívását a hét bármely napján.

További Új építésű ingatlanokkal kapcsolatban, látogasson el weboldalunkra.

Hirdetés feltöltve: 2025. 10. 03. Utoljára módosítva: 2025. 11. 02.

4 szobás sorházak ára Vácon

Ebből az összehasonlításból megtudhatod, hogyan viszonyul a lakás ára a környékbeli sorházak átlagos árához. Ez nem azt jelenti, hogy ennyivel olcsóbb vagy drágább, mint amennyit a lakás ér, hanem hogy ennyivel tér el a környékbeli átlagtól.

Ennek a m² ára
Vác m² ár
1016 e Ft
647 e Ft -57%
Ennek az ára
Vác átlagár
93.5 M Ft m Ft
66.8 m Ft -40%

Az ingatlan elhelyezkedése

Cím: Vác

Eladó sorházak a környékről

Eladó sorház
Eladó sorház

Vác

144.99 M Ft
4 + 1 szoba
186 m2
Eladó sorház
Eladó sorház

Dunaharaszti

89 M Ft
6 szoba
80 m2
Eladó sorház
Eladó sorház

Gödöllő, Csanak, Kard utca

155 M Ft
3 szoba
100 m2
Eladó sorház
Eladó sorház

Vác

97.9 M Ft
4 szoba
96 m2
Eladó sorház
Eladó sorház

Dunaharaszti

99.9 M Ft
4 szoba
96 m2
Eladó sorház
Eladó sorház

Szob

16 M Ft
2 szoba
45 m2
Eladó sorház
Eladó sorház

Vác

139 M Ft
7 szoba
208 m2
Eladó sorház
Eladó sorház

Vác

125 M Ft
3 + 1 szoba
74 m2
Eladó sorház
Eladó sorház

Dunaharaszti

90 M Ft
6 szoba
180 m2
Eladó sorház
Eladó sorház

Vác

125 M Ft
4 szoba
76 m2
Eladó sorház
Eladó sorház

Szigethalom

79.99 M Ft
4 szoba
98 m2
Eladó sorház
Eladó sorház

Vác

87.9 M Ft
3 szoba
87 m2
Eladó sorház
Eladó sorház

Érd

299.9 M Ft
631 m²
302 m2
Eladó sorház
Eladó sorház

Vác

125 M Ft
4 szoba
100 m2
Eladó sorház
Eladó sorház

Vác

125 M Ft
4 szoba
100 m2
Eladó sorház
Eladó sorház

Szigetmonostor

67 M Ft
4 + 1 szoba
109 m2
Eladó sorház
Eladó sorház

Dunaharaszti, Csendes, parkos környezet

85 M Ft
4 + 2 szoba
105 m2
Eladó sorház
Eladó sorház

Dunaharaszti

94.9 M Ft
4 szoba
100 m2
Eladó sorház
Eladó sorház

Vác

125 M Ft
4 szoba
100 m2
Eladó sorház
Eladó sorház

Szigetszentmiklós

74.5 M Ft
4 + 1 szoba
150 m2
Eladó sorház
Eladó sorház

Érd

99.9 M Ft
4 szoba
101 m2
Eladó sorház
Eladó sorház

Délegyháza

94.9 M Ft
12 szoba
350 m2
Eladó sorház
Eladó sorház

Vác

88.5 M Ft
1 + 3 szoba
87 m2
Eladó sorház
Eladó sorház

Szob

16 M Ft
2 szoba
45 m2

Falusi CSOK ingatlanok

Eladó családi ház
Eladó családi ház

Vaskút, Damjanich János utca

16.5 M Ft
3 szoba
100 m2
Eladó családi ház
Eladó családi ház

Szigetbecse

35.9 M Ft
3 + 2 szoba
107 m2
Eladó családi ház
Eladó családi ház

Kelebia

13 M Ft
3 szoba
76 m2
Eladó családi ház
Eladó családi ház

Nagyberki, Újváros u

20.9 M Ft
3 szoba
88 m2
Eladó családi ház
Eladó családi ház

Kemence, Fő utca

25 M Ft
3 szoba
91 m2
Eladó családi ház
Eladó családi ház

Katymár

6.7 M Ft
4 szoba
136 m2
Eladó családi ház
Eladó családi ház

Markaz

120 M Ft
4 szoba
136 m2
Eladó családi ház
Eladó családi ház

Mezőlak, Arany János utca

35.7 M Ft
3 szoba
104 m2