River Life

Eladó sorház
Tököl

+ 11 kép 1/14
79 900 000 Ft79.9 M Ft 1 210 606 Ft/m2
2 + 1 szoba
66 m²
építés éve:2026

Részletes adatok

Telekméret: 159 m2
Fűtés: Gázkazán
Energetikai besorolás: Nem adta meg a hirdető

Az OTP Bank lakáshitel ajánlataFizetett hirdetés

+36 70 423
Hackenberger Rita
Szigetszentmiklós OTP Ip

Érdekel az OTP Bank kedvezményes lakáshitel ajánlata? *

* A kérdésre „Igen” válasz bejelölése esetén, az „Üzenet küldése” gombra kattintva kijelentem, hogy az OTP Bank Nyrt. Adatkezelési tájékoztatójának tartalmát megismertem és tudomásul vettem.

Eladó sorház leírása

Tököl csendes, nyugodt részén eladó egy 4 lakásos sorház egyik nettó 66 nm-es, kétszintes lakása, amely ideális választás lehet mindazok számára, akik modern, kertkapcsolatos otthont keresnek. Az ingatlan teljesen elszeparált, saját telekrésszel rendelkezik, így valódi családi ház érzetét nyújtja, miközben a társasházi forma előnyeit is élvezheti. A nappali közvetlen kertkapcsolattal rendelkezik, így a természet közelsége a mindennapok részévé válik.

Az új építésű ingatlan társasházi alapító okirattal rendelkezik, megfelel az Otthon Start hitel feltételeinek, valamint CSOK Plusz is igényelhető, ami kiváló lehetőséget nyújt az otthonteremtéshez. A lakás világos, jól átgondolt elosztású, élhető terekkel.

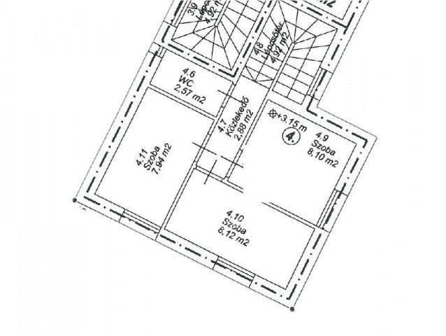
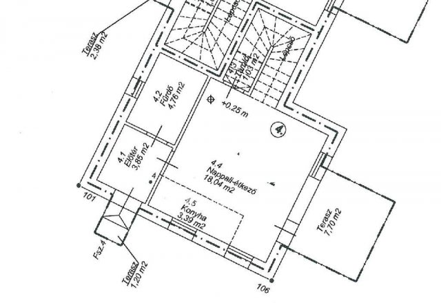
A földszinten előszoba, nappali-konyha-étkező egy légtérben, fürdőszoba és tároló található. Az emeleten közlekedő, három külön nyíló szoba és külön WC kapott helyet.

A modern műszaki tartalomról kondenzációs gázkazán gondoskodik padlófűtéses hő leadással, az oldalfalakon 12 cm grafitos szigetelés található, a korszerű műanyag hőszigetelt nyílászárók pedig hozzájárulnak az energiatakarékos működéshez. Az udvaron autóbeállási lehetőség biztosított. Az ingatlan rövid időn belül költözhető, a fizetési feltételek pedig rugalmasak, így ideális választás lehet mindazok számára, akik gyorsan szeretnének új, modern otthonukba költözni.

A vásárlást teljes körű, díjmentes tanácsadás és helyben történő, gyors és egyszerű hitelügyintézés segíti. Ne maradjon le erről a kedvező lehetőségről, érdeklődjön bizalommal.

Az energetikai tanúsítvány készítése folyamatban van, amint rendelkezésre áll, úgy azzal a hirdetés frissítésre kerül.

Hirdetés feltöltve: 2026. 04. 03. Utoljára módosítva: 2026. 05. 10.

3 szobás sorházak ára Tökölön

Ebből az összehasonlításból megtudhatod, hogyan viszonyul a lakás ára a környékbeli sorházak átlagos árához. Ez nem azt jelenti, hogy ennyivel olcsóbb vagy drágább, mint amennyit a lakás ér, hanem hogy ennyivel tér el a környékbeli átlagtól.

Ennek a m² ára
Tököl m² ár
1211 e Ft
394 e Ft -207%
Ennek az ára
Tököl átlagár
79.9 M Ft m Ft
25.6 m Ft -212%

Az ingatlan elhelyezkedése

Cím: Tököl

Eladó ingatlanok a környékről

Kisnémedi
Eladó téglalakás

Kisnémedi

60 M Ft
4 szoba
118 m²
Budaörs
Eladó sorház

Budaörs

220 M Ft
6 szoba
330 m²
Pomáz
Eladó sorház

Pomáz

55 M Ft
3 + 1 szoba
80 m²
Monorierdő
Eladó sorház

Monorierdő

65 M Ft
1 + 3 szoba
72 m²
Albertirsa
Eladó családi ház

Albertirsa

58 M Ft
3 + 1 szoba
87 m²
Kisnémedi
Eladó családi ház

Kisnémedi

60 M Ft
4 szoba
118 m²
Dunaharaszti
Eladó sorház

Dunaharaszti

89 M Ft
6 szoba
80 m²
Mogyoród
Eladó sorház

Mogyoród

92.9 M Ft
5 szoba
110 m²
Dánszentmiklós
Eladó családi ház

Dánszentmiklós

58.5 M Ft
4 szoba
79 m²
Dunaharaszti
Eladó sorház

Dunaharaszti

99.9 M Ft
4 szoba
96 m²
Érd
Eladó sorház

Érd

116 M Ft
4 szoba
101 m²
Érd
Eladó sorház

Érd

99.99 M Ft
2 + 2 szoba
104 m²
Dunaharaszti
Eladó sorház

Dunaharaszti

89 M Ft
6 szoba
80 m²
Dunaharaszti
Eladó sorház

Dunaharaszti

99.9 M Ft
4 szoba
100 m²
Veresegyház
Eladó sorház

Veresegyház

250 M Ft
1 szoba
500 m²
Pomáz
Eladó mezogazdasagi ingatlan

Pomáz

135 M Ft
6 szoba
85 m²
Kismaros
Eladó családi ház

Kismaros

85 M Ft
3 szoba
55 m²
Tököl
Eladó sorház

Tököl

79 M Ft
4 szoba
70 m²
Tököl
Eladó sorház

Tököl

79 M Ft
4 szoba
75 m²
Szob
Eladó sorház

Szob

16 M Ft
2 szoba
45 m²
Érd
Eladó sorház

Érd

98.3 M Ft
2 + 1 szoba
108 m²
Kismaros
Eladó nyaraló

Kismaros

85 M Ft
3 szoba
55 m²
Monorierdő
Eladó családi ház

Monorierdő

155 M Ft
5 szoba
233 m²
Törökbálint
Eladó sorház

Törökbálint

54.9 M Ft
2 szoba
54 m²

Falusi CSOK ingatlanok

Sásd
Eladó családi ház

Sásd

35.9 M Ft
4 + 1 szoba
71 m²
Halimba
Eladó családi ház

Halimba

59.9 M Ft
6 szoba
182 m²
Rakamaz
Eladó családi ház

Rakamaz

86.9 M Ft
5 szoba
280 m²
Győrság
Eladó családi ház

Győrság

79.9 M Ft
4 szoba
92 m²
Bakonycsernye
Eladó családi ház

Bakonycsernye

39 M Ft
3 szoba
350 m²
Nagyszentjános
Eladó családi ház

Nagyszentjános

69.9 M Ft
3 szoba
80 m²
Balatonudvari
Eladó családi ház

Balatonudvari

230 M Ft
9 szoba
260 m²
Ásványráró
Eladó családi ház

Ásványráró

42.5 M Ft
703 m²
69 m²