Pesti Házak

Eladó sorház
Szigetszentmárton

+ 12 kép 1/15
74 900 000 Ft74.9 M Ft 772 165 Ft/m2
4 szoba
97 m2
építés éve:2025

Részletes adatok

Telekméret: 293 m2
Fűtés: Gázkazán
Parkolás: Kocsibeálló
Energetikai besorolás: Nem adta meg a hirdető

Az OTP Bank lakáshitel ajánlataFizetett hirdetés

+36 30 641
Csík Zsolt
referens

Érdekel az OTP Bank kedvezményes lakáshitel ajánlata? *

* A kérdésre „Igen” válasz bejelölése esetén, az „Üzenet küldése” gombra kattintva kijelentem, hogy az OTP Bank Nyrt. Adatkezelési tájékoztatójának tartalmát megismertem és tudomásul vettem.

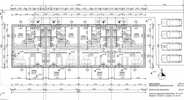
Eladó sorház leírása

Szigetszentmárton új építésű házai szomszédságában, négylakásos sorház 4-es számú.lakása eladó, 293 m2 saját használatú telekrésszel.

KIVÁLÓ KIVITELEZŐ, VERSENYKÉPES ÁRON, KIVÁLÓ OTTHONT AJÁNL ÖNNEK! CSOK +, SAJÁT KERT!

Az otthon nettó 97,90 nm, ehhez 8,75 nm terasz kapcsolódik.
Helyiségei:
Földszint 50,8 nm+8,75 nm terasz.

– konyha/étkező/nappali 23,91 nm
– szoba 10,71 nm
– háztartási helyiség zuhanyzóval, toalettel 4,25 nm
– előtér 8,49 nm
– gardrób 2,72 nm

Emelet 47,10 nm

– közlekedő 4,29 nm
– fürdőszoba 7,17 nm
– szoba 14,25 nm
– szoba 11,13 nm
– szoba 10,13 nm

MŰSZAKI TARTALOM:

-vasalt beton sáv alap
-Porotherm tégla falazat
-nyílászárói (ablakok) műanyag szerkezetűek 6 légkamrás 3 rétegű hőszigetelt üvegezéssel.
-hűtő fűtő klíma
-10 cm Dryvit szigetelés
-lábazaton 10 cm XPS
-beton cserép fedésű tető
-lakások között SILKA hanggátló tégla falazat
-kombi cirkó, padló fűtés az egész lakásban
-választható burkolatok
-saját autóbeálló

A sorházi lakások árai:
1. sz lakás 97 nm lakótér 197 nm telekrész, ára: 74.900.000 Ft ELKELT
2. sz lakás 97 nm lakótér 122 nm telekrész, ára: 64.900.000 Ft
3. sz lakás 97 nm lakótér 122 nm telekrész, ára: 64.900.000 Ft
4. sz lakás 97 nm lakótér 293 nm telekrész, ára: 74.900.000 Ft

Az ingatlant kiváló referenciákkal rendelkező helyi tőkeerős kivitelező építi meg, várható birtokba-adás 2025 nyara.

Szigetszentmárton a Csepel-sziget középső részén a Ráckevei-Duna és a Duna között terül el , Budapesttől 35 kilométerre . A település megközelíthető a Ráckevei HÉV-vel , gépkocsival az 5101-es számú úton ,illetve menetrend szerinti buszjárattal Csepelről. A településen igazi csendben , kellemes friss levegővel élvezheti a mindennapokat , pár méteren belül minden megtalálható , Pl : Óvoda,iskola, orvosi rendelő , buszmegálló játszótér , benzinkút, bisztró , hentes, közért, szépségipari szolgáltatások és a csodálatos Duna part , mely fürdésre,horgászatra vagy számos sportolási lehetőségre is alkalmas.

Várom megtisztelő hívását!

FINANSZÍROZÁS:
Nálunk mindent egy helyen intézhet:
- hivatalos ingatlanközvetítés;
- szakszerű jogi képviselet;
- profi CSOK-PLUSZ, és hitelügyintézés: 16 Bank, több mint 100 konstrukció;

A részletes adatvédelmi tájékoztató folyamatosan elérhető weboldalunkon. ...TOVÁBBI, TÖBBEZRES INGATLAN KÍNÁLAT: www.gdn-ingatlan.hu - GDN azonosító: 380107

Hirdetés feltöltve: 2025. 03. 26. Utoljára módosítva: 2025. 11. 04.

Az ingatlan elhelyezkedése

Cím: Szigetszentmárton

Eladó ingatlanok a környékről

Eladó családi ház
Eladó családi ház

Dunaharaszti

239 M Ft
5 szoba
135 m2
Eladó családi ház
Eladó családi ház

Pilisborosjenő, Bécsi út

145 M Ft
4 + 4 szoba
184 m2
Eladó téglalakás
Eladó téglalakás

Solymár

129.9 M Ft
3 szoba
107 m2
Eladó sorház
Eladó sorház

Kiskunlacháza, Központ

63 M Ft
4 szoba
98 m2
Eladó sorház
Eladó sorház

Szigetszentmárton

65.9 M Ft
4 szoba
100 m2
Eladó családi ház
Eladó családi ház

Újszilvás

25 M Ft
3 szoba
66 m2
Eladó sorház
Eladó sorház

Dunaharaszti

99.9 M Ft
4 szoba
100 m2
Eladó sorház
Eladó sorház

Gödöllő, Csanak, Kard utca

155 M Ft
3 szoba
100 m2
Eladó sorház
Eladó sorház

Dunaharaszti

99.9 M Ft
4 szoba
100 m2
Eladó sorház
Eladó sorház

Délegyháza

94.9 M Ft
12 szoba
350 m2
Eladó családi ház
Eladó családi ház

Veresegyház

229 M Ft
6 szoba
297 m2
Eladó sorház
Eladó sorház

Szigetmonostor

67 M Ft
4 + 1 szoba
109 m2
Eladó családi ház
Eladó családi ház

Sülysáp

34.9 M Ft
2 szoba
40 m2
Eladó panellakás
Eladó panellakás

Gödöllő

66.5 M Ft
2 szoba
58 m2
Eladó családi ház
Eladó családi ház

Csömör, Viola utca

279.9 M Ft
6 szoba
341 m2
Eladó sorház
Eladó sorház

Szigetszentmárton

73.9 M Ft
5 szoba
97 m2
Eladó sorház
Eladó sorház

Szentendre

120 M Ft
7 szoba
360 m2
Eladó sorház
Eladó sorház

Dunaharaszti

89 M Ft
6 szoba
80 m2
Eladó családi ház
Eladó családi ház

Dunakeszi, Alag központ, Muskátli utca

149.9 M Ft
6 + 1 szoba
260 m2
Eladó sorház
Eladó sorház

Mikebuda

7.9 M Ft
2 szoba
70 m2
Eladó sorház
Eladó sorház

Pécel

89.9 M Ft
1 + 4 szoba
80 m2
Eladó sorház
Eladó sorház

Szigetszentmárton

69.9 M Ft
5 szoba
97 m2
Eladó sorház
Eladó sorház

Nagykovácsi

255 M Ft
6 szoba
176 m2
Eladó sorház
Eladó sorház

Szigetszentmárton

69.9 M Ft
4 szoba
96 m2

Falusi CSOK ingatlanok

Eladó családi ház
Eladó családi ház

Ónod, Kossuth út 10

27.499 M Ft
3 + 2 szoba
120 m2
Eladó ikerház
Eladó ikerház

Balatonakali

165 M Ft
4 szoba
138 m2
Eladó családi ház
Eladó családi ház

Nagykarácsony

34.9 M Ft
3 szoba
112 m2
Eladó családi ház
Eladó családi ház

Tiszajenő

22.5 M Ft
3 szoba
48 m2
Eladó családi ház
Eladó családi ház

Tápiógyörgye

33 M Ft
3 + 2 szoba
140 m2
Eladó családi ház
Eladó családi ház

Nagykarácsony

34.9 M Ft
3 szoba
112 m2
Eladó sorház
Eladó sorház

Egervár

29.9 M Ft
3 szoba
90 m2
Eladó családi ház
Eladó családi ház

Dunaszentbenedek

24.9 M Ft
2 szoba
85 m2