River Life

Eladó sorház
Monor

+ 10 kép 1/13
83 800 000 Ft83.8 M Ft 1 102 632 Ft/m2
1 + 3 szoba
76 m2

Részletes adatok

Telekméret: 150 m2
Fűtés: Egyéb
Közmű: Villany, Szélessáv, KábelTV
Energetikai besorolás: Nem adta meg a hirdető

Az OTP Bank lakáshitel ajánlataFizetett hirdetés

+36 30 625
Moldván Judit
Judit Ingatlan és Hiteliroda Kft.

Érdekel az OTP Bank kedvezményes lakáshitel ajánlata? *

* A kérdésre „Igen” válasz bejelölése esetén, az „Üzenet küldése” gombra kattintva kijelentem, hogy az OTP Bank Nyrt. Adatkezelési tájékoztatójának tartalmát megismertem és tudomásul vettem.

Eladó sorház leírása

HASZNÁLJA KI A CSOK+ KAMATTÁMOGATOTT HITEL ELŐNYEIT, A 4% ILLETÉKKEDVEZMÉNYT, VALAMINT A 3%-OS OTTHON START HITELT!!!!!!

10 % FOGLALÓVAL, + 10 % VÉTELÁR ELŐLEGGEL LEKÖTHETŐ!!!

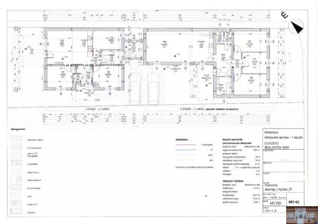
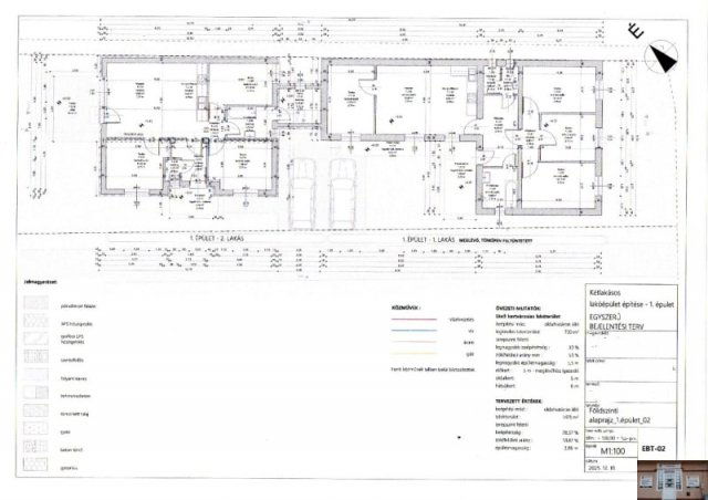
Monor kertvárosában 2×2 társasházi lakás épül, saját telekkel, közös kocsibeállóval melyek I. ütemének FOGLALÁSA MÁR MEGKEZDŐDÖTT!!!

Az 1. lakás lakóterülete 92,35 m2, melyben előszoba (8,95 m2), nappali (24,02 m2), konyha-étkező (12,82 m2), közlekedő (2,80 m2), 1. szoba (12,14 m2), 2. szoba (9,22 m2), 3. szoba (12,17), fürdőszoba (5,08 m2), WC (3,49 m2), és gépészet (1,66 m2) található, valamint egy fedett terasz (7,69 m2) van a bejárat előtt.

Igény szerint a nappaliból egy 4. szoba (11,61 m2) is kialakítható, így a nappali (18,29 m2), a konyha-étkező (6,54 m2) lesz.

Az ingatlanhoz kb. 100 m2 saját telek tartozik.

Fűtés: hőszivattyúval („H” tarifa), hőleadás padlófűtéssel, valamint inverteres klímával.

Közművek közül vezetékes víz, villany („H” tarifával), és csatorna bevezetésre kerül.

Az ingatlan a ’90-es években épült téglából, ezt újítják fel teljes egészében: új szigetelést, nyílászárókat, fűtésrendszert, és a vevő által kiválasztott burkolatot kap, valamint a belső tereket is átalakítják a mai kor elvárásainak megfelelően.

ÁRA: 90.000.000.- Ft

Ehhez az ingatlanhoz csatlakozik az új építésű 2. lakás, mellyel csak a tárolóval ér össze.

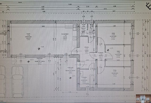
A 2. lakás lakóterülete 76,18 m2, melyben előszoba (4,38 m2), nappali (18,52 m2), konyha-étkező (8,48 m2), közlekedő (1,10 m2), 1. szoba (11,05 m2), 2. szoba (10,30 m2), 3. szoba (10,64), fürdőszoba (5,13 m2), WC (1,17 m2), és tároló (5,46 m2) található, valamint egy előlépcső (4,16 m2), és egy terasz (11,70 m2) kapcsolódik a nappalihoz.

Az ingatlanhoz kb. 150 m2 saját telek tartozik.

Fűtés: hőszivattyúval („H” tarifa), hőleadás padlófűtéssel, valamint inverteres klímával.

Közművek közül a villany („H” tarifával), vezetékes víz kerül bevezetésre, a szennyvízelvezetés zárt rendszerű emésztőbe történik.

ÁRA: 83.800.000.- Ft

Elektromos kapu!

Burkolatok 8.000.- Ft/m2 árig választhatóak.

Átadás: 2026. IV. negyedév

AZ ELKÉSZÜLT INGATLANOKRÓL FELTÖLTÖTT KÉPEK A VÁLLALKOZÓ ÁLTAL ÉPÍTETT INGATLANOK REFERENCIAMUNKÁI!!!

DÍJMENTES HITELÜGYINTÉZÉS IRODÁNKBAN!!!

OTTHON START HITEL, CSOK+, BABAVÁRÓ KÖLCSÖN, KAMATTÁMOGATOTT LAKÁSHITELEK, ….

2003 ÓTA AZ ÖNÖK BIZALMÁBAN!

Hirdetés feltöltve: 2025. 12. 13. Utoljára módosítva: 2025. 12. 14.

Az ingatlan elhelyezkedése

Cím: Monor

Eladó ingatlanok a környékről

Eladó családi ház
Eladó családi ház

Maglód

127.937 M Ft
5 szoba
180 m2
Eladó családi ház
Eladó családi ház

Szentendre, Szentendre, Pismány

219 M Ft
5 szoba
188 m2
Eladó családi ház
Eladó családi ház

Újlengyel

79.9 M Ft
5 szoba
140 m2
Eladó sorház
Eladó sorház

Kiskunlacháza

63.75 M Ft
4 szoba
85 m2
Eladó sorház
Eladó sorház

Érd

99.9 M Ft
4 szoba
101 m2
Eladó családi ház
Eladó családi ház

Vecsés

119.9 M Ft
4 szoba
75 m2
Eladó sorház
Eladó sorház

Monor

82 M Ft
1 + 3 szoba
76 m2
Eladó sorház
Eladó sorház

Dunaharaszti

89 M Ft
6 szoba
80 m2
Eladó sorház
Eladó sorház

Érd

299.9 M Ft
631 m²
302 m2
Eladó sorház
Eladó sorház

Szigetszentmiklós

74.5 M Ft
4 + 1 szoba
150 m2
Eladó sorház
Eladó sorház

Monor

90 M Ft
3 + 1 szoba
92 m2
Eladó sorház
Eladó sorház

Monor

89.99 M Ft
2 + 2 szoba
81 m2
Eladó családi ház
Eladó családi ház

Dabas

52 M Ft
2 + 2 szoba
90 m2
Eladó téglalakás
Eladó téglalakás

Üllő

49.9 M Ft
2 szoba
56 m2
Eladó ikerház
Eladó ikerház

Üröm, Üröm

126.9 M Ft
4 szoba
128 m2
Eladó sorház
Eladó sorház

Kiskunlacháza

47.6 M Ft
3 szoba
68 m2
Eladó sorház
Eladó sorház

Dunaharaszti, Csendes, parkos környezet

128 M Ft
4 + 2 szoba
105 m2
Eladó családi ház
Eladó családi ház

Vecsés

115.9 M Ft
4 szoba
97 m2
Eladó sorház
Eladó sorház

Gödöllő, Csanak, Kard utca

155 M Ft
3 szoba
100 m2
Eladó sorház
Eladó sorház

Leányfalu

80 M Ft
4 szoba
180 m2
Eladó sorház
Eladó sorház

Dunaharaszti

99.9 M Ft
4 szoba
96 m2
Eladó családi ház
Eladó családi ház

Pilisborosjenő, Pilisborosjenő, központ

120 M Ft
3 szoba
80 m2
Eladó ikerház
Eladó ikerház

Üröm, Üröm, Völgyliget II Lakópark

126.9 M Ft
5 szoba
128 m2
Eladó téglalakás
Eladó téglalakás

Gyál

68.5 M Ft
4 szoba
68 m2

Falusi CSOK ingatlanok

Eladó családi ház
Eladó családi ház

Nyírtura

99 M Ft
4 szoba
280 m2
Eladó családi ház
Eladó családi ház

Tarján

31.5 M Ft
3 szoba
120 m2
Eladó családi ház
Eladó családi ház

Iváncsa

34.5 M Ft
2 + 1 szoba
72 m2
Eladó családi ház
Eladó családi ház

Sellye

54.99 M Ft
4 szoba
99 m2
Eladó ikerház
Eladó ikerház

Seregélyes

39.9 M Ft
4 szoba
150 m2
Eladó családi ház
Eladó családi ház

Boldva

25.99 M Ft
2 szoba
130 m2
Eladó családi ház
Eladó családi ház

Zengővárkony

30.999 M Ft
3 szoba
87 m2
Eladó családi ház
Eladó családi ház

Magyarszék

48.5 M Ft
3 + 1 szoba
86 m2