Seven Pearl

Eladó sorház
Keszthely

+ 17 kép 1/20
158 000 000 Ft158 M Ft 1 645 833 Ft/m2
2 + 3 szoba
96 m2
építés éve:1980

Részletes adatok

Telekméret: 300 m2
Fűtés: Egyéb
Energetikai besorolás: Nem adta meg a hirdető

Az OTP Bank lakáshitel ajánlataFizetett hirdetés

+36 20 938
Vincze László György
OTPIP - Pécs, Rákóczi út 19.

Érdekel az OTP Bank kedvezményes lakáshitel ajánlata? *

* A kérdésre „Igen” válasz bejelölése esetén, az „Üzenet küldése” gombra kattintva kijelentem, hogy az OTP Bank Nyrt. Adatkezelési tájékoztatójának tartalmát megismertem és tudomásul vettem.

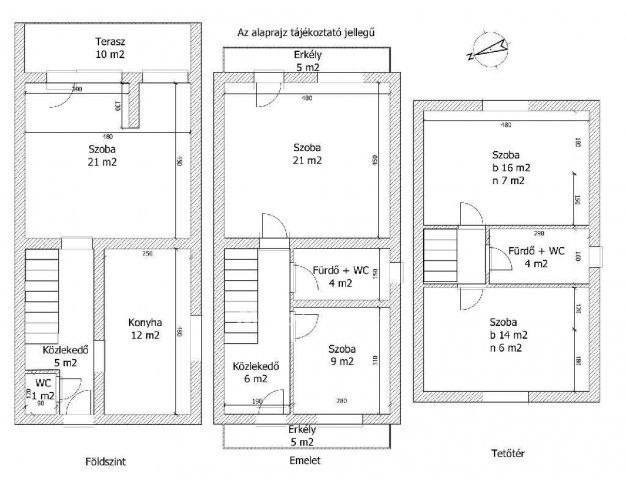
Eladó sorház leírása

Eladó felújított sorházi lakás Keszthely üdülőövezetében, a Balaton közelében

Keszthely egyik kedvelt üdülőövezetében eladó egy hangulatos, 96 m2-es háromszintes sorházi lakás, amely az 1980-as években épült, de az elmúlt években teljes körű felújításon esett át. Az épület téglafalai 10 cm vastag hőszigetelést kaptak, a tetőfedés korszerű cserepeslemezre lett cserélve. A modernizálás részeként minden nyílászáró új, háromrétegű üvegezésű ablakra lett cserélve, továbbá megújult a villamos és fűtésrendszer is.

A ház fűtését fatüzelésű kályha és egy 800 literes puffertartály biztosítja, amely a radiátoros rendszeren keresztül oszlatja el a meleget.

A lakáshoz egy tágas terasz, valamint gondozott, hangulatos, 300 m2-es kertrész tartozik, kerti sütögetővel és tárolóval. Az udvaron két autó számára kialakított kocsibeálló áll rendelkezésre.

Az ingatlan elhelyezkedése ideális: a Balaton partja néhány száz méterre található, a legközelebbi strandok gyalogosan mindössze 10-15 perc alatt megközelíthetők. A környék csendes, mégis közel van a város szolgáltatásaihoz és a tóparti kikapcsolódási lehetőségekhez.

Amennyiben felkeltette érdeklődését és szeretné megtekinteni személyesen is az ingatlant kérem hívjon! M316330

158000000 Ft

Referencia szám: M316330

Hirdetés feltöltve: 2025. 11. 27. Utoljára módosítva: 2025. 12. 17.

Az ingatlan elhelyezkedése

Cím: Keszthely

Eladó ingatlanok a környékről

Eladó telek
Eladó telek

Hévíz, Dr. Babócsay utca

39.9 M Ft
720 m²
720 m2
Eladó sorház
Eladó sorház

Keszthely

114.9 M Ft
6 szoba
165 m2
Eladó sorház
Eladó sorház

Keszthely

158 M Ft
2 + 3 szoba
96 m2
Eladó családi ház
Eladó családi ház

Karmacs

37.8 M Ft
3 szoba
70 m2
Eladó sorház
Eladó sorház

Keszthely

209.99 M Ft
2 + 3 szoba
234 m2
Eladó sorház
Eladó sorház

Újudvar

30.5 M Ft
3 szoba
82 m2
Eladó sorház
Eladó sorház

Vindornyaszőlős

24.9 M Ft
6 szoba
160 m2
Eladó sorház
Eladó sorház

Hévíz

136 M Ft
7 szoba
210 m2
Eladó családi ház
Eladó családi ház

Sümegcsehi

66 M Ft
2 szoba
65 m2
Eladó családi ház
Eladó családi ház

Zalaszentgrót

43.815 M Ft
3 szoba
160 m2
Eladó telek
Eladó telek

Hévíz, Dr. Babócsay utca

319.9 M Ft
10535 m²
10535 m2
Eladó sorház
Eladó sorház

Keszthely

99.5 M Ft
4 + 1 szoba
121 m2
Eladó sorház
Eladó sorház

Keszthely

114.9 M Ft
6 szoba
165 m2
Eladó sorház
Eladó sorház

Keszthely

85 M Ft
5 szoba
122 m2
Eladó sorház
Eladó sorház

Zalaegerszeg

79.9 M Ft
7 szoba
214 m2
Eladó sorház
Eladó sorház

Keszthely, Pipacs utca

79 M Ft
4 szoba
90 m2
Eladó sorház
Eladó sorház

Vonyarcvashegy

89.9 M Ft
4 + 1 szoba
165 m2
Eladó sorház
Eladó sorház

Keszthely

73.9 M Ft
5 szoba
130 m2
Eladó sorház
Eladó sorház

Zalaszentmihály

9.9 M Ft
2 szoba
98 m2
Eladó sorház
Eladó sorház

Keszthely

73.9 M Ft
5 szoba
130 m2
Eladó sorház
Eladó sorház

Keszthely, Schwarz Dávid utca

199.99 M Ft
5 szoba
234 m2
Eladó sorház
Eladó sorház

Zalaegerszeg

52.4 M Ft
3 szoba
92 m2
Eladó családi ház
Eladó családi ház

Kustánszeg

76 M Ft
4 szoba
138 m2
Eladó sorház
Eladó sorház

Keszthely, Pipacs utca

79 M Ft
4 szoba
90 m2

Falusi CSOK ingatlanok

Eladó családi ház
Eladó családi ház

Nagybörzsöny

79.9 M Ft
4 szoba
149 m2
Eladó családi ház
Eladó családi ház

Ceglédbercel

67 M Ft
3 szoba
173 m2
Eladó családi ház
Eladó családi ház

Magyarszék

48.5 M Ft
3 + 1 szoba
86 m2
Eladó családi ház
Eladó családi ház

Kemeneshőgyész

8 M Ft
2 szoba
60 m2
Eladó családi ház
Eladó családi ház

Jakabszállás

69.99 M Ft
1 + 4 szoba
91 m2
Eladó családi ház
Eladó családi ház

Sellye

15 M Ft
3 szoba
120 m2
Eladó családi ház
Eladó családi ház

Jászalsószentgyörgy

39.9 M Ft
2 szoba
74 m2
Eladó családi ház
Eladó családi ház

Adásztevel

8.9 M Ft
2 szoba
63 m2