Astora Olive Club House

Eladó sorház
Keszthely

+ 17 kép 1/20
158 000 000 Ft158 M Ft 1 645 833 Ft/m2
2 + 3 szoba
96 m2
építés éve:1980

Részletes adatok

Állapot: Átlagos
Telekméret: 300 m2
Fűtés: Egyéb
Közmű: Víz, Villany, Csatorna
Energetikai besorolás: Nem adta meg a hirdető

Az OTP Bank lakáshitel ajánlataFizetett hirdetés

+36 30 930
Boja Péter
referens

Érdekel az OTP Bank kedvezményes lakáshitel ajánlata? *

* A kérdésre „Igen” válasz bejelölése esetén, az „Üzenet küldése” gombra kattintva kijelentem, hogy az OTP Bank Nyrt. Adatkezelési tájékoztatójának tartalmát megismertem és tudomásul vettem.

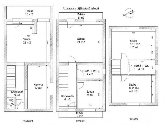
Eladó sorház leírása

Eladó felújított sorházi lakás Keszthely üdülőövezetében, a Balaton közelében

Keszthely egyik kedvelt üdülőövezetében eladó egy hangulatos, 96 m2-es háromszintes sorházi lakás, amely az 1980-as években épült, de az elmúlt években teljes körű felújításon esett át. Az épület téglafalai 10 cm vastag hőszigetelést kaptak, a tetőfedés korszerű cserepeslemezre lett cserélve. A modernizálás részeként minden nyílászáró új, háromrétegű üvegezésű ablakra lett cserélve, továbbá megújult a villamos és fűtésrendszer is.

A ház fűtését fatüzelésű kályha és egy 800 literes puffertartály biztosítja, amely a radiátoros rendszeren keresztül oszlatja el a meleget.

A lakáshoz egy tágas terasz, valamint gondozott, hangulatos, 300 m2-es kertrész tartozik, kerti sütögetővel és tárolóval. Az udvaron két autó számára kialakított kocsibeálló áll rendelkezésre.

Az ingatlan elhelyezkedése ideális: a Balaton partja néhány száz méterre található, a legközelebbi strandok gyalogosan mindössze 10-15 perc alatt megközelíthetők. A környék csendes, mégis közel van a város szolgáltatásaihoz és a tóparti kikapcsolódási lehetőségekhez.

Amennyiben felkeltette érdeklődését és szeretné megtekinteni személyesen is az ingatlant kérem hívjon!

Hirdetés feltöltve: 2025. 11. 18. Utoljára módosítva: 2025. 11. 18.

Az ingatlan elhelyezkedése

Cím: Keszthely

Eladó ingatlanok a környékről

Eladó téglalakás
Eladó téglalakás

Zalaegerszeg

29.5 M Ft
1 szoba
34 m2
Eladó sorház
Eladó sorház

Zalaegerszeg

52.4 M Ft
3 szoba
92 m2
Eladó téglalakás
Eladó téglalakás

Zalaegerszeg

39.9 M Ft
2 szoba
62 m2
Eladó sorház
Eladó sorház

Keszthely

114.9 M Ft
6 szoba
165 m2
Eladó téglalakás
Eladó téglalakás

Zalaegerszeg

37.99 M Ft
2 + 1 szoba
52 m2
Eladó családi ház
Eladó családi ház

Zalaszentlőrinc

54.5 M Ft
4 szoba
91 m2
Eladó sorház
Eladó sorház

Keszthely

94.5 M Ft
3 + 1 szoba
120 m2
Eladó sorház
Eladó sorház

Gellénháza

42.5 M Ft
4 szoba
99 m2
Eladó sorház
Eladó sorház

Keszthely

109.9 M Ft
4 + 1 szoba
121 m2
Eladó üzlethelyiség
Eladó üzlethelyiség

Gellénháza

19.5 M Ft
101 m2
Eladó sorház
Eladó sorház

Keszthely

110 M Ft
3 + 1 szoba
120 m2
Eladó családi ház
Eladó családi ház

Zalakaros

25.9 M Ft
3 szoba
116 m2
Eladó sorház
Eladó sorház

Keszthely, Pipacs utca

79 M Ft
4 szoba
90 m2
Eladó sorház
Eladó sorház

Keszthely

73.9 M Ft
4 szoba
90 m2
Eladó sorház
Eladó sorház

Zalaegerszeg

44.9 M Ft
2 + 1 szoba
159 m2
Eladó téglalakás
Eladó téglalakás

Alsópáhok

74 M Ft
3 szoba
103 m2
Eladó sorház
Eladó sorház

Nagykanizsa

54.99 M Ft
4 szoba
136 m2
Eladó sorház
Eladó sorház

Hévíz

56 M Ft
3 + 1 szoba
Eladó ikerház
Eladó ikerház

Zalaegerszeg

69 M Ft
3 szoba
75 m2
Eladó sorház
Eladó sorház

Keszthely

90 M Ft
4 + 1 szoba
121 m2
Eladó téglalakás
Eladó téglalakás

Zalaegerszeg

39.9 M Ft
2 szoba
62 m2
Eladó téglalakás
Eladó téglalakás

Zalaegerszeg

89.5 M Ft
5 szoba
250 m2
Eladó téglalakás
Eladó téglalakás

Zalaegerszeg, Gébárti út

37.99 M Ft
2 szoba
52 m2
Eladó sorház
Eladó sorház

Hévíz

136 M Ft
7 szoba
210 m2

Falusi CSOK ingatlanok

Eladó családi ház
Eladó családi ház

Belvárdgyula

27.9 M Ft
4 szoba
120 m2
Eladó családi ház
Eladó családi ház

Adásztevel

8.9 M Ft
2 szoba
63 m2
Eladó családi ház
Eladó családi ház

Váckisújfalu

40 M Ft
2 szoba
62 m2
Eladó családi ház
Eladó családi ház

Tabajd

79 M Ft
4 szoba
82 m2
Eladó családi ház
Eladó családi ház

Ceglédbercel

64.9 M Ft
3 szoba
87 m2
Eladó családi ház
Eladó családi ház

Tiszaalpár

29 M Ft
4 szoba
132 m2
Eladó családi ház
Eladó családi ház

Erdősmárok

87 M Ft
6 szoba
140 m2
Eladó családi ház
Eladó családi ház

Hernádnémeti

18.9 M Ft
2 szoba
62 m2