Metrodom

Eladó panellakás
Veszprém, 7. emelet

+ 10 kép 1/13
59 990 000 Ft59.99 M Ft 967 581 Ft/m2
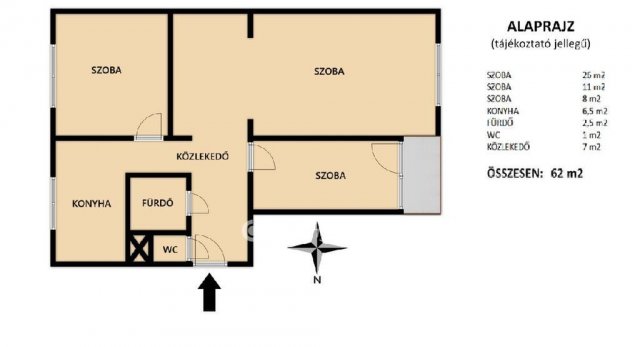
3 szoba
62 m²
7. emelet
építés éve:1985

Részletes adatok

Fűtés: Távfűtés
Emelet: 7. emelet
Komfort: Összkomfortos
Extrák: Lift
Energetikai besorolás: Nem adta meg a hirdető

Az OTP Bank lakáshitel ajánlataFizetett hirdetés

+36 20 475
Nagy Zoltán
OTP Ingatlanpont Veszprém

Érdekel az OTP Bank kedvezményes lakáshitel ajánlata? *

* A kérdésre „Igen” válasz bejelölése esetén, az „Üzenet küldése” gombra kattintva kijelentem, hogy az OTP Bank Nyrt. Adatkezelési tájékoztatójának tartalmát megismertem és tudomásul vettem.

Eladó panellakás leírása

Felújított, napfényes otthon LIFTES, CSENDES házban.

1. INGATLAN HELYSZÍNE, LOKÁCIÓ
- Veszprémben, a közkedvelt Jutasi úti lakótelepen található az eladó lakás.
- 62 m2, 3 szoba.
- A legfelső szint nyugalmát élvezheti: felülről nincs zavaró zaj.
- Gyalogosan is gyorsan elérhetők a mindennapi szolgáltatások és a tömegközlekedés.
- Kiváló választás első otthonnak, családoknak és befektetőknek egyaránt.

2. ÉPÜLET JELLEMZŐI KÍVÜLRŐL
- Hétemeletes, liftes panelház, a lakás a legfelső, 7. emeleten (8. lakószinten) található.
- A társasház külső hőszigetelést kapott, rendezett és esztétikus a homlokzat.
- Tiszta, karbantartott lépcsőház, kulturált lakóközösség.
- Felülről nem zavar senki ? teljes intimitás és nyugalom.
- Igény esetén tároló bérelhető a házban.

3. AZ INGATLAN JELLEMZŐI BELÜLRŐL
- 62 nm-es, 3 szobás, gondosan felújított lakás.
- Víz- és villanyvezetékek cserélve, a villamos hálózat 32 A-re bővítve.
- Új műanyag nyílászárók redőnnyel és szúnyoghálóval növelik a komfortot.
- Praktikus, zuhanyzós fürdőszoba törölközőszárítós radiátorral.
- Kis méretű, kb. 2 nm-es erkély biztosít friss levegős kiülőt.
- Távfűtés egyedi méréssel; klíma telepítése folyamatban; a bútorok megegyezés szerint maradhatnak.

4. AZ INGATLANNAL KAPCSOLATOS KÖLTSÉGEK
- Távfűtés egyedi méréssel ? a fogyasztás a tényleges használat szerint fizetendő.
- A külső szigetelés és a korszerű nyílászárók energiahatékony üzemeltetést támogatnak.
- Tároló bérlése külön díj ellenében lehetséges.
- Bútorozás megállapodás szerint, külön értékezés tárgya.

5. A KÖRNYÉK JELLEMZŐI
- Rendezett, zöldfelületekben gazdag lakótelepi környezet a Jutasi úton.
- Pár perc sétára elérhetők a bevásárlási lehetőségek, oktatási intézmények és buszmegállók.
- Biztonságos, élhető környék, aktív közösséggel.
- Szabadidős lehetőségek és játszóterek a közelben, családbarát miliő.
- Kényelmes városi élet, mégis nyugodt, otthonos hangulat.

Amennyiben hirdetésem felkeltette az érdeklődését, várom hívását, akár hétvégén is, időpontegyeztetést követően rugalmasan megtekinthető.

Jöjjön el, nézze meg, tegyen rá ajánlatot!

Az OTP Ingatlanpont teljes körű ügyintézéssel áll az eladók és a vevők rendelkezésére. A kínálatunkból választott ingatlan finanszírozásához kedvezményes hitelkonstrukciót kínálunk. Az adásvételi szerződés megkötéséhez igény szerint megbízható ügyvédi közreműködést biztosítunk, és segítséget nyújtunk az adásvételhez kapcsolódó ügyek intézéséhez is, hogy az ügyfelek számára zökkenőmentes és biztonságos tranzakciót biztosítsunk.

Energetikai tanúsítvány: jelenleg még nincs.

Ez az ingatlan megfelel a fix 3 %-os Otthon Start Hitelprogram feltételeinek.

Az energetikai tanúsítvány készítése folyamatban van, amint rendelkezésre áll, úgy azzal a hirdetés frissítésre kerül.

Érdeklődni: +36-20/4757-888 Nagy Zoltán OTP Ingatlanpont

Hirdetés feltöltve: 2026. 04. 27. Utoljára módosítva: 2026. 05. 18.

3 szobás panellakások ára Veszprémben

Ebből az összehasonlításból megtudhatod, hogyan viszonyul a lakás ára a környékbeli panellakások átlagos árához. Ez nem azt jelenti, hogy ennyivel olcsóbb vagy drágább, mint amennyit a lakás ér, hanem hogy ennyivel tér el a környékbeli átlagtól.

Ennek a m² ára
Veszprém m² ár
968 e Ft
929 e Ft -4%
Ennek az ára
Veszprém átlagár
59.99 M Ft m Ft
58.6 m Ft -2%

Az ingatlan elhelyezkedése

Cím: Veszprém, 7. emelet

Eladó panellakások a környékről

Veszprém
Eladó panellakás

Veszprém

64 M Ft
3 + 1 szoba
80 m²
Veszprém
Eladó panellakás

Veszprém

49 M Ft
2 + 1 szoba
60 m²
Balatonfüred
Eladó panellakás

Balatonfüred

49.9 M Ft
2 szoba
42 m²
Veszprém
Eladó panellakás

Veszprém

49 M Ft
2 + 1 szoba
60 m²
Veszprém
Eladó panellakás

Veszprém

66.9 M Ft
3 szoba
70 m²
Veszprém
Eladó panellakás

Veszprém

59.9 M Ft
4 szoba
67 m²
Veszprém
Eladó panellakás

Veszprém

64 M Ft
3 + 1 szoba
80 m²
Veszprém
Eladó panellakás

Veszprém

59.9 M Ft
4 szoba
67 m²
Várpalota
Eladó panellakás

Várpalota

36.9 M Ft
2 szoba
49 m²
Veszprém, Jutasi úti lakótelep, Klapka György utca
Eladó panellakás

Veszprém

63.9 M Ft
3 szoba
70 m²
Veszprém
Eladó panellakás

Veszprém

64 M Ft
3 + 1 szoba
80 m²
Veszprém
Eladó panellakás

Veszprém

63.9 M Ft
3 szoba
70 m²
Veszprém
Eladó panellakás

Veszprém

63.9 M Ft
3 szoba
70 m²
Veszprém
Eladó panellakás

Veszprém

66.9 M Ft
3 szoba
70 m²
Veszprém
Eladó panellakás

Veszprém

49 M Ft
2 + 1 szoba
60 m²
Berhida
Eladó panellakás

Berhida

35.99 M Ft
2 szoba
39 m²
Várpalota
Eladó panellakás

Várpalota

36.9 M Ft
2 szoba
49 m²
Veszprém
Eladó panellakás

Veszprém

63.9 M Ft
3 szoba
70 m²
Veszprém
Eladó panellakás

Veszprém

69.9 M Ft
4 szoba
68 m²
Balatonfüred
Eladó panellakás

Balatonfüred

74.99 M Ft
5 szoba
81 m²
Veszprém
Eladó panellakás

Veszprém

66.9 M Ft
3 szoba
70 m²
Veszprém
Eladó panellakás

Veszprém

64 M Ft
3 + 1 szoba
80 m²
Várpalota, Jókai utca
Eladó panellakás

Várpalota

41 M Ft
1 + 1 szoba
42 m²
Veszprém
Eladó panellakás

Veszprém

69.9 M Ft
4 szoba
68 m²

Falusi CSOK ingatlanok

Balinka, Petőfi S. utca 27
Eladó családi ház

Balinka

12.65 M Ft
1 + 2 szoba
79 m²
Seregélyes
Eladó családi ház

Seregélyes

87 M Ft
4 szoba
96 m²
Balatonszemes, Ady E. utca 6
Eladó téglalakás

Balatonszemes

108.9 M Ft
2 + 1 szoba
63 m²
Balatonszepezd
Eladó családi ház

Balatonszepezd

299 M Ft
5 szoba
220 m²
Lajoskomárom
Eladó családi ház

Lajoskomárom

22.9 M Ft
2 szoba
66 m²
Seregélyes
Eladó családi ház

Seregélyes

87 M Ft
4 szoba
96 m²
Csárdaszállás
Eladó családi ház

Csárdaszállás

11.99 M Ft
3 + 2 szoba
100 m²
Bakonycsernye
Eladó családi ház

Bakonycsernye

39 M Ft
3 szoba
350 m²