Avico Greentop

Eladó panellakás
Salgótarján, 5. emelet

+ 11 kép 1/14
22 500 000 Ft22.5 M Ft 401 786 Ft/m2
3 szoba
56 m²
5. emelet
építés éve:1980

Részletes adatok

Fűtés: Távfűtés
Emelet: 5. emelet
Komfort: Összkomfortos
Extrák: Lift
Energetikai besorolás: Nem adta meg a hirdető

Az OTP Bank lakáshitel ajánlataFizetett hirdetés

+36 70 616
Foki Annamária
Salgótarján Otpip

Érdekel az OTP Bank kedvezményes lakáshitel ajánlata? *

* A kérdésre „Igen” válasz bejelölése esetén, az „Üzenet küldése” gombra kattintva kijelentem, hogy az OTP Bank Nyrt. Adatkezelési tájékoztatójának tartalmát megismertem és tudomásul vettem.

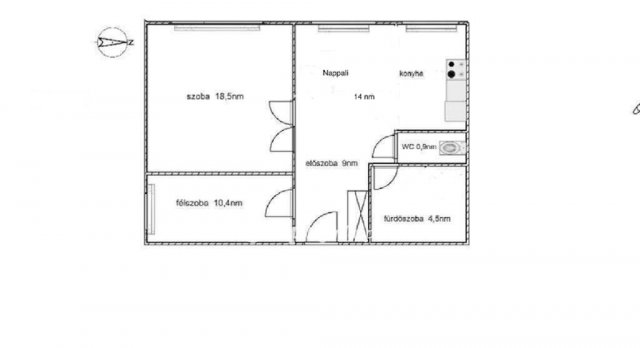
Eladó panellakás leírása

Eladó felújított, amerikai konyhás lakás Salgótarján kedvelt városrészében, Besztercén!

Salgótarján Beszterce városrészében eladó, egy 56 nm-es, 2+1 félszobás, teljeskörűen felújított, távfűtéses, 5. emeleti lakás.

Az ingatlan átgondolt átalakításon esett át: az egyik félszobát a konyhával összenyitották, így egy tágas, világos amerikai konyhás nappali került kialakításra, amely ideális családi és baráti összejövetelekhez is.

A lakás műszaki és esztétikai felújítása során:
cserélve lettek a nyílászárók
teljeskörűen megújult a fürdőszoba
modern, felújított konyha került beépítésre

Az ingatlan jó elosztású, világos, az 5. emeleti elhelyezkedésének köszönhetően kellemes panorámával és csendesebb lakókörnyezettel rendelkezik.

A Beszterce lakótelep rendkívül jó ellátottságú: a közelben megtalálható bolt, iskola, óvoda, gyógyszertár, buszmegálló és egyéb szolgáltatások ? minden, ami a kényelmes mindennapokhoz szükséges.

Ideális választás lehet fiatal pároknak, kisgyermekes családoknak vagy akár befektetésnek is.

Érdemes megtekinteni ? egy igényesen felújított, azonnal költözhető otthon várja új tulajdonosát!

Hirdetés feltöltve: 2026. 04. 10. Utoljára módosítva: 2026. 05. 16.

3 szobás panellakások ára Salgótarjánban

Ebből az összehasonlításból megtudhatod, hogyan viszonyul a lakás ára a környékbeli panellakások átlagos árához. Ez nem azt jelenti, hogy ennyivel olcsóbb vagy drágább, mint amennyit a lakás ér, hanem hogy ennyivel tér el a környékbeli átlagtól.

Ennek a m² ára
Salgótarján m² ár
402 e Ft
364 e Ft -10%
Ennek az ára
Salgótarján átlagár
22.5 M Ft m Ft
22.9 m Ft 2%

Az ingatlan elhelyezkedése

Cím: Salgótarján, 5. emelet

Eladó panellakások a környékről

Salgótarján
Eladó panellakás

Salgótarján

11.5 M Ft
2 szoba
49 m²
Salgótarján
Eladó panellakás

Salgótarján

21.49 M Ft
1 + 1 szoba
46 m²
Salgótarján
Eladó panellakás

Salgótarján

16.9 M Ft
3 szoba
61 m²
Salgótarján
Eladó panellakás

Salgótarján

24.9 M Ft
2 szoba
47 m²
Salgótarján
Eladó panellakás

Salgótarján

20.995 M Ft
1 + 2 szoba
60 m²
Salgótarján
Eladó panellakás

Salgótarján

20.995 M Ft
1 + 2 szoba
60 m²
Salgótarján
Eladó panellakás

Salgótarján

13.8 M Ft
2 szoba
55 m²
Salgótarján
Eladó panellakás

Salgótarján

17.7 M Ft
1 + 1 szoba
51 m²
Salgótarján
Eladó panellakás

Salgótarján

21.9 M Ft
3 szoba
56 m²
Salgótarján
Eladó panellakás

Salgótarján

21.49 M Ft
1 + 1 szoba
46 m²
Salgótarján
Eladó panellakás

Salgótarján

17.7 M Ft
1 + 1 szoba
51 m²
Salgótarján
Eladó panellakás

Salgótarján

19.9 M Ft
2 szoba
51 m²
Salgótarján
Eladó panellakás

Salgótarján

17.7 M Ft
1 + 1 szoba
51 m²
Salgótarján
Eladó panellakás

Salgótarján

25 M Ft
2 szoba
57 m²
Salgótarján
Eladó panellakás

Salgótarján

19.5 M Ft
2 szoba
53 m²
Salgótarján
Eladó panellakás

Salgótarján

20.9 M Ft
3 szoba
68 m²
Salgótarján
Eladó panellakás

Salgótarján

20.995 M Ft
1 + 2 szoba
60 m²
Bátonyterenye
Eladó panellakás

Bátonyterenye

20 M Ft
2 szoba
55 m²
Salgótarján
Eladó panellakás

Salgótarján

20.995 M Ft
1 + 2 szoba
60 m²
Salgótarján
Eladó panellakás

Salgótarján

22.99 M Ft
2 + 1 szoba
58 m²
Salgótarján
Eladó panellakás

Salgótarján

16.9 M Ft
3 szoba
61 m²
Salgótarján
Eladó panellakás

Salgótarján

20.995 M Ft
1 + 2 szoba
60 m²
Salgótarján
Eladó panellakás

Salgótarján

25 M Ft
2 szoba
57 m²
Salgótarján
Eladó panellakás

Salgótarján

12.9 M Ft
2 szoba
53 m²

Falusi CSOK ingatlanok

Balatonszemes, Ady Endre u
Eladó téglalakás

Balatonszemes

78.9 M Ft
2 szoba
46 m²
Szabadbattyán
Eladó családi ház

Szabadbattyán

62 M Ft
5 szoba
210 m²
Egerbakta
Eladó családi ház

Egerbakta

43.9 M Ft
5 + 1 szoba
160 m²
Lovasberény
Eladó sorház

Lovasberény

78 M Ft
4 + 1 szoba
124 m²
Pilisszentkereszt
Eladó családi ház

Pilisszentkereszt

90 M Ft
3 szoba
100 m²
Verseg
Eladó családi ház

Verseg

69.9 M Ft
4 szoba
0 m²
Balatonszemes, Ady E. utca 6
Eladó téglalakás

Balatonszemes

108.9 M Ft
2 + 1 szoba
63 m²
Kaposgyarmat
Eladó családi ház

Kaposgyarmat

695 M Ft
6 szoba
610 m²