Avico Greentop

Eladó panellakás
Salgótarján, 5. emelet

+ 11 kép 1/14
21 900 000 Ft21.9 M Ft 391 071 Ft/m2
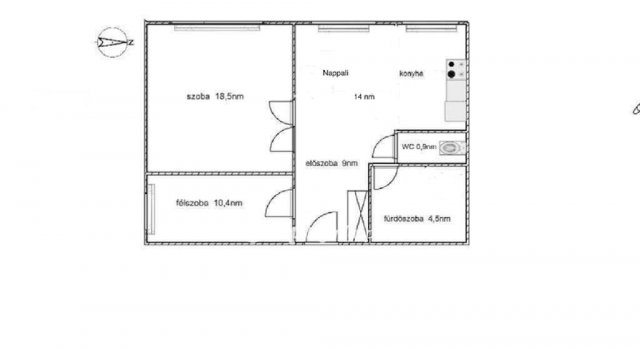
3 szoba
56 m²
5. emelet
építés éve:1980

Részletes adatok

Fűtés: Távfűtés
Emelet: 5. emelet
Komfort: Összkomfortos
Extrák: Lift
Energetikai besorolás: Nem adta meg a hirdető

Az OTP Bank lakáshitel ajánlataFizetett hirdetés

+36 70 946
Czikora Nándor
Salgótarján Otpip

Érdekel az OTP Bank kedvezményes lakáshitel ajánlata? *

* A kérdésre „Igen” válasz bejelölése esetén, az „Üzenet küldése” gombra kattintva kijelentem, hogy az OTP Bank Nyrt. Adatkezelési tájékoztatójának tartalmát megismertem és tudomásul vettem.

Eladó panellakás leírása

Eladó felújított, amerikai konyhás lakás Salgótarján kedvelt városrészében, Besztercén!

Salgótarján Beszterce városrészében eladó, egy 56 nm-es, 2+1 félszobás, teljeskörűen felújított, távfűtéses, 5. emeleti lakás.

Az ingatlan átgondolt átalakításon esett át: az egyik félszobát a konyhával összenyitották, így egy tágas, világos amerikai konyhás nappali került kialakításra, amely ideális családi és baráti összejövetelekhez is.

A lakás műszaki és esztétikai felújítása során:
cserélve lettek a nyílászárók
teljeskörűen megújult a fürdőszoba
modern, felújított konyha került beépítésre

Az ingatlan jó elosztású, világos, az 5. emeleti elhelyezkedésének köszönhetően kellemes panorámával és csendesebb lakókörnyezettel rendelkezik.

A Beszterce lakótelep rendkívül jó ellátottságú: a közelben megtalálható bolt, iskola, óvoda, gyógyszertár, buszmegálló és egyéb szolgáltatások ? minden, ami a kényelmes mindennapokhoz szükséges.

Ideális választás lehet fiatal pároknak, kisgyermekes családoknak vagy akár befektetésnek is.

Érdemes megtekinteni ? egy igényesen felújított, azonnal költözhető otthon várja új tulajdonosát!

Referencia szám: M323924

Hirdetés feltöltve: 2026. 04. 08. Utoljára módosítva: 2026. 05. 23.

3 szobás panellakások ára Salgótarjánban

Ebből az összehasonlításból megtudhatod, hogyan viszonyul a lakás ára a környékbeli panellakások átlagos árához. Ez nem azt jelenti, hogy ennyivel olcsóbb vagy drágább, mint amennyit a lakás ér, hanem hogy ennyivel tér el a környékbeli átlagtól.

Ennek a m² ára
Salgótarján m² ár
391 e Ft
364 e Ft -7%
Ennek az ára
Salgótarján átlagár
21.9 M Ft m Ft
22.9 m Ft 5%

Az ingatlan elhelyezkedése

Cím: Salgótarján, 5. emelet

Eladó panellakások a környékről

Salgótarján
Eladó panellakás

Salgótarján

13.6 M Ft
2 + 1 szoba
58 m²
Salgótarján
Eladó panellakás

Salgótarján

20.995 M Ft
1 + 2 szoba
60 m²
Salgótarján
Eladó panellakás

Salgótarján

17.7 M Ft
1 + 1 szoba
51 m²
Salgótarján
Eladó panellakás

Salgótarján

11.5 M Ft
2 szoba
49 m²
Salgótarján
Eladó panellakás

Salgótarján

8.7 M Ft
2 szoba
53 m²
Salgótarján
Eladó panellakás

Salgótarján

12.9 M Ft
2 szoba
53 m²
Salgótarján
Eladó panellakás

Salgótarján

20.9 M Ft
3 szoba
68 m²
Salgótarján
Eladó panellakás

Salgótarján

19.9 M Ft
3 szoba
64 m²
Salgótarján
Eladó panellakás

Salgótarján

20.995 M Ft
1 + 2 szoba
60 m²
Salgótarján
Eladó panellakás

Salgótarján

13.9 M Ft
1 + 2 szoba
56 m²
Salgótarján
Eladó panellakás

Salgótarján

22.99 M Ft
2 + 1 szoba
58 m²
Salgótarján
Eladó panellakás

Salgótarján

20.9 M Ft
3 szoba
68 m²
Salgótarján
Eladó panellakás

Salgótarján

20.995 M Ft
1 + 2 szoba
60 m²
Salgótarján
Eladó panellakás

Salgótarján

16.9 M Ft
3 szoba
61 m²
Salgótarján
Eladó panellakás

Salgótarján

15.6 M Ft
2 szoba
46 m²
Salgótarján
Eladó panellakás

Salgótarján

13.8 M Ft
2 szoba
55 m²
Salgótarján
Eladó panellakás

Salgótarján

13.9 M Ft
1 + 2 szoba
56 m²
Salgótarján
Eladó panellakás

Salgótarján

15.6 M Ft
2 szoba
46 m²
Salgótarján
Eladó panellakás

Salgótarján

12.9 M Ft
2 szoba
53 m²
Salgótarján
Eladó panellakás

Salgótarján

20.995 M Ft
1 + 2 szoba
60 m²
Bátonyterenye
Eladó panellakás

Bátonyterenye

15.9 M Ft
2 szoba
53 m²
Salgótarján
Eladó panellakás

Salgótarján

19.5 M Ft
2 szoba
53 m²
Salgótarján
Eladó panellakás

Salgótarján

13.6 M Ft
2 + 1 szoba
58 m²
Salgótarján
Eladó panellakás

Salgótarján

20.995 M Ft
1 + 2 szoba
60 m²

Falusi CSOK ingatlanok

Rábaszentmihály
Eladó családi ház

Rábaszentmihály

53 M Ft
3 szoba
156 m²
Balinka, Petőfi S. utca 27
Eladó családi ház

Balinka

12.65 M Ft
1 + 2 szoba
79 m²
Szabadbattyán
Eladó családi ház

Szabadbattyán

79.6 M Ft
4 szoba
101 m²
Bag
Eladó családi ház

Bag

16.9 M Ft
6 szoba
160 m²
Ceglédbercel
Eladó családi ház

Ceglédbercel

39.9 M Ft
3 szoba
55 m²
Mélykút
Eladó téglalakás

Mélykút

23 M Ft
1 + 1 szoba
55 m²
Balatonszemes
Eladó téglalakás

Balatonszemes

119.9 M Ft
2 szoba
0 m²
Győrság
Eladó családi ház

Győrság

89.9 M Ft
4 szoba
92 m²