NapForrás 20 - Buda

Eladó panellakás
Nyíregyháza, 9. emelet

+ 10 kép 1/13
38 000 000 Ft38 M Ft 745 098 Ft/m2
2 szoba
51 m2
9. emelet
építés éve:1980

Részletes adatok

Fűtés: Távfűtés
Extrák: Lift
Energetikai besorolás: Nem adta meg a hirdető

Az OTP Bank lakáshitel ajánlataFizetett hirdetés

+36 70 615
Kiss Gyula
OTPIP Nyíregyháza Hunyadi u.

Érdekel az OTP Bank kedvezményes lakáshitel ajánlata? *

* A kérdésre „Igen” válasz bejelölése esetén, az „Üzenet küldése” gombra kattintva kijelentem, hogy az OTP Bank Nyrt. Adatkezelési tájékoztatójának tartalmát megismertem és tudomásul vettem.

Eladó panellakás leírása

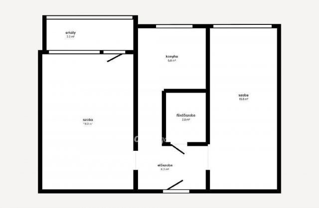
Eladásra kínálok egy 51 nm-es, 9. emeleti panel lakást Nyíregyháza csendes környékén.
A lakás két szobával, konyhával, fürdőszobával, előszobával és erkéllyel rendelkezik. A rezsi alacsony, így kiváló választás lehet fiatal pároknak, egyedülállóknak vagy befektetőknek.
A lakás jó állapotú, mindössze egy tisztasági festést igényel.
A ház zárt lépcsőházas, teher- és személylifttel is felszerelt, rendezett, biztonságos lakóközösséggel és barátságos szomszédokkal.
A környék csendes és nyugodt, kiváló infrastruktúrával: bolt, óvoda, játszótér és focipálya is található a közelben, minden elérhető távolságban.
OTP Banki hátterünknek köszönhetően finanszírozási igényekben (pl. Otthon Start Hitelprogram, Babaváró, Falusi CSOK, CSOK Plusz, Lakáshitel, Személyi kölcsön stb.), illetve biztosítások tekintetében is díjmentesen, soron kívüli ügyintézéssel segítem ügyfeleim! Referenciaszám: M313598

Hirdetés feltöltve: 2025. 11. 07.

2 szobás panellakások ára Nyíregyházán

Ebből az összehasonlításból megtudhatod, hogyan viszonyul a lakás ára a környékbeli panellakások átlagos árához. Ez nem azt jelenti, hogy ennyivel olcsóbb vagy drágább, mint amennyit a lakás ér, hanem hogy ennyivel tér el a környékbeli átlagtól.

Ennek a m² ára
Nyíregyháza m² ár
745 e Ft
774 e Ft 4%
Ennek az ára
Nyíregyháza átlagár
38 M Ft m Ft
39.7 m Ft 4%

Az ingatlan elhelyezkedése

Cím: Nyíregyháza, 9. emelet

Eladó panellakások a környékről

Eladó panellakás
Eladó panellakás

Nyíregyháza

45 M Ft
2 + 1 szoba
62 m2
Eladó panellakás
Eladó panellakás

Nyírbátor

33 M Ft
3 szoba
70 m2
Eladó panellakás
Eladó panellakás

Nyíregyháza

45 M Ft
2 + 1 szoba
62 m2
Eladó panellakás
Eladó panellakás

Nyíregyháza

34.5 M Ft
2 szoba
54 m2
Eladó panellakás
Eladó panellakás

Nyíregyháza

49 M Ft
2 + 1 szoba
63 m2
Eladó panellakás
Eladó panellakás

Nyíregyháza

45 M Ft
2 + 1 szoba
62 m2
Eladó panellakás
Eladó panellakás

Nyíregyháza

49 M Ft
2 + 1 szoba
63 m2
Eladó panellakás
Eladó panellakás

Nyíregyháza

49 M Ft
2 + 1 szoba
63 m2
Eladó panellakás
Eladó panellakás

Nyíregyháza

49 M Ft
2 + 1 szoba
63 m2
Eladó panellakás
Eladó panellakás

Nyíregyháza

45 M Ft
2 + 1 szoba
62 m2
Eladó panellakás
Eladó panellakás

Nyíregyháza

43 M Ft
2 + 1 szoba
55 m2
Eladó panellakás
Eladó panellakás

Nyíregyháza

43 M Ft
2 + 1 szoba
55 m2
Eladó panellakás
Eladó panellakás

Nyíregyháza, Belváros, Őz köz 63

29.5 M Ft
2 szoba
52 m2
Eladó panellakás
Eladó panellakás

Nyíregyháza

41.9 M Ft
2 + 1 szoba
54 m2
Eladó panellakás
Eladó panellakás

Nyíregyháza

49 M Ft
2 + 1 szoba
63 m2
Eladó panellakás
Eladó panellakás

Nyíregyháza

37.9 M Ft
3 szoba
66 m2
Eladó panellakás
Eladó panellakás

Nyíregyháza

49 M Ft
2 + 1 szoba
63 m2
Eladó panellakás
Eladó panellakás

Nyíregyháza

42 M Ft
2 szoba
51 m2
Eladó panellakás
Eladó panellakás

Nyírbátor

33 M Ft
3 szoba
70 m2
Eladó panellakás
Eladó panellakás

Nyíregyháza

49 M Ft
2 + 1 szoba
63 m2
Eladó panellakás
Eladó panellakás

Nyíregyháza

49 M Ft
2 + 1 szoba
63 m2
Eladó panellakás
Eladó panellakás

Nyíregyháza

45 M Ft
2 + 1 szoba
62 m2
Eladó panellakás
Eladó panellakás

Nyíregyháza

45 M Ft
2 + 1 szoba
62 m2
Eladó panellakás
Eladó panellakás

Nyíregyháza

49 M Ft
2 + 1 szoba
63 m2

Falusi CSOK ingatlanok

Eladó családi ház
Eladó családi ház

Ságvár

46.9 M Ft
2 szoba
70 m2
Eladó családi ház
Eladó családi ház

Tab

46.9 M Ft
4 szoba
173 m2
Eladó ikerház
Eladó ikerház

Seregélyes

94.9 M Ft
4 szoba
107 m2
Eladó családi ház
Eladó családi ház

Lázi

18.9 M Ft
2 szoba
74 m2
Eladó családi ház
Eladó családi ház

Kóny, Kazinczy utca

78.9 M Ft
3 szoba
170 m2
Eladó családi ház
Eladó családi ház

Cece

23.5 M Ft
2 szoba
56 m2
Eladó családi ház
Eladó családi ház

Sárosd

21.9 M Ft
3 szoba
86 m2
Eladó családi ház
Eladó családi ház

Tiszadada

25.5 M Ft
2 szoba
80 m2