Astora Art House

Eladó panellakás
Nyírbátor, 3. emelet

+ 11 kép 1/14
37 800 000 Ft37.8 M Ft 675 000 Ft/m2
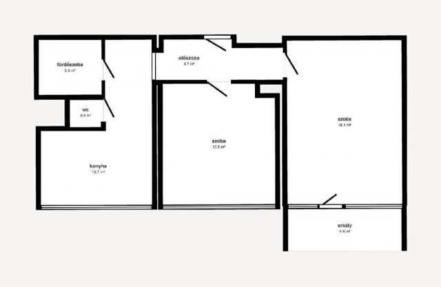
2 szoba
56 m²
3. emelet
építés éve:1982

Részletes adatok

Állapot: Felújított
Fűtés: Gázkonvektor
Emelet: 3. emelet
Energetikai besorolás: Nem adta meg a hirdető

Az OTP Bank lakáshitel ajánlataFizetett hirdetés

+36 70 615
Kiss Gyula
OTPIP Nyíregyháza Hunyadi u.

Érdekel az OTP Bank kedvezményes lakáshitel ajánlata? *

* A kérdésre „Igen” válasz bejelölése esetén, az „Üzenet küldése” gombra kattintva kijelentem, hogy az OTP Bank Nyrt. Adatkezelési tájékoztatójának tartalmát megismertem és tudomásul vettem.

Eladó panellakás leírása

Eladásra kínálunk egy 56 m2 alapterületű, 3. emeleti, teljes körűen felújított lakást.
Amely kiváló választás lehet akár saját otthonnak, akár befektetésnek!
Az ingatlan 2 tágas, világos szobával rendelkezik, amelyek közül az egyik igény szerint nappalivá alakítható, így a lakás elrendezése rugalmasan igazítható az új tulajdonos igényeihez.

A lakás teljes felújításon esett át, melynek során modern, időtálló anyagok kerültek beépítésre. A helyiségekben stílusos színek, valamint strapabíró, minőségi burkolatok kaptak helyet. A szobák 10 mm vastag, kopásálló laminált padlóval burkoltak, míg a többi helyiségben tartós, esztétikus csempe található.

A konyha újonnan készített, modern konyhabútorral felszerelt, valamint gázcsatlakozással rendelkezik, amely praktikus és gazdaságos megoldást biztosít a mindennapi használathoz.

A lakás konvektoros fűtéssel működik, továbbá saját mérőórával rendelkezik, így a rezsiköltségek könnyen kontrollálhatók.

A komfortérzetet tovább növeli, hogy:

Minden nyílászáró új, hőszigetelt fa nyílászáró.
A fürdőszoba teljes körűen felújított és modernizált, a WC külön helyiségben található, ami praktikus a mindennapok során.
Az ingatlanhoz tartozik egy 4,8m2-es saját erkély, amely utcai kilátást biztosít, és kellemes helyszínt nyújt egy reggeli kávé vagy esti pihenés számára.
Igényesen felújított, azonnal költözhető lakás !

Az ingatlan városközponti elhelyezkedésének köszönhetően kiváló infrastruktúrával rendelkezik, így a mindennapi ügyintézés és bevásárlás rendkívül kényelmesen megoldható.
A lakás közelében 500 méteren belül megtalálható több élelmiszerüzlet, gyógyszertár és orvosi rendelő, ami nagyban megkönnyíti a mindennapi életet.

A városban elérhető egy nagyobb bevásárlóközpont is, a Tesco, Spár, Penny amely széles választékot kínál mindennapi bevásárláshoz.

A környék családbarát, hiszen az iskola mindössze körülbelül 200 méterre található, így gyalogosan is gyorsan és biztonságosan megközelíthető. Emellett benzinkút is elérhető 500 méteren belül.

A városközpontnak köszönhetően ruházati üzletek, különböző szolgáltatások és vásárlási lehetőségek szintén könnyen elérhetők, így szinte minden szükséges szolgáltatás helyben rendelkezésre áll.

Ennek az elhelyezkedésnek köszönhetően az ingatlan praktikus választás családok, párok vagy akár befektetők számára is, akik fontosnak tartják a kényelmes, jól megközelíthető városi életet.
Keress bizalommal ,akár megtekintés, akár kérdés esetén!
OTP Banki hátterünknek köszönhetően finanszírozási igényekben (pl. Otthon Start Hitelprogram, Babaváró, Falusi CSOK, CSOK Plusz, Lakáshitel, Személyi kölcsön stb.), illetve biztosítások tekintetében is díjmentesen, soron kívüli ügyintézéssel segítem ügyfeleim! Referenciaszám: M324807
Virtuális séta:

Hirdetés feltöltve: 2026. 04. 17. Utoljára módosítva: 2026. 05. 10.

Az ingatlan elhelyezkedése

Cím: Nyírbátor, 3. emelet

Eladó ingatlanok a környékről

Nyírbátor
Eladó családi ház

Nyírbátor

51.9 M Ft
3 szoba
106 m²
Nyírbátor
Eladó panellakás

Nyírbátor

37.8 M Ft
2 szoba
56 m²
Nyírbátor
Eladó panellakás

Nyírbátor

37.8 M Ft
2 szoba
56 m²
Nyíregyháza
Eladó panellakás

Nyíregyháza

43.5 M Ft
1 + 2 szoba
54 m²
Nyíregyháza
Eladó panellakás

Nyíregyháza

49 M Ft
2 + 1 szoba
63 m²
Kótaj
Eladó családi ház

Kótaj

42.9 M Ft
3 szoba
72 m²
Bököny
Eladó családi ház

Bököny

17.3 M Ft
2 + 1 szoba
72 m²
Nyíregyháza
Eladó panellakás

Nyíregyháza

43.2 M Ft
2 szoba
51 m²
Nyíregyháza
Eladó panellakás

Nyíregyháza

49 M Ft
2 + 1 szoba
63 m²
Mátészalka
Eladó panellakás

Mátészalka

31 M Ft
1 + 1 szoba
52 m²
Nyírbátor
Eladó panellakás

Nyírbátor

37.8 M Ft
2 szoba
56 m²
Nagykálló
Eladó családi ház

Nagykálló

16.9 M Ft
1 szoba
60 m²
Nyírbátor
Eladó panellakás

Nyírbátor

37.8 M Ft
2 szoba
56 m²
Nyíregyháza
Eladó téglalakás

Nyíregyháza

55.2 M Ft
1 + 2 szoba
52 m²
Nyíregyháza, Belváros, Toldi utca
Eladó panellakás

Nyíregyháza

35.9 M Ft
2 szoba
51 m²
Nyíregyháza
Eladó panellakás

Nyíregyháza

37.9 M Ft
3 szoba
66 m²
Szorgalmatos
Eladó családi ház

Szorgalmatos

29 M Ft
3 + 2 szoba
113 m²
Nyíregyháza
Eladó panellakás

Nyíregyháza

49 M Ft
2 + 1 szoba
63 m²
Nyíregyháza
Eladó családi ház

Nyíregyháza

89.9 M Ft
5 szoba
200 m²
Nyíregyháza
Eladó panellakás

Nyíregyháza

34.8 M Ft
1 + 1 szoba
42 m²
Nyíregyháza
Eladó panellakás

Nyíregyháza

37.4 M Ft
1 + 1 szoba
43 m²
Nyíregyháza, Belváros, Ív utca
Eladó sorház

Nyíregyháza

88.9 M Ft
5 szoba
137 m²
Nyíregyháza, Belváros
Eladó üzlethelyiség

Nyíregyháza

96.9 M Ft
3 szoba
216 m²
Nyíregyháza
Eladó telek

Nyíregyháza

89 M Ft
1104 m²
0 m²

Falusi CSOK ingatlanok

Rétság
Eladó téglalakás

Rétság

34.9 M Ft
2 szoba
55 m²
Kondoros
Eladó családi ház

Kondoros

25 M Ft
4 szoba
150 m²
Újkígyós
Eladó családi ház

Újkígyós

29.9 M Ft
4 szoba
145 m²
Pilisszentkereszt
Eladó családi ház

Pilisszentkereszt

90 M Ft
3 szoba
100 m²
Kislippó
Eladó családi ház

Kislippó

17.99 M Ft
3 szoba
100 m²
Vép
Eladó családi ház

Vép

75.9 M Ft
5 szoba
150 m²
Pápateszér
Eladó családi ház

Pápateszér

19.5 M Ft
1 + 1 szoba
76 m²
Hegyeshalom, Margaréta utca 12
Eladó téglalakás

Hegyeshalom

35.92 M Ft
1 szoba
31 m²