Astora Márvány8

Eladó panellakás
Nyírbátor, 3. emelet

+ 11 kép 1/14
37 800 000 Ft37.8 M Ft 675 000 Ft/m2
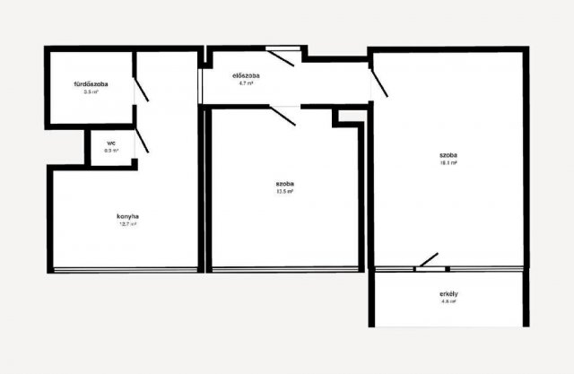
2 szoba
56 m²
3. emelet
építés éve:1982

Részletes adatok

Állapot: Felújított
Fűtés: Gázkonvektor
Emelet: 3. emelet
Komfort: Összkomfortos
Energetikai besorolás: Nem adta meg a hirdető

Az OTP Bank lakáshitel ajánlataFizetett hirdetés

+36 31 771
Huszár Gabriella
OTPIP Nyíregyháza Hunyadi u.

Érdekel az OTP Bank kedvezményes lakáshitel ajánlata? *

* A kérdésre „Igen” válasz bejelölése esetén, az „Üzenet küldése” gombra kattintva kijelentem, hogy az OTP Bank Nyrt. Adatkezelési tájékoztatójának tartalmát megismertem és tudomásul vettem.

Eladó panellakás leírása

Eladásra kínálunk egy 56 m2 alapterületű, 3. emeleti, teljes körűen felújított lakást.
Amely kiváló választás lehet akár saját otthonnak, akár befektetésnek!
Az ingatlan 2 tágas, világos szobával rendelkezik, amelyek közül az egyik igény szerint nappalivá alakítható, így a lakás elrendezése rugalmasan igazítható az új tulajdonos igényeihez.

A lakás teljes felújításon esett át, melynek során modern, időtálló anyagok kerültek beépítésre. A helyiségekben stílusos színek, valamint strapabíró, minőségi burkolatok kaptak helyet. A szobák 10 mm vastag, kopásálló laminált padlóval burkoltak, míg a többi helyiségben tartós, esztétikus csempe található.

A konyha újonnan készített, modern konyhabútorral felszerelt, valamint gázcsatlakozással rendelkezik, amely praktikus és gazdaságos megoldást biztosít a mindennapi használathoz.

A lakás konvektoros fűtéssel működik, továbbá saját mérőórával rendelkezik, így a rezsiköltségek könnyen kontrollálhatók.

A komfortérzetet tovább növeli, hogy:

Minden nyílászáró új, hőszigetelt fa nyílászáró.
A fürdőszoba teljes körűen felújított és modernizált, a WC külön helyiségben található, ami praktikus a mindennapok során.
Az ingatlanhoz tartozik egy 4,8m2-es saját erkély, amely utcai kilátást biztosít, és kellemes helyszínt nyújt egy reggeli kávé vagy esti pihenés számára.
Igényesen felújított, azonnal költözhető lakás !

Az ingatlan városközponti elhelyezkedésének köszönhetően kiváló infrastruktúrával rendelkezik, így a mindennapi ügyintézés és bevásárlás rendkívül kényelmesen megoldható.
A lakás közelében 500 méteren belül megtalálható több élelmiszerüzlet, gyógyszertár és orvosi rendelő, ami nagyban megkönnyíti a mindennapi életet.

A városban elérhető egy nagyobb bevásárlóközpont is, a Tesco, Spár, Penny amely széles választékot kínál mindennapi bevásárláshoz.

A környék családbarát, hiszen az iskola mindössze körülbelül 200 méterre található, így gyalogosan is gyorsan és biztonságosan megközelíthető. Emellett benzinkút is elérhető 500 méteren belül.

A városközpontnak köszönhetően ruházati üzletek, különböző szolgáltatások és vásárlási lehetőségek szintén könnyen elérhetők, így szinte minden szükséges szolgáltatás helyben rendelkezésre áll.

Ennek az elhelyezkedésnek köszönhetően az ingatlan praktikus választás családok, párok vagy akár befektetők számára is, akik fontosnak tartják a kényelmes, jól megközelíthető városi életet.
Keress bizalommal ,akár megtekintés, akár kérdés esetén!
OTP Banki hátterünknek köszönhetően finanszírozási igényekben (pl. Otthon Start Hitelprogram, Babaváró, Falusi CSOK, CSOK Plusz, Lakáshitel, Személyi kölcsön stb.), illetve biztosítások tekintetében is díjmentesen, soron kívüli ügyintézéssel segítem ügyfeleim! Referenciaszám: M324807
Virtuális séta:

Az energetikai tanúsítvány készítése folyamatban van, amint rendelkezésre áll, úgy azzal a hirdetés frissítésre kerül.

Hirdetés feltöltve: 2026. 04. 10. Utoljára módosítva: 2026. 05. 19.

Az ingatlan elhelyezkedése

Cím: Nyírbátor, 3. emelet

Eladó ingatlanok a környékről

Nyírbátor
Eladó panellakás

Nyírbátor

37.8 M Ft
2 szoba
56 m²
Záhony
Eladó panellakás

Záhony

14.9 M Ft
3 szoba
65 m²
Nyíregyháza, Belváros
Eladó téglalakás

Nyíregyháza

36.9 M Ft
2 szoba
60 m²
Nyíregyháza
Eladó panellakás

Nyíregyháza

54.9 M Ft
4 szoba
69 m²
Nyírbátor
Eladó panellakás

Nyírbátor

37.8 M Ft
2 szoba
56 m²
Nyíregyháza
Eladó családi ház

Nyíregyháza

122 M Ft
5 szoba
220 m²
Nyíregyháza
Eladó panellakás

Nyíregyháza

49 M Ft
2 + 1 szoba
63 m²
Nyíregyháza
Eladó panellakás

Nyíregyháza

37.4 M Ft
1 + 1 szoba
43 m²
Nyírbátor
Eladó panellakás

Nyírbátor

37.8 M Ft
2 szoba
56 m²
Nyíregyháza, Belváros, Toldi utca
Eladó panellakás

Nyíregyháza

35.9 M Ft
2 szoba
51 m²
Nyíregyháza
Eladó családi ház

Nyíregyháza

145 M Ft
4 szoba
154 m²
Mátészalka
Eladó panellakás

Mátészalka

31 M Ft
1 + 1 szoba
52 m²
Újkenéz
Eladó családi ház

Újkenéz

13 M Ft
3 szoba
90 m²
Kérsemjén
Eladó családi ház

Kérsemjén

11 M Ft
2 + 2 szoba
97 m²
Nyíregyháza
Eladó panellakás

Nyíregyháza

40.9 M Ft
2 szoba
51 m²
Nyírbátor
Eladó panellakás

Nyírbátor

37.8 M Ft
2 szoba
56 m²
Nyíregyháza
Eladó panellakás

Nyíregyháza

37.4 M Ft
1 + 1 szoba
43 m²
Nyíregyháza
Eladó panellakás

Nyíregyháza

37.4 M Ft
1 + 1 szoba
43 m²
Nyíregyháza
Eladó panellakás

Nyíregyháza

39.9 M Ft
2 szoba
53 m²
Nyíregyháza
Eladó panellakás

Nyíregyháza

37.4 M Ft
1 + 1 szoba
43 m²
Nyíregyháza
Eladó panellakás

Nyíregyháza

56 M Ft
2 + 2 szoba
78 m²
Demecser
Eladó családi ház

Demecser

45 M Ft
3 + 1 szoba
107 m²
Vásárosnamény
Eladó családi ház

Vásárosnamény

10 M Ft
2 + 1 szoba
65 m²
Buj, Petőfi utca
Eladó családi ház

Buj

23.9 M Ft
3 szoba
83 m²

Falusi CSOK ingatlanok

Verseg
Eladó családi ház

Verseg

69.9 M Ft
4 szoba
0 m²
Törtel
Eladó családi ház

Törtel

32 M Ft
2 szoba
67 m²
Zsámbok
Eladó családi ház

Zsámbok

54.85 M Ft
3 szoba
120 m²
Hegyeshalom, Margaréta utca 12
Eladó téglalakás

Hegyeshalom

32.89 M Ft
1 szoba
27 m²
Tihany
Eladó családi ház

Tihany

385 M Ft
5 szoba
200 m²
Előszállás
Eladó családi ház

Előszállás

69.9 M Ft
6 szoba
238 m²
Sződ
Eladó családi ház

Sződ

116 M Ft
5 szoba
136 m²
Ceglédbercel
Eladó családi ház

Ceglédbercel

39.9 M Ft
3 szoba
55 m²