Astora Márvány8

Eladó panellakás
Miskolc, 4. emelet

+ 17 kép 1/20
27 490 000 Ft27.49 M Ft 499 818 Ft/m2
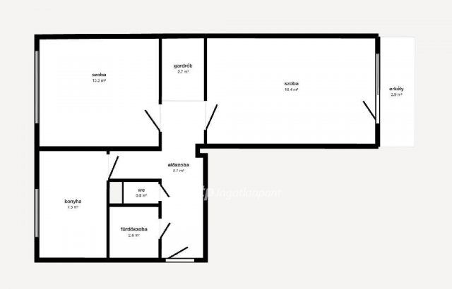
2 szoba
55 m2
4. emelet
építés éve:1980

Részletes adatok

Állapot: Átlagos
Fűtés: Távfűtés
Extrák: Lift
Energetikai besorolás: Nem adta meg a hirdető
Zenga Premier

Friss hirdetések, amiket nem találsz meg más ingatlankereső portálon.

Fedezd fel elsőként a Zenga Premier címkés eladó ingatlanokat!

További részletek a zenga.hu-n

Az OTP Bank lakáshitel ajánlataFizetett hirdetés

+36 70 439
dr. Rohács Andrea
Miskolc Corvin utca 1-3 - OTP Ingatlanpont Iroda

Érdekel az OTP Bank kedvezményes lakáshitel ajánlata? *

* A kérdésre „Igen” válasz bejelölése esetén, az „Üzenet küldése” gombra kattintva kijelentem, hogy az OTP Bank Nyrt. Adatkezelési tájékoztatójának tartalmát megismertem és tudomásul vettem.

Eladó panellakás leírása

Eladó Miskolc Avason a Szentgyörgy utca központi, jó lokációjú részén egy 55 nm-es, 2 különnyíló szobás + gardróbos, teljeskörűen felújított távfűtéses lakás 10 emeletes panel?pület 4. emeletén. A nyílászárók kiváló hőszigetelésű, műanyag ablakok minden helyiségben. Új, több ponton záródó, prémium minőségű biztonsági bejárati ajtó került beszerelésre. A lakás teljeskörű gépészeti felújításon esett át.
A nappaliban egy vadonatúj, garanciális Gree hűtő-fűtő klíma gondoskodik a kellemes hőmérsékletről télen-nyáron.
A lakás kiváló elhelyezkedésű: a közelben boltok, iskola, óvoda, orvosi rendelő, posta és buszmegállók is kényelmes sétatávolságra találhatóak. A parkolás a ház körül ingyenesen megoldott.
Ideális választás fiatal pároknak, egyetemistáknak (a Miskolci Egyetem közelsége miatt) idősebb korosztálynak, befektetőknek, hiszen az ingatlan állapota és felszereltsége miatt azonnal, magas áron bérbe adható. Várom megtisztelő hívását akár hétvégén is!

Hirdetés feltöltve: 2025. 12. 23.

2 szobás panellakások ára Miskolcon

Ebből az összehasonlításból megtudhatod, hogyan viszonyul a lakás ára a környékbeli panellakások átlagos árához. Ez nem azt jelenti, hogy ennyivel olcsóbb vagy drágább, mint amennyit a lakás ér, hanem hogy ennyivel tér el a környékbeli átlagtól.

Ennek a m² ára
Miskolc m² ár
500 e Ft
592 e Ft 16%
Ennek az ára
Miskolc átlagár
27.49 M Ft m Ft
27.6 m Ft 0%

Az ingatlan elhelyezkedése

Cím: Miskolc, 4. emelet

Eladó panellakások a környékről

Eladó panellakás
Eladó panellakás

Miskolc, Avas Dél városrész, Testvérvárosok

21.5 M Ft
1 + 1 szoba
35 m2
Eladó panellakás
Eladó panellakás

Miskolc, Győri kapu

39.8 M Ft
2 szoba
64 m2
Eladó panellakás
Eladó panellakás

Kazincbarcika

42 M Ft
4 szoba
114 m2
Eladó panellakás
Eladó panellakás

Sajószentpéter

14.49 M Ft
1 + 2 szoba
59 m2
Eladó panellakás
Eladó panellakás

Miskolc

25.5 M Ft
2 szoba
51 m2
Eladó panellakás
Eladó panellakás

Miskolc

24.99 M Ft
2 szoba
51 m2
Eladó panellakás
Eladó panellakás

Miskolc

27.5 M Ft
2 szoba
51 m2
Eladó panellakás
Eladó panellakás

Miskolc, Avas Kelet városrész, Dankó Pista utca

31.9 M Ft
3 szoba
73 m2
Eladó panellakás
Eladó panellakás

Miskolc, Avas Dél városrész, Klapka György utca

29.8 M Ft
2 szoba
55 m2
Eladó panellakás
Eladó panellakás

Miskolc

39.8 M Ft
2 szoba
64 m2
Eladó panellakás
Eladó panellakás

Miskolc, Avas Kelet városrész, Dankó Pista utca

31.9 M Ft
3 szoba
73 m2
Eladó panellakás
Eladó panellakás

Miskolc, Vologda, Jókai Mór utca

44.9 M Ft
3 szoba
55 m2
Eladó panellakás
Eladó panellakás

Miskolc

29.8 M Ft
2 szoba
55 m2
Eladó panellakás
Eladó panellakás

Miskolc

28.75 M Ft
2 szoba
51 m2
Eladó panellakás
Eladó panellakás

Ózd

11.99 M Ft
3 szoba
64 m2
Eladó panellakás
Eladó panellakás

Miskolc

25.5 M Ft
2 szoba
51 m2
Eladó panellakás
Eladó panellakás

Miskolc

21.5 M Ft
1 + 1 szoba
35 m2
Eladó panellakás
Eladó panellakás

Kazincbarcika

42 M Ft
4 szoba
114 m2
Eladó panellakás
Eladó panellakás

Miskolc

39.8 M Ft
2 szoba
64 m2
Eladó panellakás
Eladó panellakás

Sátoraljaújhely

26 M Ft
2 szoba
54 m2
Eladó panellakás
Eladó panellakás

Miskolc, Belváros, Szent István utca

25.9 M Ft
2 szoba
51 m2
Eladó panellakás
Eladó panellakás

Miskolc

54.9 M Ft
4 szoba
87 m2
Eladó panellakás
Eladó panellakás

Miskolc

34.99 M Ft
2 + 1 szoba
55 m2
Eladó panellakás
Eladó panellakás

Miskolc

26.5 M Ft
2 szoba
55 m2

Falusi CSOK ingatlanok

Eladó családi ház
Eladó családi ház

Bőny

19.5 M Ft
1 szoba
30 m2
Eladó családi ház
Eladó családi ház

Kondorfa

28.5 M Ft
3 + 1 szoba
65 m2
Eladó családi ház
Eladó családi ház

Letenye

49.9 M Ft
7 szoba
220 m2
Eladó családi ház
Eladó családi ház

Varsány

39.9 M Ft
6 szoba
160 m2
Eladó családi ház
Eladó családi ház

Enese

78.9 M Ft
4 szoba
90 m2
Eladó családi ház
Eladó családi ház

Újlengyel

110 M Ft
4 szoba
121 m2
Eladó családi ház
Eladó családi ház

Tésenfa, Kossuth utca 23/a

5.55 M Ft
1 + 1 szoba
109 m2
Eladó családi ház
Eladó családi ház

Hosszúpereszteg

35 M Ft
4 szoba
145 m2