BAM Living

Eladó panellakás
Miskolc

+ 12 kép 1/15
35 500 000 Ft35.5 M Ft 581 967 Ft/m2
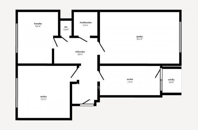
2 + 1 szoba
61 m2
építés éve:1973

Részletes adatok

Állapot: Átlagos
Fűtés: Távfűtés
Extrák: Lift
Energetikai besorolás: Nem adta meg a hirdető

Az OTP Bank lakáshitel ajánlataFizetett hirdetés

+36 30 469
Bányiczki Márk
OTP Ingatlanpont Miskolc Szemere

Érdekel az OTP Bank kedvezményes lakáshitel ajánlata? *

* A kérdésre „Igen” válasz bejelölése esetén, az „Üzenet küldése” gombra kattintva kijelentem, hogy az OTP Bank Nyrt. Adatkezelési tájékoztatójának tartalmát megismertem és tudomásul vettem.

Eladó panellakás leírása

Eladásra kínálunk Miskolcon a belvárostól 5 perc távolságra, a Kőporos utcában egy PANELPROGRAMOS, 61 nm-es, 2+1 félszobás , első emeleti jó állapotú távhős lakást. Az ingatlanban redőnnyel felszerelt műanyag nyílászárók kerültek beszerelésre, HI-SEC bejárati ajtóval egyetemben. Mind a meleg vízről, mind pedig az otthon melegéről távhő gondoskodik, ami egy felújított fürdőszobában még tovább tudja növelni a komfortérzetet. Az ingatlan jó elhelyezkedésének, valamint elosztásának köszönhetően befektetőknek, fiatal pároknak, illetve családosoknak egyaránt ideális választás lehet. Jöjjön és tekintsük meg együtt, ebben az ingatlanban nem fog csalódni. OTP Banki hátterünknek köszönhetően finanszírozási igényekben (pl. Otthon Start Program, Babaváró, Falusi CSOK, CSOK Plusz, Lakáshitel, Személyi kölcsön stb.), illetve biztosítások tekintetében is díjmentesen, soron kívüli ügyintézéssel segítem ügyfeleim! Az adásvételi szerződéshez igény esetén ügyvédet biztosítunk. Referenciaszám: M317297

Hirdetés feltöltve: 2025. 12. 04. Utoljára módosítva: 2026. 01. 13.

3 szobás panellakások ára Miskolcon

Ebből az összehasonlításból megtudhatod, hogyan viszonyul a lakás ára a környékbeli panellakások átlagos árához. Ez nem azt jelenti, hogy ennyivel olcsóbb vagy drágább, mint amennyit a lakás ér, hanem hogy ennyivel tér el a környékbeli átlagtól.

Ennek a m² ára
Miskolc m² ár
582 e Ft
648 e Ft 10%
Ennek az ára
Miskolc átlagár
35.5 M Ft m Ft
39.1 m Ft 9%

Az ingatlan elhelyezkedése

Cím: Miskolc

Eladó panellakások a környékről

Eladó panellakás
Eladó panellakás

Miskolc, Avas Dél városrész, Testvérvárosok

21.5 M Ft
1 + 1 szoba
35 m2
Eladó panellakás
Eladó panellakás

Miskolc, Soltész Nagy Kálmán

68.49 M Ft
4 + 1 szoba
119 m2
Eladó panellakás
Eladó panellakás

Miskolc, Avas Dél városrész, Klapka György utca

29.8 M Ft
2 szoba
55 m2
Eladó panellakás
Eladó panellakás

Miskolc

44.9 M Ft
3 szoba
55 m2
Eladó panellakás
Eladó panellakás

Sátoraljaújhely, Dózsa György utca

26 M Ft
2 szoba
54 m2
Eladó panellakás
Eladó panellakás

Kazincbarcika

46.8 M Ft
4 szoba
114 m2
Eladó panellakás
Eladó panellakás

Miskolc, Vologda, Jókai Mór utca

44.9 M Ft
3 szoba
55 m2
Eladó panellakás
Eladó panellakás

Miskolc

30.99 M Ft
3 szoba
63 m2
Eladó panellakás
Eladó panellakás

Miskolc

32 M Ft
1 + 2 szoba
54 m2
Eladó panellakás
Eladó panellakás

Sátoraljaújhely

26 M Ft
2 szoba
54 m2
Eladó panellakás
Eladó panellakás

Miskolc

32 M Ft
1 + 2 szoba
54 m2
Eladó panellakás
Eladó panellakás

Miskolc

27.5 M Ft
2 szoba
51 m2
Eladó panellakás
Eladó panellakás

Miskolc, Avas Dél városrész, Testvérvárosok

21.5 M Ft
1 + 1 szoba
35 m2
Eladó panellakás
Eladó panellakás

Miskolc

30.99 M Ft
3 szoba
63 m2
Eladó panellakás
Eladó panellakás

Miskolc

29.8 M Ft
2 szoba
55 m2
Eladó panellakás
Eladó panellakás

Miskolc

21.5 M Ft
1 + 1 szoba
35 m2
Eladó panellakás
Eladó panellakás

Miskolc

36.99 M Ft
2 + 1 szoba
55 m2
Eladó panellakás
Eladó panellakás

Kazincbarcika

23.5 M Ft
2 szoba
52 m2
Eladó panellakás
Eladó panellakás

Miskolc

39.8 M Ft
2 szoba
64 m2
Eladó panellakás
Eladó panellakás

Miskolc

24.99 M Ft
2 szoba
51 m2
Eladó panellakás
Eladó panellakás

Sárospatak, Katona József utca

19.8 M Ft
2 szoba
54 m2
Eladó panellakás
Eladó panellakás

Miskolc

29.8 M Ft
2 szoba
55 m2
Eladó panellakás
Eladó panellakás

Miskolc

28.75 M Ft
2 szoba
51 m2
Eladó panellakás
Eladó panellakás

Miskolc, Vologda, Jókai Mór utca

44.9 M Ft
3 szoba
55 m2

Falusi CSOK ingatlanok

Eladó ikerház
Eladó ikerház

Balatonakali

370 M Ft
4 szoba
140 m2
Eladó családi ház
Eladó családi ház

Marcaltő

26 M Ft
3 szoba
103 m2
Eladó családi ház
Eladó családi ház

Helesfa

17.999 M Ft
2 szoba
74 m2
Eladó családi ház
Eladó családi ház

Zengővárkony

28 M Ft
3 szoba
87 m2
Eladó családi ház
Eladó családi ház

Hercegszántó

29.9 M Ft
4 szoba
130 m2
Eladó családi ház
Eladó családi ház

Szabadbattyán

67.5 M Ft
5 szoba
180 m2
Eladó családi ház
Eladó családi ház

Bag

16.9 M Ft
6 szoba
160 m2
Eladó családi ház
Eladó családi ház

Bakonyszentkirály

99.99 M Ft
5 szoba
126 m2