Astora Olive Club House

Eladó panellakás
Miskolc, 4. emelet

+ 10 kép 1/13
22 500 000 Ft22.5 M Ft 642 857 Ft/m2
1 + 1 szoba
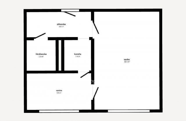
35 m2
4. emelet
építés éve:1970

Részletes adatok

Állapot: Átlagos
Fűtés: Távfűtés
Emelet: 4. emelet
Extrák: Lift
Energetikai besorolás: Nem adta meg a hirdető

Az OTP Bank lakáshitel ajánlataFizetett hirdetés

+36 20 361
Spéth Gábor György
OTP Ingatlanpont Miskolc Szemere

Érdekel az OTP Bank kedvezményes lakáshitel ajánlata? *

* A kérdésre „Igen” válasz bejelölése esetén, az „Üzenet küldése” gombra kattintva kijelentem, hogy az OTP Bank Nyrt. Adatkezelési tájékoztatójának tartalmát megismertem és tudomásul vettem.

Eladó panellakás leírása

Első lakásukat vásárlók, befektetők figyelem!! Eladó Diósgyőrben, a Kuruc utcában, 10 emeletes panel épületben egy 35 nm-es 1+1 fél szobás távhős 4.emeleti lakás. Az ingatlanban a komplett villamoshálózat korszerűsítése megtörtént, a nyílászárók redőnnyel felszerelt műanyag ablakokra lettek cserélve, továbbá egy HI-SEC több ponton záródó biztonsági ajtó került beépítésre. A villamoshálózat felújításáról készült képeket, dokumentációkat, a villamosbiztonsági jegyzőkönyvvel egyetemben igény esetén az érdeklődő rendelkezésére bocsájtjuk. Az ingatlan megfelel a 3%-os Otthon Start Program feltételeinek.
OTP Banki hátterünknek köszönhetően finanszírozási igényekben (pl. Otthon Start Hitelprogram, Babaváró, Falusi CSOK, CSOK Plusz, Lakáshitel, Személyi kölcsön stb.), illetve biztosítások tekintetében is díjmentesen, soron kívüli ügyintézéssel segítem ügyfeleim! Jöjjön és tekintsük meg együtt akár hétvégén is! Hívása során hivatkozzon az M315214-es referenciaszámra.

Hirdetés feltöltve: 2025. 11. 25. Utoljára módosítva: 2026. 02. 01.

2 szobás panellakások ára Miskolcon

Ebből az összehasonlításból megtudhatod, hogyan viszonyul a lakás ára a környékbeli panellakások átlagos árához. Ez nem azt jelenti, hogy ennyivel olcsóbb vagy drágább, mint amennyit a lakás ér, hanem hogy ennyivel tér el a környékbeli átlagtól.

Ennek a m² ára
Miskolc m² ár
643 e Ft
616 e Ft -4%
Ennek az ára
Miskolc átlagár
22.5 M Ft m Ft
27.5 m Ft 18%

Az ingatlan elhelyezkedése

Cím: Miskolc, 4. emelet

Eladó panellakások a környékről

Eladó panellakás
Eladó panellakás

Miskolc, Győri kapu

39.8 M Ft
2 szoba
64 m2
Eladó panellakás
Eladó panellakás

Miskolc

32 M Ft
3 szoba
63 m2
Eladó panellakás
Eladó panellakás

Miskolc, Vologda, Jókai Mór utca

44.9 M Ft
3 szoba
55 m2
Eladó panellakás
Eladó panellakás

Miskolc

54.9 M Ft
4 szoba
87 m2
Eladó panellakás
Eladó panellakás

Miskolc

28.75 M Ft
2 szoba
51 m2
Eladó panellakás
Eladó panellakás

Miskolc

32 M Ft
3 szoba
63 m2
Eladó panellakás
Eladó panellakás

Miskolc

24.99 M Ft
2 szoba
51 m2
Eladó panellakás
Eladó panellakás

Miskolc

39.8 M Ft
2 szoba
64 m2
Eladó panellakás
Eladó panellakás

Miskolc, Avas Dél városrész, Testvérvárosok

21.5 M Ft
1 + 1 szoba
35 m2
Eladó panellakás
Eladó panellakás

Miskolc

33.5 M Ft
1 + 2 szoba
54 m2
Eladó panellakás
Eladó panellakás

Sárospatak, Katona József utca

19.8 M Ft
2 szoba
54 m2
Eladó panellakás
Eladó panellakás

Miskolc, Belváros, Szent István utca

25.9 M Ft
2 szoba
51 m2
Eladó panellakás
Eladó panellakás

Miskolc

29.8 M Ft
2 szoba
55 m2
Eladó panellakás
Eladó panellakás

Miskolc, Avas Kelet városrész, Dankó Pista utca

31.9 M Ft
3 szoba
73 m2
Eladó panellakás
Eladó panellakás

Miskolc

32 M Ft
3 szoba
63 m2
Eladó panellakás
Eladó panellakás

Miskolc

29.8 M Ft
2 szoba
55 m2
Eladó panellakás
Eladó panellakás

Miskolc

28.75 M Ft
2 szoba
51 m2
Eladó panellakás
Eladó panellakás

Miskolc, Avas Dél városrész, Klapka György utca

29.8 M Ft
2 szoba
55 m2
Eladó panellakás
Eladó panellakás

Ózd, Városközpont lakótelep, Nemzetőr utca

9.9 M Ft
1 + 1 szoba
35 m2
Eladó panellakás
Eladó panellakás

Miskolc

29.8 M Ft
2 szoba
55 m2
Eladó panellakás
Eladó panellakás

Miskolc

21.99 M Ft
2 szoba
55 m2
Eladó panellakás
Eladó panellakás

Miskolc

27.5 M Ft
2 szoba
51 m2
Eladó panellakás
Eladó panellakás

Miskolc, Győri kapu

39.8 M Ft
2 szoba
64 m2
Eladó panellakás
Eladó panellakás

Miskolc, Soltész Nagy Kálmán

68.49 M Ft
4 + 1 szoba
119 m2

Falusi CSOK ingatlanok

Eladó családi ház
Eladó családi ház

Kenyeri

39.9 M Ft
3 szoba
94 m2
Eladó családi ház
Eladó családi ház

Balatonkeresztúr, Dózsa György u. 29

145 M Ft
5 szoba
150 m2
Eladó téglalakás
Eladó téglalakás

Balatonszemes

91.5 M Ft
2 szoba
60 m2
Eladó családi ház
Eladó családi ház

Újszilvás

5.9 M Ft
1 szoba
31 m2
Eladó családi ház
Eladó családi ház

Mezőkeresztes

14.9 M Ft
2 + 1 szoba
65 m2
Eladó családi ház
Eladó családi ház

Vének

60 M Ft
3 szoba
76 m2
Eladó családi ház
Eladó családi ház

Segesd

14.3 M Ft
3 szoba
100 m2
Eladó családi ház
Eladó családi ház

Kislőd

53.2 M Ft
3 szoba
86 m2