Astora Olive Club House

Eladó panellakás
Miskolc, 6. emelet

+ 16 kép 1/19
34 900 000 Ft34.9 M Ft 646 296 Ft/m2
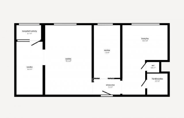
1 + 2 szoba
54 m2
6. emelet
építés éve:1975

Részletes adatok

Fűtés: Távfűtés
Extrák: Lift
Energetikai besorolás: Nem adta meg a hirdető

Az OTP Bank lakáshitel ajánlataFizetett hirdetés

+36 30 676
Csantavéri Krisztián
OTP IP Miskolc Corvin 1-3

Érdekel az OTP Bank kedvezményes lakáshitel ajánlata? *

* A kérdésre „Igen” válasz bejelölése esetén, az „Üzenet küldése” gombra kattintva kijelentem, hogy az OTP Bank Nyrt. Adatkezelési tájékoztatójának tartalmát megismertem és tudomásul vettem.

Eladó panellakás leírása

Kiváló BEFEKTETÉSI lehetőség Miskolcon, a Középszer utcában!

Eladásra kínálunk egy 54 m2-es, jó állapotú LAKÁST Miskolc kedvelt részén, a Középszer utcában. Az ingatlan LOGGIÁVAL és saját PINCÉVEL rendelkezik.

Az ajánlat különlegessége, hogy a jelenlegi tulajdonos hosszú távú BÉRLŐKÉNT maradna az ingatlanban, így a vásárló azonnali, biztos bérleti díjhoz jut már a vásárlás pillanatától. A visszabérlés 1 évre szól, stabil és megbízható feltételekkel.

A környék kiváló infrastruktúrával rendelkezik, könnyen megközelíthető, a lakóközösség rendezett és barátságos, így a lakás hosszú távon is értékálló befektetés.

Ez az ingatlan ideális választás azoknak a BEFEKTETŐKNEK, akik garantált hozamot keresnek biztonságos környezetben.

Referencia szám: M312886

Hirdetés feltöltve: 2025. 10. 09. Utoljára módosítva: 2026. 01. 13.

3 szobás panellakások ára Miskolcon

Ebből az összehasonlításból megtudhatod, hogyan viszonyul a lakás ára a környékbeli panellakások átlagos árához. Ez nem azt jelenti, hogy ennyivel olcsóbb vagy drágább, mint amennyit a lakás ér, hanem hogy ennyivel tér el a környékbeli átlagtól.

Ennek a m² ára
Miskolc m² ár
646 e Ft
655 e Ft 1%
Ennek az ára
Miskolc átlagár
34.9 M Ft m Ft
39.5 m Ft 12%

Az ingatlan elhelyezkedése

Cím: Miskolc, 6. emelet

Eladó panellakások a környékről

Eladó panellakás
Eladó panellakás

Miskolc, Avas Dél városrész, Klapka György utca

29.8 M Ft
2 szoba
55 m2
Eladó panellakás
Eladó panellakás

Miskolc, Avas Kelet városrész, Dankó Pista utca

31.9 M Ft
3 szoba
73 m2
Eladó panellakás
Eladó panellakás

Miskolc, Soltész Nagy Kálmán

68.49 M Ft
4 + 1 szoba
119 m2
Eladó panellakás
Eladó panellakás

Miskolc, Avas Kelet városrész, Dankó Pista utca

31.9 M Ft
3 szoba
73 m2
Eladó panellakás
Eladó panellakás

Miskolc

29.8 M Ft
2 szoba
55 m2
Eladó panellakás
Eladó panellakás

Miskolc

33.5 M Ft
1 + 2 szoba
54 m2
Eladó panellakás
Eladó panellakás

Miskolc

54.9 M Ft
4 szoba
87 m2
Eladó panellakás
Eladó panellakás

Miskolc, Avas Dél városrész, Klapka György utca

29.8 M Ft
2 szoba
55 m2
Eladó panellakás
Eladó panellakás

Miskolc

39.8 M Ft
2 szoba
64 m2
Eladó panellakás
Eladó panellakás

Sajószentpéter

14.49 M Ft
1 + 2 szoba
59 m2
Eladó panellakás
Eladó panellakás

Kazincbarcika

42 M Ft
4 szoba
114 m2
Eladó panellakás
Eladó panellakás

Kazincbarcika

42 M Ft
4 szoba
114 m2
Eladó panellakás
Eladó panellakás

Miskolc

26.5 M Ft
2 szoba
55 m2
Eladó panellakás
Eladó panellakás

Miskolc

39.8 M Ft
2 szoba
64 m2
Eladó panellakás
Eladó panellakás

Miskolc

34.99 M Ft
2 + 1 szoba
55 m2
Eladó panellakás
Eladó panellakás

Kazincbarcika

42 M Ft
4 szoba
114 m2
Eladó panellakás
Eladó panellakás

Sátoraljaújhely

26 M Ft
2 szoba
54 m2
Eladó panellakás
Eladó panellakás

Miskolc

29.8 M Ft
2 szoba
55 m2
Eladó panellakás
Eladó panellakás

Ózd

11.99 M Ft
3 szoba
64 m2
Eladó panellakás
Eladó panellakás

Miskolc

29.8 M Ft
2 szoba
55 m2
Eladó panellakás
Eladó panellakás

Miskolc

26.5 M Ft
2 szoba
55 m2
Eladó panellakás
Eladó panellakás

Miskolc

54.9 M Ft
4 szoba
87 m2
Eladó panellakás
Eladó panellakás

Miskolc

28.75 M Ft
2 szoba
51 m2
Eladó panellakás
Eladó panellakás

Miskolc, Vologda, Jókai Mór utca

44.9 M Ft
3 szoba
55 m2

Falusi CSOK ingatlanok

Eladó családi ház
Eladó családi ház

Ádánd

53.5 M Ft
6 szoba
180 m2
Eladó családi ház
Eladó családi ház

Sárosd

21.9 M Ft
3 szoba
86 m2
Eladó családi ház
Eladó családi ház

Dombrád

8 M Ft
2 szoba
85 m2
Eladó családi ház
Eladó családi ház

Szellő

125 M Ft
4 szoba
124 m2
Eladó családi ház
Eladó családi ház

Tabdi

95 M Ft
45 szoba
1490 m2
Eladó családi ház
Eladó családi ház

Balatonszárszó

178 M Ft
6 szoba
260 m2
Eladó családi ház
Eladó családi ház

Somogyhárságy

188.65 M Ft
5 szoba
250 m2
Eladó családi ház
Eladó családi ház

Véménd

59 M Ft
2 szoba
200 m2