Astora Márvány8

Eladó panellakás
Budapest, XV. kerület, Rákospalota, Vácduka tér, 1. emelet

+ 16 kép 1/19
61 990 000 Ft61.99 M Ft 1 127 091 Ft/m2
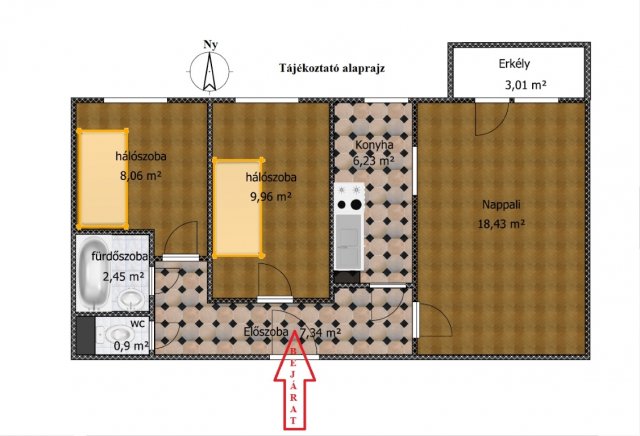
1 + 2 szoba
55 m²
1. emelet
építés éve:1983

Részletes adatok

Állapot: Felújítandó
Fűtés: Házközponti
Emelet: 1. emelet
Közmű: Víz, Gáz, Villany, Csatorna
Energetikai besorolás: Nem adta meg a hirdető

Az OTP Bank lakáshitel ajánlataFizetett hirdetés

+36 30 386
Kódor József Ingatlanközvetítő
OTP Ingatlanpont XV. kerület

Érdekel az OTP Bank kedvezményes lakáshitel ajánlata? *

* A kérdésre „Igen” válasz bejelölése esetén, az „Üzenet küldése” gombra kattintva kijelentem, hogy az OTP Bank Nyrt. Adatkezelési tájékoztatójának tartalmát megismertem és tudomásul vettem.

Eladó panellakás leírása

Kertvárosi környezet és a panelok kényelme ötvözve egy ingatlanban!

Vásároljon saját igényeire szabható lakást Rákospalota-Kertvárosában! Ezen a környéken ritkaságnak számít a hasonló adottságú, eladó ingatlan, NE MARADJON LE RÓLA!

Egy jó állapotú, az elmúlt években folyamatosan karbantartott, felújított házban, mindössze másfél emeletnyi lépcsőzéssel jutunk el ehhez a nappali + 2 hálószobás lakáshoz.
Elrendezését tekintve minden helyiség különnyíló, a 3 szobán kívül még egy ablakos konyha, fürdőszoba és wc szolgálja kényelmét. Valamint egy, a nappaliból nyíló erkély is lehetőséget biztosít az ejtőzésre.

Az ingatlan felújítandó állapotú:
A helyiségek festése és a szobák padlóburkolása után akár költözhető állapotúvá tehető, de hosszútávon cserélendő a víz-, és villanyhálózat valamint a nyílászárók is.

Sétatávolságra lévő tömegközlekedési eszközökkel közvetlenül elérhető Újpest-Központ (170), Bosnyák tér (124,125), Mexikói út (225) valamint a Buapest-Nyugati – Vác közötti vasútvonal állomásai. Az éjszakai órákban is könnyedén közlekedhet a 950-es busszal.
A környéken ingyenes a parkolás.

Gyemekes családoknak is tökéletes választás, mivel óvoda és általános iskola is van a közvetlen közelben.

Az ingatlan megfelel az Otthon_Start_Program (Fix3% Lakáshitel Program) feltételeinek.

Felkeltette érdeklődését az általam kínált ingatlan?
Keressen bizalommal!
Ha épp nem tudom felvenni, ne aggódjon! Visszahívom!

Ha eladó ingatlant keres vegye igénybe ingyenes és kötelezettségmentes szolgáltatásunkat,
melynek keretében megkönnyítjük Önnek új otthona megtalálását.
Az igényfelmérést követően megkezdődik az Önnek leginkább megfelelő ingatlan felkutatása.
Amennyiben jelenlegi ingatlana értékesítésében is segítségére lehetek,
ezen ügyekben is keressen bizalommal!

Az OTP Ingatlanpont, mint egyetlen közvetlen banki hátterű ingatlanközvetítő társaság teljes körű ügyintézéssel áll az eladók és a vevők rendelkezésére! A kínálatunkból választott ingatlan finanszírozásához minősített fogyasztóbarát, piaci és kedvezményes hitel- és lízingkonstrukciókat kínálunk (lakásvásárlási hitel, szabad felhasználású hitel, Otthon Start Program, Babaváró hitel, CSOK Plusz-intézés, Otthonfelújítási Támogatás, egyéb felújítási hitelek).
Az adásvételi szerződés megkötéséhez igény szerint megbízható ügyvédi közreműködést biztosítunk, és segítséget nyújtunk a birtokbaadáshoz kapcsolódó ügyek intézéséhez is.

Amennyiben felkeltette érdeklődését az általam kínált ingatlan, keressen bizalommal!

Hirdetés feltöltve: 2026. 04. 24. Utoljára módosítva: 2026. 05. 10.

3 szobás panellakások ára Budapesten

Ebből az összehasonlításból megtudhatod, hogyan viszonyul a lakás ára a környékbeli panellakások átlagos árához. Ez nem azt jelenti, hogy ennyivel olcsóbb vagy drágább, mint amennyit a lakás ér, hanem hogy ennyivel tér el a környékbeli átlagtól.

Ennek a m² ára
Rákospalota m² ár
XV. kerület m² ár
Budapest m² ár
1127 e Ft
1049 e Ft -7%
1193 e Ft 5%
1229 e Ft 8%
Ennek az ára
Rákospalota átlagár
XV. kerület átlagár
Budapest átlagár
61.99 M Ft m Ft
63.3 m Ft 2%
72.4 m Ft 14%
74.9 m Ft 17%

Az ingatlan elhelyezkedése

Cím: Budapest, XV. kerület, Rákospalota, Vácduka tér, 1. emelet

Eladó ingatlanok a környékről

XV. kerület
Eladó panellakás

Budapest, XV. kerület

79.9 M Ft
3 szoba
71 m²
XIII. kerület
Eladó téglalakás

Budapest, XIII. kerület

139.9 M Ft
3 szoba
65 m²
VI. kerület
Eladó téglalakás

Budapest, VI. kerület

140 M Ft
3 szoba
70 m²
V. kerület, Belváros, Molnár utca
Eladó téglalakás

Budapest, V. kerület

59.9 M Ft
1 szoba
28 m²
XV. kerület
Eladó panellakás

Budapest, XV. kerület

76.9 M Ft
3 + 1 szoba
69 m²
VI. kerület
Eladó téglalakás

Budapest, VI. kerület

172 M Ft
3 + 1 szoba
87 m²
XV. kerület
Eladó panellakás

Budapest, XV. kerület

79.9 M Ft
3 szoba
71 m²
III. kerület, Mocsárosdűlő, III. kerület - HARSÁNYLEJTŐ
Eladó ikerház

Budapest, III. kerület

545 M Ft
5 szoba
263 m²
XV. kerület, Újpalota, Kőrakás park
Eladó panellakás

Budapest, XV. kerület

89.9 M Ft
3 szoba
68 m²
XV. kerület
Eladó panellakás

Budapest, XV. kerület

79.9 M Ft
3 szoba
71 m²
VIII. kerület
Eladó téglalakás

Budapest, VIII. kerület

70 M Ft
4 szoba
111 m²
XV. kerület
Eladó panellakás

Budapest, XV. kerület

72.3 M Ft
3 szoba
64 m²
VI. kerület
Eladó téglalakás

Budapest, VI. kerület

160 M Ft
3 szoba
91 m²
VI. kerület, Külső Terézváros, JÓKAI UTCA 10 3/19
Eladó téglalakás

Budapest, VI. kerület

100 M Ft
2 szoba
50 m²
XV. kerület
Eladó panellakás

Budapest, XV. kerület

79.9 M Ft
3 szoba
71 m²
XV. kerület
Eladó panellakás

Budapest, XV. kerület

79.9 M Ft
3 szoba
71 m²
XIII. kerület
Eladó téglalakás

Budapest, XIII. kerület

110.4 M Ft
3 szoba
69 m²
XV. kerület
Eladó panellakás

Budapest, XV. kerület

79.9 M Ft
3 szoba
71 m²
XXIII. kerület
Eladó családi ház

Budapest, XXIII. kerület

124.9 M Ft
3 szoba
190 m²
III. kerület
Eladó panellakás

Budapest, III. kerület

69.9 M Ft
3 szoba
66 m²
VII. kerület
Eladó téglalakás

Budapest, VII. kerület

143 M Ft
3 szoba
104 m²
II. kerület
Eladó téglalakás

Budapest, II. kerület

72 M Ft
1 szoba
33 m²
VI. kerület
Eladó téglalakás

Budapest, VI. kerület

183 M Ft
3 szoba
85 m²
XV. kerület
Eladó panellakás

Budapest, XV. kerület

72.3 M Ft
3 szoba
64 m²

Falusi CSOK ingatlanok

Cece
Eladó családi ház

Cece

69.8 M Ft
4 szoba
215 m²
Győrság
Eladó családi ház

Győrság

89.9 M Ft
4 szoba
92 m²
Lajoskomárom
Eladó családi ház

Lajoskomárom

22.9 M Ft
2 szoba
66 m²
Fonyód
Eladó téglalakás

Fonyód

175 M Ft
3 szoba
79 m²
Rakamaz
Eladó családi ház

Rakamaz

86.9 M Ft
5 szoba
280 m²
Mesztegnyő
Eladó családi ház

Mesztegnyő

23.8 M Ft
2 szoba
70 m²
Dunaegyháza
Eladó családi ház

Dunaegyháza

29.49 M Ft
3 szoba
70 m²
Tápiógyörgye
Eladó családi ház

Tápiógyörgye

22.5 M Ft
3 + 1 szoba
83 m²