City Pearl

Eladó panellakás
Budapest, XV. kerület, 2. emelet

+ 16 kép 1/19
61 999 000 Ft61.999 M Ft 1 127 255 Ft/m2
1 + 2 szoba
55 m²
2. emelet
építés éve:1983

Részletes adatok

Állapot: Felújítandó
Fűtés: Házközponti
Emelet: 2. emelet
Energetikai besorolás: Nem adta meg a hirdető

Az OTP Bank lakáshitel ajánlataFizetett hirdetés

+36 70 675
Fodor Zoltán
referens

Érdekel az OTP Bank kedvezményes lakáshitel ajánlata? *

* A kérdésre „Igen” válasz bejelölése esetén, az „Üzenet küldése” gombra kattintva kijelentem, hogy az OTP Bank Nyrt. Adatkezelési tájékoztatójának tartalmát megismertem és tudomásul vettem.

Eladó panellakás leírása

Kertvárosi nyugalom, élhető tér - saját ízlésére formálható otthon Rákospalotán!
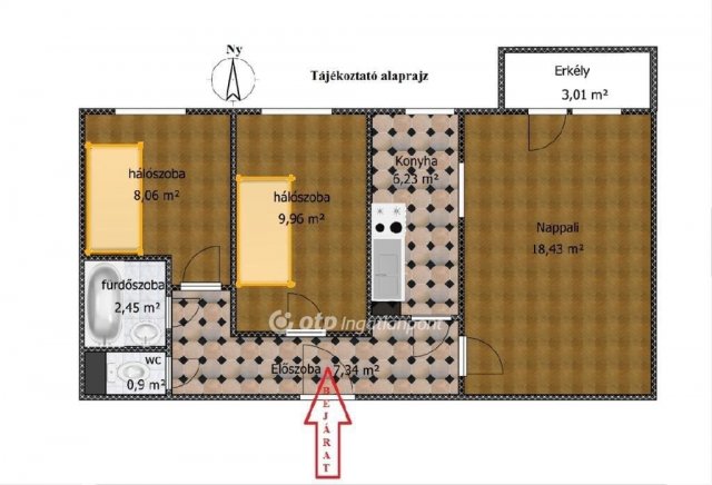
Rákospalota-Kertváros részen kínálunk megvételre egy 55 négyzetméteres, nappali + 2 hálószobás, erkélyes lakást, amely kiváló választás lehet családoknak vagy azoknak, akik szeretnének egy értékálló ingatlant saját elképzelésük szerint kialakítani.
Ezen a környéken ritkaságnak számít a hasonló adottságú, eladó lakás, NE MARADJON LE RÓLA!
Egy folyamatosan karbantartott, jó állapotú társasházban található ez a mindössze másfél emeletnyi lépcsőzéssel elérhető otthon.
- Élhető elrendezés, valódi térérzet:
Az ingatlan egyik előnye a praktikus, különnyíló elrendezés:
- nappali + 2 hálószoba
- világos, ablakos konyha
- külön fürdőszoba
- külön WC
- nappaliból nyíló, 3 m2-es nyugati tájolású erkély

A nyugati fekvésnek köszönhetően a lakás délutánonként napfényes, meleg hangulatú. Az erkély ideális egy kávéra, esti beszélgetésre vagy egy csendes pihenésre.

Lehetőség azoknak, akik értéket látnak benne
Az ingatlan felújítandó állapotú, így új tulajdonosa teljes mértékben saját igényei szerint alakíthatja ki.
Egy tisztasági festéssel és burkolatcserével akár rövid időn belül költözhetővé tehető, hosszabb távon pedig a gépészeti és nyílászáró korszerűsítés tovább növelheti az értékét.
Ez nem kompromisszum - ez lehetőség.

Kiváló közlekedés, élhető környezet
Sétatávolságra több buszjárat is elérhető, melyekkel közvetlenül megközelíthető:
- Újpest-Központ (170)
- Bosnyák tér (124, 125)
- Mexikói út (225)
- valamint a Budapest-Nyugati - Vác vasútvonal állomásai
Az éjszakai közlekedést a 950-es busz biztosítja.
A parkolás a környéken ingyenes.

Családbarát környezet
Óvoda, játszótér és általános iskola a közelben, biztonságos, kertvárosi hangulatú utcák, nyugodt lakókörnyezet - ideális választás gyermekes családok számára is.

Az ingatlan megfelel az Otthon_Start_Program (Fix3% Lakáshitel Program) feltételeinek.

Felkeltette érdeklődését az általam kínált ingatlan?
Keressen bizalommal!

Referencia szám: M322616

Hirdetés feltöltve: 2026. 03. 04. Utoljára módosítva: 2026. 04. 27.

3 szobás panellakások ára Budapesten

Ebből az összehasonlításból megtudhatod, hogyan viszonyul a lakás ára a környékbeli panellakások átlagos árához. Ez nem azt jelenti, hogy ennyivel olcsóbb vagy drágább, mint amennyit a lakás ér, hanem hogy ennyivel tér el a környékbeli átlagtól.

Ennek a m² ára
XV. kerület m² ár
Budapest m² ár
1127 e Ft
1184 e Ft 5%
1230 e Ft 8%
Ennek az ára
XV. kerület átlagár
Budapest átlagár
61.999 M Ft m Ft
73.6 m Ft 16%
75.6 m Ft 18%

Az ingatlan elhelyezkedése

Cím: Budapest, XV. kerület, 2. emelet

Eladó ingatlanok a környékről

XVII. kerület
Eladó panellakás

Budapest, XVII. kerület

63.9 M Ft
1 + 2 szoba
58 m²
XV. kerület, Újpalota, Kőrakás park
Eladó panellakás

Budapest, XV. kerület

89.9 M Ft
3 szoba
68 m²
XV. kerület
Eladó panellakás

Budapest, XV. kerület

76.9 M Ft
4 szoba
69 m²
XIII. kerület, Angyalföld, Hegedűs Gyula utca
Eladó téglalakás

Budapest, XIII. kerület

74.9 M Ft
2 szoba
62 m²
XIV. kerület
Eladó téglalakás

Budapest, XIV. kerület

139 M Ft
4 szoba
63 m²
XV. kerület
Eladó panellakás

Budapest, XV. kerület

78.9 M Ft
3 + 1 szoba
69 m²
XVIII. kerület
Eladó téglalakás

Budapest, XVIII. kerület

89.9 M Ft
3 szoba
68 m²
XV. kerület
Eladó panellakás

Budapest, XV. kerület

78.9 M Ft
3 + 1 szoba
69 m²
XV. kerület
Eladó panellakás

Budapest, XV. kerület

64.9 M Ft
3 szoba
61 m²
XV. kerület
Eladó panellakás

Budapest, XV. kerület

79.9 M Ft
3 szoba
71 m²
VIII. kerület
Eladó téglalakás

Budapest, VIII. kerület

65.99 M Ft
2 szoba
63 m²
XV. kerület
Eladó panellakás

Budapest, XV. kerület

79.9 M Ft
3 szoba
71 m²
XX. kerület
Eladó téglalakás

Budapest, XX. kerület

80 M Ft
2 szoba
107 m²
X. kerület
Eladó téglalakás

Budapest, X. kerület

42.9 M Ft
1 szoba
36 m²
XX. kerület
Eladó családi ház

Budapest, XX. kerület

84.9 M Ft
3 szoba
50 m²
XX. kerület
Eladó családi ház

Budapest, XX. kerület

84.9 M Ft
3 szoba
50 m²
XV. kerület
Eladó panellakás

Budapest, XV. kerület

79.9 M Ft
3 szoba
71 m²
XXI. kerület
Eladó panellakás

Budapest, XXI. kerület

52.9 M Ft
1 + 1 szoba
46 m²
XV. kerület
Eladó panellakás

Budapest, XV. kerület

78.9 M Ft
3 + 1 szoba
69 m²
XV. kerület, Pestújhely, Neptun utca
Eladó panellakás

Budapest, XV. kerület

53.8 M Ft
2 szoba
35 m²
XV. kerület
Eladó panellakás

Budapest, XV. kerület

79.9 M Ft
3 szoba
71 m²
XV. kerület
Eladó panellakás

Budapest, XV. kerület

79.9 M Ft
3 szoba
71 m²
VII. kerület
Eladó téglalakás

Budapest, VII. kerület

79.9 M Ft
2 szoba
57 m²
XV. kerület, Újpalota, Nyírpalota út
Eladó panellakás

Budapest, XV. kerület

69.9 M Ft
3 szoba
71 m²

Falusi CSOK ingatlanok

Törtel
Eladó családi ház

Törtel

55 M Ft
3 + 1 szoba
120 m²
Nagykarácsony
Eladó családi ház

Nagykarácsony

34.9 M Ft
3 szoba
112 m²
Hegyeshalom, Margaréta utca 12
Eladó téglalakás

Hegyeshalom

35.92 M Ft
1 szoba
31 m²
Bogács
Eladó családi ház

Bogács

45 M Ft
4 szoba
134 m²
Mikebuda
Eladó családi ház

Mikebuda

45.9 M Ft
7 szoba
120 m²
Balatonkenese
Eladó családi ház

Balatonkenese

165.7 M Ft
2 + 4 szoba
179 m²
Újlengyel
Eladó családi ház

Újlengyel

110 M Ft
4 szoba
121 m²
Öreglak
Eladó családi ház

Öreglak

110 M Ft
8 szoba
205 m²