Astora Olive Club House

Eladó panellakás
Budapest, XV. kerület, 9. emelet

+ 10 kép 1/13
74 990 000 Ft74.99 M Ft 961 410 Ft/m2
2 + 2 szoba
78 m2
9. emelet
építés éve:1980

Részletes adatok

Fűtés: Távfűtés
Extrák: Lift
Energetikai besorolás: Nem adta meg a hirdető

Az OTP Bank lakáshitel ajánlataFizetett hirdetés

+36 70 270
Broll Gyula
referens

Érdekel az OTP Bank kedvezményes lakáshitel ajánlata? *

* A kérdésre „Igen” válasz bejelölése esetén, az „Üzenet küldése” gombra kattintva kijelentem, hogy az OTP Bank Nyrt. Adatkezelési tájékoztatójának tartalmát megismertem és tudomásul vettem.

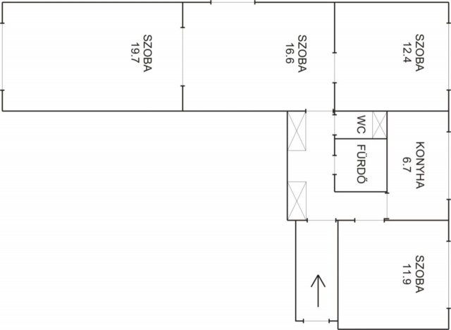
Eladó panellakás leírása

ÚJPALOTA – PÁSKOMLIGET UTCA – TÁGAS, 4 SZOBÁS OTTHON ELADÓ!
Ha egy igazán világos, nagy terekkel rendelkező családi lakást keresel, ami azonnal költözhető, akkor ez most telitalálat!

78 m² | 4 SZOBA | 9. EMELET | PANORÁMA | FRISSEN FESTETT
Modern elosztás, tágas szobák, nagy ablakos konyha, körbenapozott lakás – ritkaság Újpalotán!

Főbb előnyök:
• Nagyon jó elosztás – akár 3 külön nyíló háló is kialakítható
• Műanyag nyílászárók, redőny + szúnyogháló
• 3 éves Fisher klíma
• Zárt, saját folyosórész – extra tároló hely biciklinek/babakocsinak
• Rendezett ház, folyamatos felújítások
• Közös költség: 23.000 Ft
• Tehermentes, azonnal költözhető! ️

Környék:
Piac, CBA, posta, gyógyszertár, cukrászda, Pólus Center, Ázsia Center – minden pár perc alatt elérhető.
Óvoda, iskola, bölcsi a közelben, rengeteg zöld, parkok és játszóterek. ‍‍‍

Közlekedés:
7-es buszcsalád, 69-es villamos, expresszek – fél órán belül bent vagy a Belvárosban!
Parkolás ingyenes a ház előtt.

Ha szeretnél egy tágas, napfényes és jól fenntartható otthont egy szuper közlekedésű részen, akkor ez a lakás nagyon erős ajánlat! ...TOVÁBBI, TÖBBEZRES INGATLAN KÍNÁLAT: www.gdn-ingatlan.hu - GDN azonosító: 390252

Hirdetés feltöltve: 2025. 12. 05.

4 szobás panellakások ára Budapesten

Ebből az összehasonlításból megtudhatod, hogyan viszonyul a lakás ára a környékbeli panellakások átlagos árához. Ez nem azt jelenti, hogy ennyivel olcsóbb vagy drágább, mint amennyit a lakás ér, hanem hogy ennyivel tér el a környékbeli átlagtól.

Ennek a m² ára
XV. kerület m² ár
Budapest m² ár
961 e Ft
1115 e Ft 14%
1126 e Ft 15%
Ennek az ára
XV. kerület átlagár
Budapest átlagár
74.99 M Ft m Ft
76.9 m Ft 3%
82.7 m Ft 9%

Az ingatlan elhelyezkedése

Cím: Budapest, XV. kerület, 9. emelet

Eladó ingatlanok a környékről

Eladó panellakás
Eladó panellakás

XV. kerület, Újpalota, Nyírpalota út

69.9 M Ft
3 szoba
71 m2
Eladó panellakás
Eladó panellakás

XV. kerület

78.9 M Ft
3 + 1 szoba
69 m2
Eladó panellakás
Eladó panellakás

XV. kerület

66.99 M Ft
3 szoba
61 m2
Eladó panellakás
Eladó panellakás

XV. kerület

68 M Ft
2 szoba
52 m2
Eladó családi ház
Eladó családi ház

XV. kerület

179 M Ft
3 szoba
157 m2
Eladó téglalakás
Eladó téglalakás

XI. kerület, Gellérthegy, Zsázsa utca

205 M Ft
2 + 2 szoba
86 m2
Eladó panellakás
Eladó panellakás

XV. kerület

62.99 M Ft
1 + 2 szoba
59 m2
Eladó panellakás
Eladó panellakás

XV. kerület, Újpalota

79 M Ft
4 szoba
69 m2
Eladó üzlethelyiség
Eladó üzlethelyiség

XIX. kerület

89.9 M Ft
1 szoba
169 m2
Eladó téglalakás
Eladó téglalakás

IX. kerület

39.9 M Ft
1 + 1 szoba
44 m2
Eladó panellakás
Eladó panellakás

XV. kerület

79 M Ft
4 szoba
69 m2
Eladó panellakás
Eladó panellakás

IV. kerület, Újpest, Berda József utca

52.5 M Ft
1 + 1 szoba
35 m2
Eladó téglalakás
Eladó téglalakás

XI. kerület, Madárhegy, Kányakapu

99.9 M Ft
2 szoba
50 m2
Eladó téglalakás
Eladó téglalakás

III. kerület

109.8 M Ft
3 szoba
59 m2
Eladó panellakás
Eladó panellakás

XI. kerület

83.5 M Ft
2 szoba
50 m2
Eladó panellakás
Eladó panellakás

XV. kerület, Újpalota

78.9 M Ft
4 szoba
69 m2
Eladó panellakás
Eladó panellakás

XV. kerület

70.9 M Ft
3 + 1 szoba
71 m2
Eladó téglalakás
Eladó téglalakás

XI. kerület

134.314 M Ft
4 szoba
92 m2
Eladó téglalakás
Eladó téglalakás

IV. kerület, Újpest, Tófalva utca

95 M Ft
2 szoba
55 m2
Eladó téglalakás
Eladó téglalakás

VIII. kerület, Palotanegyed, Bródy Sándor utca

144 M Ft
3 + 1 szoba
101 m2
Eladó panellakás
Eladó panellakás

XV. kerület

78.9 M Ft
3 + 1 szoba
69 m2
Eladó panellakás
Eladó panellakás

XV. kerület

68 M Ft
2 szoba
52 m2
Eladó panellakás
Eladó panellakás

XV. kerület

78.9 M Ft
3 + 1 szoba
69 m2
Eladó panellakás
Eladó panellakás

XV. kerület

79 M Ft
4 szoba
69 m2

Falusi CSOK ingatlanok

Eladó családi ház
Eladó családi ház

Vásárosdombó

14.99 M Ft
2 szoba
69 m2
Eladó családi ház
Eladó családi ház

Kaposgyarmat

695 M Ft
6 szoba
610 m2
Eladó családi ház
Eladó családi ház

Szigetcsép

110 M Ft
3 szoba
137 m2
Eladó családi ház
Eladó családi ház

Sellye

43 M Ft
5 szoba
150 m2
Eladó családi ház
Eladó családi ház

Magyarszék

48.5 M Ft
3 + 1 szoba
86 m2
Eladó családi ház
Eladó családi ház

Törtel

18 M Ft
6 szoba
188 m2
Eladó téglalakás
Eladó téglalakás

Vasvár

40.52 M Ft
2 szoba
59 m2
Eladó családi ház
Eladó családi ház

Lesencetomaj

67.9 M Ft
3 szoba
90 m2