BAM Living

Eladó panellakás
Budapest, XIX. kerület, 6. emelet

+ 6 kép 1/9
66 900 000 Ft66.9 M Ft 1 262 264 Ft/m2
1 + 2 szoba
53 m²
6. emelet
építés éve:1980

Részletes adatok

Állapot: Felújított
Fűtés: Távfűtés
Emelet: 6. emelet
Extrák: Lift
Energetikai besorolás: Nem adta meg a hirdető

Az OTP Bank lakáshitel ajánlataFizetett hirdetés

+36 30 720
Nyári Katalin
referens

Érdekel az OTP Bank kedvezményes lakáshitel ajánlata? *

* A kérdésre „Igen” válasz bejelölése esetén, az „Üzenet küldése” gombra kattintva kijelentem, hogy az OTP Bank Nyrt. Adatkezelési tájékoztatójának tartalmát megismertem és tudomásul vettem.

Eladó panellakás leírása

Első lakás a XIX. kerületben – ideális választás az Otthon Start Programhoz

Megvételre kínálok a XIX. kerületben, a Zrínyi utcában egy 53 m²-es, 2 + 1 félszobás, tehermentes panellakást. Az ingatlan azonnal költözhető állapotban van, így kiváló lehetőség első lakást keresőknek vagy fiatal pároknak.

A lakás egy 10 emeletes, liftes, rendezett társasház 6. emeletén található. A környék csendes, parkos, mégis jól megközelíthető, így ideális választás azok számára, akik nyugodt, de városi környezetben szeretnének élni.

Elrendezés – jól alakítható terek
A 2 + 1 félszobás kialakítás rugalmasan alkalmazkodik az élethelyzethez:

a nappali tágas közösségi térként funkcionál,
a félszoba kényelmes hálószobának ideális,
a harmadik szoba használható dolgozószobának, gyerekszobának vagy gardróbnak.

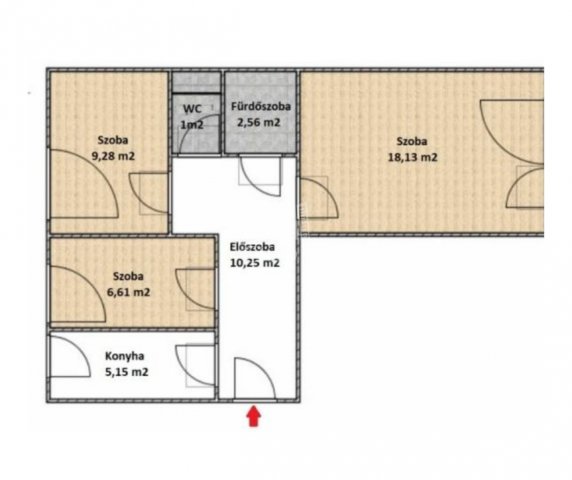
Helyiségek:

előszoba (5,8 m²)
konyha
közlekedő (4,1 m²)
külön fürdőszoba és WC
hálószoba (9,3 m²)
nappali (18,3 m²)

Műszaki állapot
Az ingatlan az elmúlt években több felújításon esett át:

2022-ben műanyag, több rétegű üvegezésű nyílászárók kerültek beépítésre,
szintén 2022-ben megtörtént a hidegburkolatok cseréje a folyosón, konyhában, fürdőben és WC-ben,
új radiátorok biztosítják az egyenletes hőleadást,
a nappaliban hűtő-fűtő klíma található,
2025 novemberében tisztasági festés történt.

A lakás azonnali felújítás nélkül birtokba vehető.

Költségek és finanszírozás
A közös költség 20.500 Ft/hó, amely tartalmazza a takarítást, a felújítási alapot és a lift felújításának törlesztését is.
Az ingatlan tehermentes, banki hitellel is megvásárolható.

Környék és ellátottság
A közelben minden fontos szolgáltatás elérhető: bevásárlási lehetőségek, gyógyszertár, orvosi rendelő, oktatási intézmények, valamint sportolási és kikapcsolódási lehetőségek.

Közlekedés

3 perc sétára az 50-es villamos, amely kapcsolatot biztosít a Határ úti M3-as metróhoz,
3 perc sétára több buszjárat (93, 93A, 136),
a belváros, Deák Ferenc tér körülbelül 36 perc alatt elérhető,
a parkolás a környéken díjmentes.

Sport és kikapcsolódás
A közelben új konditerem található, valamint az utca végén reformer pilates stúdió is elérhető.

Ez a lakás kiváló választás mindazok számára, akik egy jól elrendezett, azonnal költözhető otthont keresnek jó közlekedéssel és teljes infrastruktúrával rendelkező környezetben. ...TOVÁBBI, TÖBBEZRES INGATLAN KÍNÁLAT: www.gdn-ingatlan.hu - GDN azonosító: 394595

Hirdetés feltöltve: 2026. 04. 10. Utoljára módosítva: 2026. 05. 10.

3 szobás panellakások ára Budapesten

Ebből az összehasonlításból megtudhatod, hogyan viszonyul a lakás ára a környékbeli panellakások átlagos árához. Ez nem azt jelenti, hogy ennyivel olcsóbb vagy drágább, mint amennyit a lakás ér, hanem hogy ennyivel tér el a környékbeli átlagtól.

Ennek a m² ára
XIX. kerület m² ár
Budapest m² ár
1262 e Ft
1197 e Ft -5%
1229 e Ft -3%
Ennek az ára
XIX. kerület átlagár
Budapest átlagár
66.9 M Ft m Ft
66.6 m Ft 0%
74.9 m Ft 11%

Az ingatlan elhelyezkedése

Cím: Budapest, XIX. kerület, 6. emelet

Eladó ingatlanok a környékről

IV. kerület
Eladó panellakás

Budapest, IV. kerület

79.9 M Ft
2 + 1 szoba
74 m²
XI. kerület, Spanyolrét, Virágkertész utca 1/A-2A
Eladó téglalakás

Budapest, XI. kerület

140.66 M Ft
3 szoba
76 m²
XIX. kerület
Eladó panellakás

Budapest, XIX. kerület

73.4 M Ft
1 + 2 szoba
53 m²
XVI. kerület
Eladó téglalakás

Budapest, XVI. kerület

83.9 M Ft
2 + 1 szoba
68 m²
XV. kerület, Újpalota, Bethlen Gábor utca
Eladó téglalakás

Budapest, XV. kerület

47.59 M Ft
1 szoba
32 m²
II. kerület
Eladó üzlethelyiség

Budapest, II. kerület

810 M Ft
933 m²
XIX. kerület, Kispest, Fő utca
Eladó panellakás

Budapest, XIX. kerület

73.4 M Ft
1 + 2 szoba
53 m²
XIX. kerület
Eladó panellakás

Budapest, XIX. kerület

59.99 M Ft
3 szoba
52 m²
VI. kerület
Eladó ipari ingatlan

Budapest, VI. kerület

141.6 M Ft
90 m²
XIX. kerület
Eladó panellakás

Budapest, XIX. kerület

73.4 M Ft
1 + 2 szoba
53 m²
XIX. kerület
Eladó panellakás

Budapest, XIX. kerület

65 M Ft
1 + 2 szoba
59 m²
IV. kerület
Eladó iroda

Budapest, IV. kerület

345 M Ft
406 m²
VII. kerület, Külső Erzsébetváros, Szövetség utca
Eladó téglalakás

Budapest, VII. kerület

34.9 M Ft
1 szoba
24 m²
XIV. kerület
Eladó panellakás

Budapest, XIV. kerület

68.7 M Ft
2 szoba
50 m²
XXII. kerület
Eladó családi ház

Budapest, XXII. kerület

157.9 M Ft
5 szoba
130 m²
XIX. kerület
Eladó panellakás

Budapest, XIX. kerület

65 M Ft
1 + 2 szoba
59 m²
XIII. kerület, Újlipótváros, Gogol utca
Eladó téglalakás

Budapest, XIII. kerület

99.99 M Ft
4 szoba
85 m²
XIX. kerület
Eladó panellakás

Budapest, XIX. kerület

65 M Ft
1 + 2 szoba
59 m²
VIII. kerület
Eladó téglalakás

Budapest, VIII. kerület

89 M Ft
3 szoba
77 m²
XI. kerület, Spanyolrét, Virágkertész utca 1/A-2A
Eladó téglalakás

Budapest, XI. kerület

147.18 M Ft
3 szoba
79 m²
XIX. kerület
Eladó panellakás

Budapest, XIX. kerület

73.4 M Ft
1 + 2 szoba
53 m²
VII. kerület
Eladó téglalakás

Budapest, VII. kerület

48 M Ft
1 szoba
30 m²
XIX. kerület
Eladó panellakás

Budapest, XIX. kerület

59.99 M Ft
3 szoba
52 m²
XIX. kerület
Eladó panellakás

Budapest, XIX. kerület

59.99 M Ft
3 szoba
52 m²

Falusi CSOK ingatlanok

Újkígyós
Eladó családi ház

Újkígyós

29.9 M Ft
4 szoba
145 m²
Seregélyes
Eladó családi ház

Seregélyes

71.4 M Ft
3 szoba
120 m²
Hegyeshalom, Margaréta utca 12
Eladó téglalakás

Hegyeshalom

50.09 M Ft
2 szoba
43 m²
Törtel
Eladó családi ház

Törtel

16 M Ft
3 szoba
87 m²
Csokonyavisonta
Eladó családi ház

Csokonyavisonta

22.9 M Ft
3 szoba
90 m²
Zsámbok
Eladó családi ház

Zsámbok

30 M Ft
2 szoba
58 m²
Felsőlajos
Eladó családi ház

Felsőlajos

100 M Ft
4 szoba
140 m²
Nemesnádudvar
Eladó családi ház

Nemesnádudvar

29.9 M Ft
3 szoba
145 m²