Metrodom

Eladó panellakás
Budapest, XIII. kerület, Újlipótváros, 10. emelet

+ 3 kép 1/6
89 900 000 Ft89.9 M Ft 1 322 059 Ft/m2
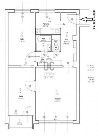
3 szoba
68 m²
10. emelet
építés éve:1980

Részletes adatok

Állapot: Átlagos
Fűtés: Távfűtés
Emelet: 10. emelet
Extrák: Lift
Energetikai besorolás: Nem adta meg a hirdető

Az OTP Bank lakáshitel ajánlataFizetett hirdetés

+36 70 465
Jó Judit
referens

Érdekel az OTP Bank kedvezményes lakáshitel ajánlata? *

* A kérdésre „Igen” válasz bejelölése esetén, az „Üzenet küldése” gombra kattintva kijelentem, hogy az OTP Bank Nyrt. Adatkezelési tájékoztatójának tartalmát megismertem és tudomásul vettem.

Eladó panellakás leírása

XIII., Pannónia utcában eladó egy panorámás 68 nm-es, 3 szobás lakás, panelprogramos házban.
Az ablakok cseréje megtörtént, így egy esztétikai felújítást követően szerethető otthon válhat belőle!
A közlekedés kiváló, boltok, óvoda, egészségügyi intézmények sétatávolságra.

Hirdetés feltöltve: 2026. 02. 16. Utoljára módosítva: 2026. 02. 17.

3 szobás panellakások ára Budapesten

Ebből az összehasonlításból megtudhatod, hogyan viszonyul a lakás ára a környékbeli panellakások átlagos árához. Ez nem azt jelenti, hogy ennyivel olcsóbb vagy drágább, mint amennyit a lakás ér, hanem hogy ennyivel tér el a környékbeli átlagtól.

Ennek a m² ára
Újlipótváros m² ár
XIII. kerület m² ár
Budapest m² ár
1322 e Ft
215 e Ft -514%
1370 e Ft 4%
1217 e Ft -9%
Ennek az ára
Újlipótváros átlagár
XIII. kerület átlagár
Budapest átlagár
89.9 M Ft m Ft
13.2 m Ft -579%
88.6 m Ft -1%
76.6 m Ft -17%

Az ingatlan elhelyezkedése

Cím: Budapest, XIII. kerület, Újlipótváros, 10. emelet

Eladó ingatlanok a környékről

III. kerület, Óbuda, Szomolnok utca
Eladó téglalakás

Budapest, III. kerület

89.9 M Ft
2 + 2 szoba
96 m²
XIII. kerület
Eladó panellakás

Budapest, XIII. kerület

69.4 M Ft
2 szoba
44 m²
XIII. kerület
Eladó panellakás

Budapest, XIII. kerület

72.9 M Ft
2 szoba
59 m²
XIII. kerület, Vizafogó
Eladó panellakás

Budapest, XIII. kerület

89.5 M Ft
3 szoba
68 m²
V. kerület
Eladó téglalakás

Budapest, V. kerület

159.9 M Ft
3 szoba
81 m²
VIII. kerület, Palotanegyed, Rákóczi út
Eladó téglalakás

Budapest, VIII. kerület

185 M Ft
5 szoba
121 m²
XI. kerület, Gellérthegy, Gyula utca
Eladó téglalakás

Budapest, XI. kerület

130 M Ft
2 szoba
56 m²
XIII. kerület, Angyalföld, Fiastyúk utca
Eladó téglalakás

Budapest, XIII. kerület

39.9 M Ft
1 + 1 szoba
34 m²
V. kerület
Eladó téglalakás

Budapest, V. kerület

110 M Ft
1 szoba
44 m²
XIII. kerület
Eladó téglalakás

Budapest, XIII. kerület

98 M Ft
3 szoba
96 m²
XIII. kerület, Vizafogó
Eladó panellakás

Budapest, XIII. kerület

89.5 M Ft
3 szoba
68 m²
XIII. kerület, Vizafogó
Eladó panellakás

Budapest, XIII. kerület

111 M Ft
2 + 1 szoba
0 m²
XVII. kerület
Eladó téglalakás

Budapest, XVII. kerület

98.5 M Ft
4 szoba
83 m²
VI. kerület, Külső Terézváros, Szív utca
Eladó téglalakás

Budapest, VI. kerület

124.9 M Ft
3 szoba
94 m²
VI. kerület, Belső Terézváros, Jókai utca
Eladó téglalakás

Budapest, VI. kerület

87.6 M Ft
3 szoba
75 m²
XIII. kerület
Eladó panellakás

Budapest, XIII. kerület

89.5 M Ft
3 szoba
68 m²
XXII. kerület, Budafok, Baross utca
Eladó családi ház

Budapest, XXII. kerület

222 M Ft
6 + 1 szoba
200 m²
XIII. kerület, Újlipótváros
Eladó panellakás

Budapest, XIII. kerület

89.5 M Ft
3 szoba
68 m²
I. kerület, Krisztinaváros, Széna tér
Eladó téglalakás

Budapest, I. kerület

189 M Ft
4 szoba
90 m²
V. kerület
Eladó téglalakás

Budapest, V. kerület

179 M Ft
6 szoba
110 m²
VI. kerület, Külső Terézváros, Szófia utca
Eladó téglalakás

Budapest, VI. kerület

112.9 M Ft
4 szoba
103 m²
XIV. kerület, Kiszugló, Kövér Lajos utca
Eladó téglalakás

Budapest, XIV. kerület

168 M Ft
3 + 1 szoba
84 m²
XIII. kerület, Vizafogó
Eladó panellakás

Budapest, XIII. kerület

104.7 M Ft
3 szoba
69 m²
XIII. kerület, Újlipótváros
Eladó panellakás

Budapest, XIII. kerület

89.9 M Ft
3 szoba
68 m²

Falusi CSOK ingatlanok

Nagybánhegyes
Eladó családi ház

Nagybánhegyes

21.9 M Ft
4 szoba
150 m²
Somogygeszti
Eladó családi ház

Somogygeszti

10.9 M Ft
2 szoba
115 m²
Jászkarajenő
Eladó családi ház

Jászkarajenő

4.99 M Ft
3 + 1 szoba
84 m²
Somogygeszti
Eladó családi ház

Somogygeszti

38.6 M Ft
3 + 1 szoba
98 m²
Balatonhenye
Eladó családi ház

Balatonhenye

120 M Ft
4 szoba
130 m²
Nyáregyháza
Eladó családi ház

Nyáregyháza

68.9 M Ft
4 szoba
142 m²
Kunadacs
Eladó családi ház

Kunadacs

80 M Ft
4 szoba
148 m²
Balatonfenyves
Eladó téglalakás

Balatonfenyves

20.8 M Ft
2 szoba
69 m²