Oasis Residence

Eladó panellakás
Budapest, III. kerület, 9. emelet

+ 9 kép 1/12
77 500 000 Ft77.5 M Ft 1 139 706 Ft/m2
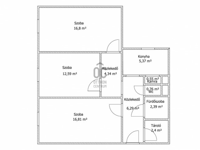
3 szoba
68 m²
9. emelet
építés éve:1978

Részletes adatok

Fűtés: Távfűtés
Emelet: 9. emelet
Közmű: Gáz, Villany, Csatorna
Energetikai besorolás: Nem adta meg a hirdető

Az OTP Bank lakáshitel ajánlataFizetett hirdetés

+36 70 465
Ilcsik Lóránt
referens

Érdekel az OTP Bank kedvezményes lakáshitel ajánlata? *

* A kérdésre „Igen” válasz bejelölése esetén, az „Üzenet küldése” gombra kattintva kijelentem, hogy az OTP Bank Nyrt. Adatkezelési tájékoztatójának tartalmát megismertem és tudomásul vettem.

Eladó panellakás leírása

Eladásra kínálunk egy jó állapotú, felújított, 3 szobás panel lakást, Óbuda központi részén.
A fürdő és a wc tavaly lett felújítva, az elektromos hálózat, a nyílászárók, a parketta és a konyha pedig korábban.
Az ingatlan a 3%-os hitel feltételeinek megfelel!

A lakás főbb előnyei és tulajdonságai:
- 3 külön nyíló, egész szoba
- Keleti fekvés
- Klíma van (nappali)
- 9. emelet, liftes, nem zárószinti
- Biztonsági bejárati ajtó
- Gardrób / tároló, ahova a mosgép elhelyezhető
- Kamra / spájz
- Akár 30 napon belül költözhető (kifizetéstől függően)
- Vízórás
- Költségek: közös 17 ezer, távhő szintén 17 ezer

Ha kérdeése van, vagy időpontot egyeztetne megtekintésre, hívjon bizalommal!

Hirdetés feltöltve: 2026. 04. 01. Utoljára módosítva: 2026. 05. 12.

3 szobás panellakások ára Budapesten

Ebből az összehasonlításból megtudhatod, hogyan viszonyul a lakás ára a környékbeli panellakások átlagos árához. Ez nem azt jelenti, hogy ennyivel olcsóbb vagy drágább, mint amennyit a lakás ér, hanem hogy ennyivel tér el a környékbeli átlagtól.

Ennek a m² ára
III. kerület m² ár
Budapest m² ár
1140 e Ft
1251 e Ft 9%
1229 e Ft 7%
Ennek az ára
III. kerület átlagár
Budapest átlagár
77.5 M Ft m Ft
77.5 m Ft 0%
74.9 m Ft -3%

Az ingatlan elhelyezkedése

Cím: Budapest, III. kerület, 9. emelet

Eladó ingatlanok a környékről

VIII. kerület
Eladó téglalakás

Budapest, VIII. kerület

21.95 M Ft
1 szoba
25 m²
III. kerület
Eladó panellakás

Budapest, III. kerület

64.9 M Ft
2 szoba
51 m²
III. kerület, Csillaghegy
Eladó panellakás

Budapest, III. kerület

94.5 M Ft
3 szoba
73 m²
III. kerület
Eladó panellakás

Budapest, III. kerület

75 M Ft
3 szoba
61 m²
XIII. kerület, Angyalföld, Reitter Ferenc utca
Eladó téglalakás

Budapest, XIII. kerület

116 M Ft
3 szoba
63 m²
III. kerület
Eladó panellakás

Budapest, III. kerület

85 M Ft
1 + 2 szoba
51 m²
III. kerület
Eladó panellakás

Budapest, III. kerület

149.99 M Ft
6 szoba
114 m²
VI. kerület
Eladó téglalakás

Budapest, VI. kerület

79.9 M Ft
2 szoba
48 m²
XVIII. kerület, Havannatelep, Havanna utca
Eladó panellakás

Budapest, XVIII. kerület

80 M Ft
3 szoba
72 m²
VI. kerület, Belső Terézváros, Zichy Jenő utca
Eladó téglalakás

Budapest, VI. kerület

319 M Ft
3 szoba
114 m²
XV. kerület
Eladó panellakás

Budapest, XV. kerület

59.9 M Ft
1 + 2 szoba
55 m²
III. kerület
Eladó panellakás

Budapest, III. kerület

73.9 M Ft
1 + 2 szoba
57 m²
III. kerület
Eladó panellakás

Budapest, III. kerület

40 M Ft
1 szoba
31 m²
II. kerület
Eladó téglalakás

Budapest, II. kerület

72 M Ft
1 szoba
33 m²
V. kerület
Eladó téglalakás

Budapest, V. kerület

119 M Ft
3 szoba
55 m²
II. kerület
Eladó téglalakás

Budapest, II. kerület

269 M Ft
3 szoba
102 m²
XIV. kerület
Eladó téglalakás

Budapest, XIV. kerület

98 M Ft
2 szoba
66 m²
VI. kerület
Eladó téglalakás

Budapest, VI. kerület

79.9 M Ft
2 szoba
48 m²
III. kerület
Eladó panellakás

Budapest, III. kerület

73.9 M Ft
1 + 2 szoba
57 m²
VIII. kerület
Eladó téglalakás

Budapest, VIII. kerület

53 M Ft
2 szoba
38 m²
III. kerület, Óbuda, Miklós utca
Eladó panellakás

Budapest, III. kerület

84.9 M Ft
3 szoba
66 m²
III. kerület, Óbuda, Vörösvári út
Eladó panellakás

Budapest, III. kerület

67.9 M Ft
3 szoba
66 m²
III. kerület
Eladó panellakás

Budapest, III. kerület

85 M Ft
1 + 2 szoba
51 m²
III. kerület
Eladó panellakás

Budapest, III. kerület

59.5 M Ft
1 + 2 szoba
57 m²

Falusi CSOK ingatlanok

Márianosztra
Eladó családi ház

Márianosztra

38 M Ft
4 szoba
75 m²
Zsámbok
Eladó családi ház

Zsámbok

30 M Ft
2 szoba
58 m²
Jobbágyi
Eladó családi ház

Jobbágyi

399 M Ft
7 szoba
200 m²
Porva
Eladó családi ház

Porva

74.6 M Ft
3 szoba
115 m²
Ceglédbercel
Eladó családi ház

Ceglédbercel

89 M Ft
4 szoba
135 m²
Újkígyós
Eladó családi ház

Újkígyós

29.9 M Ft
4 szoba
145 m²
Bakonyszentkirály
Eladó családi ház

Bakonyszentkirály

99.99 M Ft
5 szoba
126 m²
Érpatak
Eladó családi ház

Érpatak

35 M Ft
4 szoba
160 m²