Avico Greentop

Eladó panellakás
Budapest, III. kerület, 4. emelet

+ 3 kép 1/6
66 800 000 Ft66.8 M Ft 1 171 930 Ft/m2
1 + 2 szoba
57 m²
4. emelet
építés éve:1978

Részletes adatok

Állapot: Átlagos
Fűtés: Távfűtés
Emelet: 4. emelet
Extrák: Lift
Energetikai besorolás: Nem adta meg a hirdető

Az OTP Bank lakáshitel ajánlataFizetett hirdetés

+36 70 786
Pröbsztl Gábor Zoltán
referens

Érdekel az OTP Bank kedvezményes lakáshitel ajánlata? *

* A kérdésre „Igen” válasz bejelölése esetén, az „Üzenet küldése” gombra kattintva kijelentem, hogy az OTP Bank Nyrt. Adatkezelési tájékoztatójának tartalmát megismertem és tudomásul vettem.

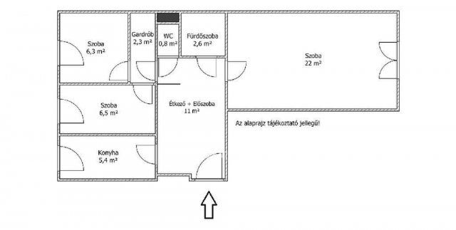
Eladó panellakás leírása

Eladó 57 négyzetméteres jó állapotú negyedik emeleti panellakás a Gyűrű utcában. Kiváló elosztású egy plusz két félszobás nagyon praktikus gardróbbal! Az épület panelprogramban részt vett, homlokzata rendezett. A műanyag ablakok redőnyösek és lakó szobánként egy nyitható ablak rovarhálós. A fűtést és a meleg vizet távhőn kapja a lakás, a radiátorok egyedi mérővel vannak ellátva. A háznak jelentős megtakarítása van így a fejlesztéseket folyamatosan tervezik, a közös költség emelkedése a közeljövőben nem várható. A közelben oktatási intézmények, üzletek és bevásárlóközpont is van, a tömegközlekedés kiváló a környéken. Parkolni a ház előtt kialakított parkolóban lehet közterületen ingyenesen. Ezt a remek elosztású lakást pároknak vagy családosoknak ajánlom elsősorban. Az ingatlan tehermentes, szinte azonnal költözhető! Ha érdekesnek találta jöjjön el és tekintse meg élőben is! Időpont egyeztetéshez hívjon bizalommal!

Teljes körű ügyintézéssel állunk az eladók és a vevők rendelkezésére! A kínálatunkból választott ingatlan finanszírozásához minősített fogyasztóbarát, piaci és kedvezményes hitel- és lízingkonstrukciókat kínálunk (lakásvásárlási hitel, szabad felhasználású hitel, babaváró hitel, CSOK Plusz intézés, Otthonfelújítási Támogatás, egyéb felújítási hitelek). Az adásvételi szerződés megkötéséhez igény szerint megbízható ügyvédi közreműködést biztosítunk, és segítséget nyújtunk az adásvételhez kapcsolódó egyéb ügyek intézéséhez.

Kérdéseire az esti órákban és hétvégén is szívesen válaszolok! Ha az új ingatlana megvásárlásához a jelenlegi ingatlanát el kell adnia, abban is szívesen segítünk.

Hirdetés feltöltve: 2026. 03. 17. Utoljára módosítva: 2026. 03. 18.

3 szobás panellakások ára Budapesten

Ebből az összehasonlításból megtudhatod, hogyan viszonyul a lakás ára a környékbeli panellakások átlagos árához. Ez nem azt jelenti, hogy ennyivel olcsóbb vagy drágább, mint amennyit a lakás ér, hanem hogy ennyivel tér el a környékbeli átlagtól.

Ennek a m² ára
III. kerület m² ár
Budapest m² ár
1172 e Ft
1300 e Ft 10%
1219 e Ft 4%
Ennek az ára
III. kerület átlagár
Budapest átlagár
66.8 M Ft m Ft
81.1 m Ft 18%
76.1 m Ft 12%

Az ingatlan elhelyezkedése

Cím: Budapest, III. kerület, 4. emelet

Eladó ingatlanok a környékről

III. kerület
Eladó panellakás

Budapest, III. kerület

110 M Ft
3 szoba
73 m²
III. kerület, Óbuda
Eladó panellakás

Budapest, III. kerület

75.5 M Ft
2 szoba
48 m²
III. kerület, Óbuda, Miklós utca
Eladó panellakás

Budapest, III. kerület

84.9 M Ft
3 szoba
66 m²
XI. kerület
Eladó téglalakás

Budapest, XI. kerület

120.9 M Ft
2 szoba
59 m²
III. kerület
Eladó panellakás

Budapest, III. kerület

110 M Ft
3 szoba
73 m²
III. kerület
Eladó téglalakás

Budapest, III. kerület

77.9 M Ft
2 szoba
58 m²
XVIII. kerület, Gloriett-telep
Eladó téglalakás

Budapest, XVIII. kerület

77.9 M Ft
2 + 1 szoba
70 m²
VI. kerület
Eladó téglalakás

Budapest, VI. kerület

97 M Ft
3 szoba
69 m²
III. kerület
Eladó panellakás

Budapest, III. kerület

78.5 M Ft
3 szoba
66 m²
III. kerület
Eladó panellakás

Budapest, III. kerület

66.8 M Ft
1 + 2 szoba
57 m²
XVI. kerület, Rákosszentmihály
Eladó ikerház

Budapest, XVI. kerület

150 M Ft
7 szoba
150 m²
XX. kerület
Eladó téglalakás

Budapest, XX. kerület

51.5 M Ft
1 szoba
43 m²
III. kerület
Eladó panellakás

Budapest, III. kerület

74 M Ft
3 szoba
66 m²
III. kerület
Eladó panellakás

Budapest, III. kerület

110 M Ft
3 szoba
73 m²
XVI. kerület, Mátyásföld
Eladó panellakás

Budapest, XVI. kerület

71 M Ft
2 szoba
55 m²
XIII. kerület
Eladó téglalakás

Budapest, XIII. kerület

59.9 M Ft
1 + 1 szoba
35 m²
III. kerület, Csillaghegy
Eladó panellakás

Budapest, III. kerület

94.5 M Ft
3 szoba
73 m²
XIV. kerület
Eladó panellakás

Budapest, XIV. kerület

64.9 M Ft
1 + 2 szoba
46 m²
III. kerület
Eladó panellakás

Budapest, III. kerület

110 M Ft
3 szoba
73 m²
XIV. kerület
Eladó téglalakás

Budapest, XIV. kerület

124.9 M Ft
3 + 1 szoba
103 m²
XXII. kerület
Eladó ikerház

Budapest, XXII. kerület

103 M Ft
3 szoba
84 m²
XII. kerület
Eladó téglalakás

Budapest, XII. kerület

59 M Ft
1 szoba
31 m²
III. kerület
Eladó panellakás

Budapest, III. kerület

73.9 M Ft
1 + 2 szoba
57 m²
III. kerület
Eladó panellakás

Budapest, III. kerület

110 M Ft
3 szoba
73 m²

Falusi CSOK ingatlanok

Tápszentmiklós
Eladó családi ház

Tápszentmiklós

108 M Ft
7 szoba
330 m²
Darnózseli
Eladó családi ház

Darnózseli

69.9 M Ft
4 szoba
104 m²
Tápióbicske
Eladó családi ház

Tápióbicske

17.4 M Ft
2 szoba
84 m²
Gyöngyössolymos
Eladó családi ház

Gyöngyössolymos

57.99 M Ft
4 szoba
160 m²
Arnót
Eladó családi ház

Arnót

34.9 M Ft
3 + 1 szoba
120 m²
Hosszúpereszteg
Eladó családi ház

Hosszúpereszteg

27.9 M Ft
4 szoba
121 m²
Lengyeltóti
Eladó családi ház

Lengyeltóti

93.9 M Ft
8 szoba
200 m²
Balatonszemes
Eladó téglalakás

Balatonszemes

199.9 M Ft
4 szoba
90 m²