Metrodom

Eladó panellakás
Budapest, III. kerület, 4. emelet

+ 3 kép 1/6
66 800 000 Ft66.8 M Ft 1 171 930 Ft/m2
1 + 2 szoba
57 m²
4. emelet
építés éve:1978

Részletes adatok

Állapot: Átlagos
Fűtés: Távfűtés
Emelet: 4. emelet
Extrák: Lift
Energetikai besorolás: Nem adta meg a hirdető

Az OTP Bank lakáshitel ajánlataFizetett hirdetés

+36 30 400
Papp-Horváth Katalin
Otp Ingatlanpont Falk Miksa

Érdekel az OTP Bank kedvezményes lakáshitel ajánlata? *

* A kérdésre „Igen” válasz bejelölése esetén, az „Üzenet küldése” gombra kattintva kijelentem, hogy az OTP Bank Nyrt. Adatkezelési tájékoztatójának tartalmát megismertem és tudomásul vettem.

Eladó panellakás leírása

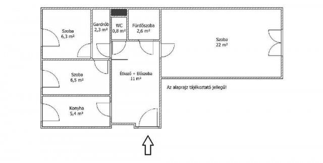
Eladó 57 négyzetméteres jó állapotú negyedik emeleti panellakás a Gyűrű utcában. Kiváló elosztású egy plusz két félszobás nagyon praktikus gardróbbal! Az épület panelprogramban részt vett, homlokzata rendezett. A műanyag ablakok redőnyösek és lakó szobánként egy nyitható ablak rovarhálós. A fűtést és a meleg vizet távhőn kapja a lakás, a radiátorok egyedi mérővel vannak ellátva. A háznak jelentős megtakarítása van így a fejlesztéseket folyamatosan tervezik, a közös költség emelkedése a közeljövőben nem várható. A közelben oktatási intézmények, üzletek és bevásárlóközpont is van, a tömegközlekedés kiváló a környéken. Parkolni a ház előtt kialakított parkolóban lehet közterületen ingyenesen. Ezt a remek elosztású lakást pároknak vagy családosoknak ajánlom elsősorban. Az ingatlan tehermentes, szinte azonnal költözhető! Ha érdekesnek találta jöjjön el és tekintse meg élőben is! Időpont egyeztetéshez hívjon bizalommal!

Teljes körű ügyintézéssel állunk az eladók és a vevők rendelkezésére! A kínálatunkból választott ingatlan finanszírozásához minősített fogyasztóbarát, piaci és kedvezményes hitel- és lízingkonstrukciókat kínálunk (lakásvásárlási hitel, szabad felhasználású hitel, babaváró hitel, CSOK Plusz intézés, Otthonfelújítási Támogatás, egyéb felújítási hitelek). Az adásvételi szerződés megkötéséhez igény szerint megbízható ügyvédi közreműködést biztosítunk, és segítséget nyújtunk az adásvételhez kapcsolódó egyéb ügyek intézéséhez.

Kérdéseire az esti órákban és hétvégén is szívesen válaszolok! Ha az új ingatlana megvásárlásához a jelenlegi ingatlanát el kell adnia, abban is szívesen segítünk.

Referencia szám: M324472

Hirdetés feltöltve: 2026. 03. 14. Utoljára módosítva: 2026. 03. 14.

3 szobás panellakások ára Budapesten

Ebből az összehasonlításból megtudhatod, hogyan viszonyul a lakás ára a környékbeli panellakások átlagos árához. Ez nem azt jelenti, hogy ennyivel olcsóbb vagy drágább, mint amennyit a lakás ér, hanem hogy ennyivel tér el a környékbeli átlagtól.

Ennek a m² ára
III. kerület m² ár
Budapest m² ár
1172 e Ft
1300 e Ft 10%
1220 e Ft 4%
Ennek az ára
III. kerület átlagár
Budapest átlagár
66.8 M Ft m Ft
81.8 m Ft 18%
76.9 m Ft 13%

Az ingatlan elhelyezkedése

Cím: Budapest, III. kerület, 4. emelet

Eladó ingatlanok a környékről

III. kerület, Békásmegyer
Eladó panellakás

Budapest, III. kerület

66.9 M Ft
2 szoba
51 m²
XIII. kerület, Vizafogó, Turóc utca 10
Eladó téglalakás

Budapest, XIII. kerület

132.51 M Ft
3 szoba
67 m²
XIII. kerület, Vizafogó, Turóc utca 10
Eladó téglalakás

Budapest, XIII. kerület

175.77 M Ft
4 szoba
82 m²
III. kerület
Eladó panellakás

Budapest, III. kerület

110 M Ft
3 szoba
73 m²
III. kerület, Óbuda
Eladó panellakás

Budapest, III. kerület

75.5 M Ft
2 szoba
48 m²
VII. kerület, Külső Erzsébetváros, Alsó erdősor
Eladó téglalakás

Budapest, VII. kerület

105 M Ft
3 szoba
71 m²
XX. kerület, Erzsébetfalva
Eladó téglalakás

Budapest, XX. kerület

23.5 M Ft
1 szoba
24 m²
XIII. kerület
Eladó téglalakás

Budapest, XIII. kerület

99 M Ft
2 + 1 szoba
76 m²
XIV. kerület, Rákosfalva, Egressy út
Eladó téglalakás

Budapest, XIV. kerület

143.9 M Ft
3 szoba
67 m²
III. kerület, Óbuda, Miklós utca
Eladó panellakás

Budapest, III. kerület

84.9 M Ft
3 szoba
66 m²
X. kerület
Eladó téglalakás

Budapest, X. kerület

43.6 M Ft
1 szoba
34 m²
III. kerület
Eladó panellakás

Budapest, III. kerület

110 M Ft
3 szoba
73 m²
III. kerület
Eladó panellakás

Budapest, III. kerület

73.9 M Ft
1 + 2 szoba
57 m²
III. kerület
Eladó panellakás

Budapest, III. kerület

110 M Ft
3 szoba
73 m²
XIV. kerület
Eladó téglalakás

Budapest, XIV. kerület

78 M Ft
2 szoba
42 m²
XIII. kerület, Vizafogó, Turóc utca 10
Eladó téglalakás

Budapest, XIII. kerület

150.255 M Ft
3 szoba
76 m²
XIII. kerület, Vizafogó, Turóc utca 10
Eladó téglalakás

Budapest, XIII. kerület

265.23 M Ft
5 szoba
113 m²
XIV. kerület
Eladó téglalakás

Budapest, XIV. kerület

147 M Ft
2 szoba
84 m²
VII. kerület, Külső Erzsébetváros, Osvát utca
Eladó téglalakás

Budapest, VII. kerület

75.5 M Ft
2 szoba
65 m²
XIV. kerület, Istvánmező
Eladó téglalakás

Budapest, XIV. kerület

124.9 M Ft
3 szoba
85 m²
III. kerület
Eladó panellakás

Budapest, III. kerület

78.5 M Ft
3 szoba
66 m²
III. kerület, Békásmegyer
Eladó panellakás

Budapest, III. kerület

73.9 M Ft
1 + 2 szoba
57 m²
III. kerület
Eladó panellakás

Budapest, III. kerület

110 M Ft
3 szoba
73 m²
XIII. kerület, Vizafogó, Turóc utca 10
Eladó téglalakás

Budapest, XIII. kerület

93.765 M Ft
2 szoba
43 m²

Falusi CSOK ingatlanok

Balatonszepezd
Eladó családi ház

Balatonszepezd

299 M Ft
5 szoba
220 m²
Badacsonytördemic
Eladó ikerház

Badacsonytördemic

87.5 M Ft
5 szoba
170 m²
Rétság
Eladó téglalakás

Rétság

34.9 M Ft
2 szoba
55 m²
Balatonszemes
Eladó téglalakás

Balatonszemes

123.3 M Ft
2 szoba
70 m²
Zagyvarékas
Eladó családi ház

Zagyvarékas

14.5 M Ft
3 szoba
85 m²
Szigetcsép
Eladó családi ház

Szigetcsép

110 M Ft
3 szoba
137 m²
Csömend
Eladó családi ház

Csömend

29.8 M Ft
2 szoba
96 m²
Sumony
Eladó családi ház

Sumony

19 M Ft
4 szoba
120 m²