Avico Greentop

Eladó nyaraló
Siófok, 3. emelet

+ 12 kép 1/15
120 000 000 Ft120 M Ft 1 846 154 Ft/m2
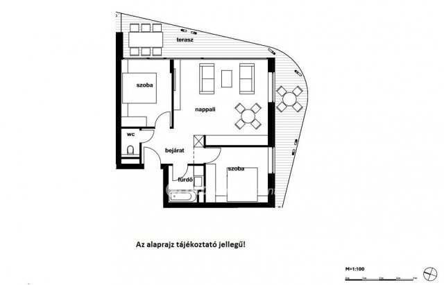
3 szoba
65 m²
3. emelet
építés éve:2018

Részletes adatok

Fűtés: Egyéb
Emelet: 3. emelet
Komfort: Összkomfortos
Extrák: Lift
Energetikai besorolás: Nem adta meg a hirdető

Az OTP Bank lakáshitel ajánlataFizetett hirdetés

+36 70 316
Zsitnyányi Ágnes
referens

Érdekel az OTP Bank kedvezményes lakáshitel ajánlata? *

* A kérdésre „Igen” válasz bejelölése esetén, az „Üzenet küldése” gombra kattintva kijelentem, hogy az OTP Bank Nyrt. Adatkezelési tájékoztatójának tartalmát megismertem és tudomásul vettem.

Eladó nyaraló leírása

Siófokon, az Ezüstparton újépítésű társasházi lakások eladók. Az ingatlan a központtól 3 km távolságban található, saját kijárattal rendelkezik a szabad strandra. A földszint + 4 emeletes, liftes társasházban 55 lakóegység épül, változatos alaprajzi méretekkel, balatoni panorámával. A lakásokhoz az épület földszintjén tároló helyiségek és telken belül parkolóhelyek kerülnek kialakításra, melyek pluszban megvásárolhatók. A parkosított területen egy kültéri medence is megépítésre kerül. A modern megjelenésű ház hőszivattyús, hűtő-fűtő gépészeti rendszerrel készül. A földszinti lakások közvetlen kertkapcsolattal, a legfelső szinten levő penthouse lakások hatalmas teraszokkal rendelkeznek. Az emeleti lakásokhoz nagyméretű, egymástól leválasztott erkélyek tartoznak. Kérje részletes tájékoztatónkat!

Referencia szám: M80466

Hirdetés feltöltve: 2026. 04. 25. Utoljára módosítva: 2026. 05. 17.

Nyaralók ára Siófokon

Ebből az összehasonlításból megtudhatod, hogyan viszonyul a lakás ára a környékbeli nyaralók átlagos árához. Ez nem azt jelenti, hogy ennyivel olcsóbb vagy drágább, mint amennyit a lakás ér, hanem hogy ennyivel tér el a környékbeli átlagtól.

Ennek a m² ára
Siófok m² ár
1846 e Ft
1411 e Ft -31%
Ennek az ára
Siófok átlagár
120 M Ft m Ft
123.6 m Ft 3%

Az ingatlan elhelyezkedése

Cím: Siófok, 3. emelet

Eladó nyaralók a környékről

Gyékényes
Eladó nyaraló

Gyékényes

65 M Ft
1 szoba
50 m²
Siófok
Eladó nyaraló

Siófok

75.9 M Ft
2 + 2 szoba
65 m²
Siófok
Eladó nyaraló

Siófok

56.99 M Ft
3 szoba
60 m²
Siófok
Eladó nyaraló

Siófok

265 M Ft
3 szoba
75 m²
Siófok
Eladó nyaraló

Siófok

179 M Ft
3 szoba
75 m²
Balatonlelle
Eladó nyaraló

Balatonlelle

54.9 M Ft
3 szoba
66 m²
Gyékényes
Eladó nyaraló

Gyékényes

46.5 M Ft
1 szoba
30 m²
Siófok
Eladó nyaraló

Siófok

112.2 M Ft
3 szoba
70 m²
Gyékényes
Eladó nyaraló

Gyékényes

36.9 M Ft
1 szoba
39 m²
Siófok
Eladó nyaraló

Siófok

166.6 M Ft
3 szoba
71 m²
Balatonfenyves, Vörösmarty utca
Eladó nyaraló

Balatonfenyves

119 M Ft
6 szoba
186 m²
Siófok
Eladó nyaraló

Siófok

166.6 M Ft
3 szoba
71 m²
Siófok
Eladó nyaraló

Siófok

120 M Ft
3 szoba
65 m²
Siófok
Eladó nyaraló

Siófok

79.8 M Ft
3 szoba
65 m²
Siófok
Eladó nyaraló

Siófok

112.2 M Ft
3 szoba
64 m²
Balatonlelle
Eladó nyaraló

Balatonlelle

54.9 M Ft
3 szoba
66 m²
Siófok
Eladó nyaraló

Siófok

120 M Ft
3 szoba
65 m²
Siófok
Eladó nyaraló

Siófok

79.8 M Ft
3 szoba
65 m²
Siófok
Eladó nyaraló

Siófok

139.4 M Ft
4 szoba
139 m²
Siófok
Eladó nyaraló

Siófok

120 M Ft
3 szoba
65 m²
Siójut
Eladó nyaraló

Siójut

34.9 M Ft
5 szoba
110 m²
Siófok, Mártírok útja
Eladó nyaraló

Siófok

660 M Ft
7 szoba
580 m²
Siófok, Mártírok útja
Eladó nyaraló

Siófok

660 M Ft
7 szoba
580 m²
Siófok
Eladó nyaraló

Siófok

146.8 M Ft
3 szoba
0 m²

Falusi CSOK ingatlanok

Szigetújfalu
Eladó családi ház

Szigetújfalu

66 M Ft
3 szoba
118 m²
Dunaegyháza
Eladó családi ház

Dunaegyháza

29.49 M Ft
3 szoba
70 m²
Egerbakta
Eladó családi ház

Egerbakta

43.9 M Ft
5 + 1 szoba
160 m²
Kislippó
Eladó családi ház

Kislippó

30 M Ft
2 szoba
80 m²
Sárosd
Eladó családi ház

Sárosd

21.9 M Ft
3 szoba
86 m²
Lajoskomárom
Eladó családi ház

Lajoskomárom

22.9 M Ft
2 szoba
66 m²
Zagyvarékas, Erdő utca 16
Eladó családi ház

Zagyvarékas

0.1 M Ft
2 szoba
113 m²
Himesháza
Eladó családi ház

Himesháza

30 M Ft
3 szoba
92 m²