Pesti Házak

Eladó nyaraló
Siófok

+ 12 kép 1/15
255 000 000 Ft255 M Ft 1 159 091 Ft/m2
8 szoba
220 m2
építés éve:1946

Részletes adatok

Telekméret: 603 m2
Fűtés: Gázkazán
Energetikai besorolás: Nem adta meg a hirdető

Az OTP Bank lakáshitel ajánlataFizetett hirdetés

+36 20 938
Vincze László György
OTPIP - Pécs, Rákóczi út 19.

Érdekel az OTP Bank kedvezményes lakáshitel ajánlata? *

* A kérdésre „Igen” válasz bejelölése esetén, az „Üzenet küldése” gombra kattintva kijelentem, hogy az OTP Bank Nyrt. Adatkezelési tájékoztatójának tartalmát megismertem és tudomásul vettem.

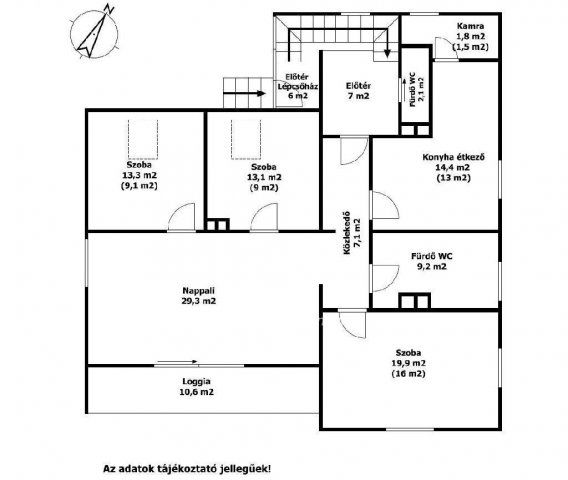
Eladó nyaraló leírása

Balaton déli part, Siófok, 220 m2 társasházzá alakított 2 lakóegységes családi ház eladó. A földszint + tetőtér kialakítású ingatlan frekventált üdülőövezetben helyezkedik el, a Balaton-parttól 280 méterre. Az épület több elemében felújításra került az elmúlt években, homlokzati hőszigetelés, műanyag nyílászárók kerültek beépítésre, tetőhéjazat csere történt. A lakások megközelítése külön bejáraton keresztül biztosított, a terület kerítéssel kettéválasztott, a tetőtéri lakás megközelítése zárt lépcsőházon keresztül történik. A lakások külön mérőórákkal rendelkeznek. A lakások fűtése külön kombi gázkazánról működik. Minkét lakóegységben biztosított a vegyes tüzelésű kiegészítő fűtés. A lakások minősített kereskedelmi szálláshelyként vannak nyilvántartva. Az épület alkalmas lehet több generáció együttélésére, valamint befektetésre, kiadásra. Városközpont 800 méter távolságban van. Bővebb információért keressen telefonon! M312828

255000000 Ft

Referencia szám: M312828

Hirdetés feltöltve: 2025. 10. 09. Utoljára módosítva: 2025. 11. 07.

Nyaralók ára Siófokon

Ebből az összehasonlításból megtudhatod, hogyan viszonyul a lakás ára a környékbeli nyaralók átlagos árához. Ez nem azt jelenti, hogy ennyivel olcsóbb vagy drágább, mint amennyit a lakás ér, hanem hogy ennyivel tér el a környékbeli átlagtól.

Ennek a m² ára
Siófok m² ár
1159 e Ft
1543 e Ft 25%
Ennek az ára
Siófok átlagár
255 M Ft m Ft
132 m Ft -93%

Az ingatlan elhelyezkedése

Cím: Siófok

Eladó nyaralók a környékről

Eladó nyaraló
Eladó nyaraló

Siófok

166.6 M Ft
3 szoba
71 m2
Eladó nyaraló
Eladó nyaraló

Fonyód

115 M Ft
6 szoba
205 m2
Eladó nyaraló
Eladó nyaraló

Siófok

265 M Ft
3 szoba
75 m2
Eladó nyaraló
Eladó nyaraló

Siófok

232.9 M Ft
4 szoba
118 m2
Eladó nyaraló
Eladó nyaraló

Siófok

79.8 M Ft
3 szoba
65 m2
Eladó nyaraló
Eladó nyaraló

Fonyód

115 M Ft
6 szoba
205 m2
Eladó nyaraló
Eladó nyaraló

Siófok

375.92 M Ft
4 szoba
148 m2
Eladó nyaraló
Eladó nyaraló

Siófok

159.9 M Ft
3 szoba
90 m2
Eladó nyaraló
Eladó nyaraló

Balatonlelle

54.9 M Ft
3 szoba
66 m2
Eladó nyaraló
Eladó nyaraló

Siófok

255.27 M Ft
3 szoba
100 m2
Eladó nyaraló
Eladó nyaraló

Siófok

122 M Ft
3 szoba
65 m2
Eladó nyaraló
Eladó nyaraló

Siófok

265 M Ft
3 szoba
75 m2
Eladó nyaraló
Eladó nyaraló

Siófok

232.9 M Ft
4 szoba
118 m2
Eladó nyaraló
Eladó nyaraló

Balatonmáriafürdő

69.99 M Ft
3 + 2 szoba
76 m2
Eladó nyaraló
Eladó nyaraló

Zamárdi

135 M Ft
4 + 1 szoba
189 m2
Eladó nyaraló
Eladó nyaraló

Siófok

18 M Ft
2 szoba
32 m2
Eladó nyaraló
Eladó nyaraló

Siófok, Mártírok útja

660 M Ft
7 szoba
580 m2
Eladó nyaraló
Eladó nyaraló

Fonyód

64.9 M Ft
3 + 1 szoba
70 m2
Eladó nyaraló
Eladó nyaraló

Siójut

34.9 M Ft
5 szoba
110 m2
Eladó nyaraló
Eladó nyaraló

Siófok

74.99 M Ft
4 szoba
95 m2
Eladó nyaraló
Eladó nyaraló

Balatonfenyves

563.75 M Ft
4 szoba
114 m2
Eladó nyaraló
Eladó nyaraló

Siófok

342.55 M Ft
4 szoba
139 m2
Eladó nyaraló
Eladó nyaraló

Siófok

62 M Ft
3 szoba
100 m2
Eladó nyaraló
Eladó nyaraló

Siófok

633.73 M Ft
4 szoba
252 m2

Falusi CSOK ingatlanok

Eladó családi ház
Eladó családi ház

Kóny, Kazinczy utca

78.9 M Ft
3 szoba
170 m2
Eladó családi ház
Eladó családi ház

Varbóc

7.9 M Ft
2 szoba
86 m2
Eladó családi ház
Eladó családi ház

Somogyszil

27.9 M Ft
3 szoba
140 m2
Eladó családi ház
Eladó családi ház

Várbalog

47.98 M Ft
3 szoba
85 m2
Eladó családi ház
Eladó családi ház

Akasztó

13.9 M Ft
3 szoba
103 m2
Eladó családi ház
Eladó családi ház

Tass

55 M Ft
2 + 1 szoba
65 m2
Eladó családi ház
Eladó családi ház

Németkér

149.9 M Ft
2 szoba
540 m2
Eladó családi ház
Eladó családi ház

Mezőfalva

39 M Ft
3 szoba
77 m2