Astora Olive Club House

Eladó nyaraló
Ráckeve

70 000 000 Ft70 M Ft 1 166 667 Ft/m2
3 szoba
60 m2
építés éve:2025

Részletes adatok

Telekméret: 507 m2
Fűtés: Egyéb
Energetikai besorolás: Nem adta meg a hirdető

Az OTP Bank lakáshitel ajánlataFizetett hirdetés

3629998448
Szabóné Kristóf Beáta
AktiválLak 2023 Kft

Érdekel az OTP Bank kedvezményes lakáshitel ajánlata? *

* A kérdésre „Igen” válasz bejelölése esetén, az „Üzenet küldése” gombra kattintva kijelentem, hogy az OTP Bank Nyrt. Adatkezelési tájékoztatójának tartalmát megismertem és tudomásul vettem.

Eladó nyaraló leírása

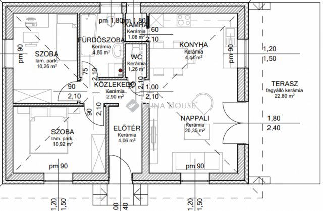
Egyedülálló élmény a Ráckevei Duna-parton! 60 m2-es hasznos alapterületű Önálló újépítésű nyaraló.Itt minden reggel egy új kaland kezdete, és minden este egy romantikus mesébe csöppenhet bele. A természet szerelmesei és az otthon melege iránt vágyakozók egyaránt megtalálják itt számításaikat.Helyiségek:-Előtér: 4,06m2-Közlekedő: 2,90m2-Szoba: 10,92m2-Szoba: 10,26m2-Fürdőszoba: 4,86m2-Kamra: 1,08m2-Wc: 1,26m2.Konyha: 4,44m2.Nappali: 20,35m2-Terasz: 22,80m2-30m2-es kerti sütögető mely jelenleg is a telken állMűszaki jellemzők:-Az 507m2-es telek víz,villany és csatornahálózattal ellátott.-Tégla építés-Betonfödém szigetelve-Terrán cserépfedés-6 légkamrás színes műanyag nyílászárók 1.0-ás hőszigetelt üvegezéssel, vakolhatótokos elektromos redőnnyel. Külső színes lemezpárkény, belső műkő párkányokkal.-Víz, csatorna, H-tarifás villanyóra, elektromos felszálló vezetékek a telken lévő közműhálózatra való csatlakozással. -Hűtő-fűtő klíma 1 db-Hőszivattyú padlófűtéssel H tarifás villanyórával-Két ház közti kerítés: 1 sor zsalukő, táblás kerítéselemmel.-Kerti csap-A hideg burkolatok 5.000.-Ft/nm ár-ig, a meleg burkolatok 4.000.-Ft/nm ár-ig választható. Ezen felüli költség a vevőt terheli.-A szaniterek és csaptelepek közép ár kategóriás termékeket jelentenek. Ettől árban felfelé eltérni a különbözet megfizetése esetén lehetséges.-Vízszerelés Rehau vagy azzal, egyenértékű rendszerrel.-Homlokzati nyílászárók: 6 légkamrás fehér műanyag nyílászárók 1.0-ás hőszigetelt üvegezéssel, külső-belső műanyag párkánnyal, vakolható tokos redőnnyel.-Belső válaszfalajtók: Dekor fóliás stand-door mdf szerkezet, szín választható (tele ajtó) 50.000.-Ft-ig/db.Az ingatlan kérhető klímás fűtéssel, hőszivattyú és padlófűtés nélkül is, az ár így módosul 65.000.000Ft-ra.-Az ingatlanhoz külön felár ellenében megvásárolható egy vadonat új stég is a háztól 50méterre, melynek összege 7.000.000Ft.-A telken jelenleg van egy 15m2-es összkomfortos téliesített tégla ház mely azonnal birtokba vehető, így Ráckeve élvezhető az építkezés alatt is, melyet a kivitelező saját költségén elbont majd.Az építtető megbízható kivitelező referencia munkákkal rendelkezik, bátran jöjjenek és nézzék meg személyesen a helyszínt.Elhelyezkedés:Álmai otthona karnyújtásnyira a Duna parttól a Somlyó szigeten helyezkedik el. Ráckeve városközpontja 10perces autóútra van.Részletes műszaki leírás és személyes megtekintés miatt keressenek bizalommal!

Hirdetés feltöltve: 2025. 10. 04. Utoljára módosítva: 2025. 11. 02.

Nyaralók ára Ráckevén

Ebből az összehasonlításból megtudhatod, hogyan viszonyul a lakás ára a környékbeli nyaralók átlagos árához. Ez nem azt jelenti, hogy ennyivel olcsóbb vagy drágább, mint amennyit a lakás ér, hanem hogy ennyivel tér el a környékbeli átlagtól.

Ennek a m² ára
Ráckeve m² ár
1167 e Ft
702 e Ft -66%
Ennek az ára
Ráckeve átlagár
70 M Ft m Ft
42.6 m Ft -64%

Az ingatlan elhelyezkedése

Cím: Ráckeve

Eladó nyaralók a környékről

Eladó nyaraló
Eladó nyaraló

Zebegény

130 M Ft
3 szoba
63 m2
Eladó nyaraló
Eladó nyaraló

Ráckeve

61.5 M Ft
3 szoba
80 m2
Eladó nyaraló
Eladó nyaraló

Zebegény, Zártkert

98 M Ft
1 szoba
50 m2
Eladó nyaraló
Eladó nyaraló

Ráckeve

42 M Ft
3 szoba
60 m2
Eladó nyaraló
Eladó nyaraló

Páty

34.9 M Ft
1 szoba
40 m2
Eladó nyaraló
Eladó nyaraló

Kismaros

15.9 M Ft
1 + 1 szoba
31 m2
Eladó nyaraló
Eladó nyaraló

Leányfalu, Rózsahegyi utca

69 M Ft
4 szoba
157 m2
Eladó nyaraló
Eladó nyaraló

Ráckeve

34.499 M Ft
2 szoba
50 m2
Eladó nyaraló
Eladó nyaraló

Ráckeve

95 M Ft
8 szoba
310 m2
Eladó nyaraló
Eladó nyaraló

Ráckeve

49.99 M Ft
2 szoba
70 m2
Eladó nyaraló
Eladó nyaraló

Ráckeve

30 M Ft
2 + 2 szoba
45 m2
Eladó nyaraló
Eladó nyaraló

Verőce

33.9 M Ft
2 szoba
42 m2
Eladó nyaraló
Eladó nyaraló

Budajenő, Mélyárok utca

49 M Ft
2 szoba
30 m2
Eladó nyaraló
Eladó nyaraló

Délegyháza

46 M Ft
3 szoba
35 m2
Eladó nyaraló
Eladó nyaraló

Tóalmás

18.2 M Ft
1 + 2 szoba
60 m2
Eladó nyaraló
Eladó nyaraló

Délegyháza, Óbudai telep

23 M Ft
1 szoba
35 m2
Eladó nyaraló
Eladó nyaraló

Ráckeve

18.9 M Ft
1 szoba
30 m2
Eladó nyaraló
Eladó nyaraló

Délegyháza

25 M Ft
2 szoba
34 m2
Eladó nyaraló
Eladó nyaraló

Szentendre

149 M Ft
4 szoba
140 m2
Eladó nyaraló
Eladó nyaraló

Ráckeve

14.7 M Ft
1 szoba
30 m2
Eladó nyaraló
Eladó nyaraló

Ráckeve

61.5 M Ft
3 szoba
80 m2
Eladó nyaraló
Eladó nyaraló

Ráckeve

47.5 M Ft
3 + 1 szoba
87 m2
Eladó nyaraló
Eladó nyaraló

Ráckeve

47.5 M Ft
3 + 1 szoba
87 m2
Eladó nyaraló
Eladó nyaraló

Ráckeve

47.5 M Ft
3 + 1 szoba
87 m2

Falusi CSOK ingatlanok

Eladó családi ház
Eladó családi ház

Nagyberény

24.9 M Ft
3 szoba
62 m2
Eladó családi ház
Eladó családi ház

Szabadbattyán

30 M Ft
4 szoba
75 m2
Eladó családi ház
Eladó családi ház

Besnyő

105.999 M Ft
6 szoba
189 m2
Eladó családi ház
Eladó családi ház

Hernádnémeti

41.5 M Ft
2 + 1 szoba
73 m2
Eladó családi ház
Eladó családi ház

Mályi

89.9 M Ft
4 szoba
100 m2
Eladó családi ház
Eladó családi ház

Tab

46.9 M Ft
4 szoba
173 m2
Eladó családi ház
Eladó családi ház

Mezőlak, Arany János utca

35.7 M Ft
3 szoba
104 m2
Eladó családi ház
Eladó családi ház

Kótaj

59.9 M Ft
5 szoba
94 m2