River Life

Eladó nyaraló
Nyíregyháza

+ 15 kép 1/18
21 800 000 Ft21.8 M Ft 375 862 Ft/m2
2 szoba
58 m2
építés éve:1963

Részletes adatok

Állapot: Átlagos
Telekméret: 1680 m2
Fűtés: Egyéb
Energetikai besorolás: Nem adta meg a hirdető

Az OTP Bank lakáshitel ajánlataFizetett hirdetés

+36 30 722
Harsányi Nikolett
OTPIP Nyíregyháza Hunyadi u.

Érdekel az OTP Bank kedvezményes lakáshitel ajánlata? *

* A kérdésre „Igen” válasz bejelölése esetén, az „Üzenet küldése” gombra kattintva kijelentem, hogy az OTP Bank Nyrt. Adatkezelési tájékoztatójának tartalmát megismertem és tudomásul vettem.

Eladó nyaraló leírása

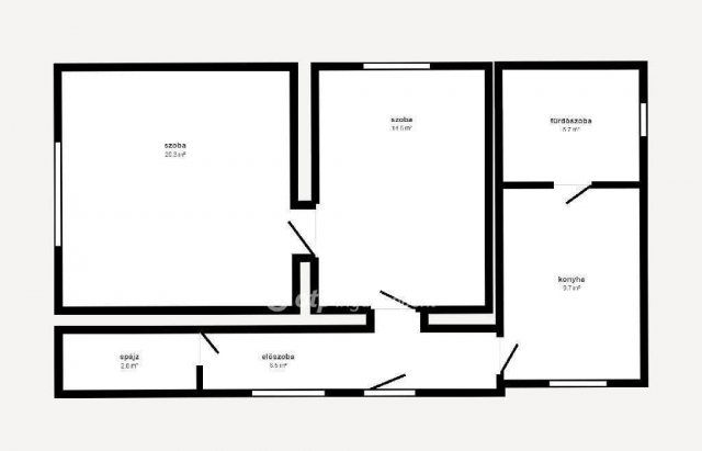
Eladó egy 58 négyzetméteres, vegyesfalazatú, 2 szobás családi ház Nyíregyháza Felsősima területén, 1680 négyzetméteres telken. A külterületű ingatlan -kivett lakóház, udvar, gazdasági épület besorolású - kifüggeszteni nem kell. Az ingatlan tehermentes, 2 szoba, előszoba, konyha, fürdőszoba, tároló helyiségekkel rendelkezik. Jó állapotú, összkomfortos, műanyag nyílászárókkal, felújított tető szerkezettel és új vízvezeték rendszerrel a központi fűtés vegyes tüzelésű kazánnal. OTP Banki hátterünknek köszönhetően finanszírozási igényekben (pl. Babaváró, Falusi CSOK, CSOK Plusz, Lakáshitel, Személyi kölcsön stb.), illetve biztosítások tekintetében is díjmentesen, soron kívüli ügyintézéssel segítem ügyfeleim! Referenciaszám: M307028

Hirdetés feltöltve: 2025. 12. 11. Utoljára módosítva: 2025. 12. 11.

Nyaralók ára Nyíregyházán

Ebből az összehasonlításból megtudhatod, hogyan viszonyul a lakás ára a környékbeli nyaralók átlagos árához. Ez nem azt jelenti, hogy ennyivel olcsóbb vagy drágább, mint amennyit a lakás ér, hanem hogy ennyivel tér el a környékbeli átlagtól.

Ennek a m² ára
Nyíregyháza m² ár
376 e Ft
461 e Ft 18%
Ennek az ára
Nyíregyháza átlagár
21.8 M Ft m Ft
39.9 m Ft 45%

Az ingatlan elhelyezkedése

Cím: Nyíregyháza

Eladó nyaralók a környékről

Eladó nyaraló
Eladó nyaraló

Tiszavasvári

12.99 M Ft
3 szoba
40 m2
Eladó nyaraló
Eladó nyaraló

Nyíregyháza

17.9 M Ft
3 szoba
90 m2
Eladó nyaraló
Eladó nyaraló

Nyíregyháza

17.9 M Ft
3 szoba
90 m2
Eladó nyaraló
Eladó nyaraló

Vásárosnamény

12.9 M Ft
3 szoba
142 m2
Eladó nyaraló
Eladó nyaraló

Rakamaz

16.9 M Ft
0 + 2 szoba
40 m2
Eladó nyaraló
Eladó nyaraló

Nyíregyháza

149.9 M Ft
4 + 2 szoba
202 m2
Eladó nyaraló
Eladó nyaraló

Nyíregyháza

21.8 M Ft
2 szoba
58 m2
Eladó nyaraló
Eladó nyaraló

Nyíregyháza

56 M Ft
2 szoba
68 m2
Eladó nyaraló
Eladó nyaraló

Nyíregyháza

17.9 M Ft
3 szoba
90 m2
Eladó nyaraló
Eladó nyaraló

Nyíregyháza

17.9 M Ft
3 szoba
90 m2
Eladó nyaraló
Eladó nyaraló

Nyíregyháza

19.9 M Ft
1 szoba
35 m2
Eladó nyaraló
Eladó nyaraló

Nyíregyháza

21.8 M Ft
2 szoba
58 m2
Eladó nyaraló
Eladó nyaraló

Nyíregyháza

17.9 M Ft
3 szoba
90 m2
Eladó nyaraló
Eladó nyaraló

Nyíregyháza

21.8 M Ft
2 szoba
58 m2
Eladó nyaraló
Eladó nyaraló

Nyíregyháza

21.8 M Ft
2 szoba
58 m2
Eladó nyaraló
Eladó nyaraló

Nyíregyháza

17.9 M Ft
3 szoba
90 m2
Eladó nyaraló
Eladó nyaraló

Nyíregyháza

21.8 M Ft
2 szoba
58 m2
Eladó nyaraló
Eladó nyaraló

Nyíregyháza

21.8 M Ft
2 szoba
58 m2
Eladó nyaraló
Eladó nyaraló

Nyíregyháza

10.9 M Ft
3 szoba
40 m2
Eladó nyaraló
Eladó nyaraló

Levelek

34.9 M Ft
3 + 3 szoba
140 m2
Eladó nyaraló
Eladó nyaraló

Nyíregyháza

17.9 M Ft
3 szoba
90 m2
Eladó nyaraló
Eladó nyaraló

Levelek

34.9 M Ft
5 szoba
160 m2
Eladó nyaraló
Eladó nyaraló

Nyíregyháza

17.9 M Ft
3 szoba
90 m2
Eladó nyaraló
Eladó nyaraló

Rakamaz

43.18 M Ft
2 szoba
110 m2

Falusi CSOK ingatlanok

Eladó családi ház
Eladó családi ház

Kétbodony

84.9 M Ft
5 szoba
151 m2
Eladó családi ház
Eladó családi ház

Újlengyel

110 M Ft
4 szoba
121 m2
Eladó családi ház
Eladó családi ház

Elek, Tavasz utca 7

12.355 M Ft
1 + 1 szoba
207 m2
Eladó családi ház
Eladó családi ház

Mecsér, Nincs utca

49.9 M Ft
3 szoba
68 m2
Eladó családi ház
Eladó családi ház

Gyömöre

44 M Ft
2 szoba
106 m2
Eladó családi ház
Eladó családi ház

Tapsony

23.8 M Ft
3 szoba
130 m2
Eladó családi ház
Eladó családi ház

Magyarszombatfa

80 M Ft
3 szoba
90 m2
Eladó családi ház
Eladó családi ház

Abaújszántó

19.99 M Ft
3 szoba
84 m2