Astora Art House

Eladó nyaraló
Kulcs

+ 17 kép 1/20
16 500 000 Ft16.5 M Ft 183 333 Ft/m2
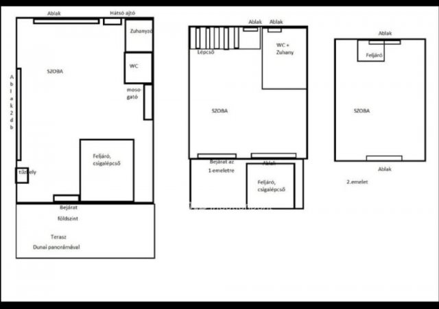
2 szoba
90 m²
építés éve:1974

Részletes adatok

Állapot: Átlagos
Telekméret: 898 m2
Fűtés: Elektromos
Energetikai besorolás: Nem adta meg a hirdető

Az OTP Bank lakáshitel ajánlataFizetett hirdetés

+36 70 324
Máté Katalin
Szigetszentmiklós OTP Ip

Érdekel az OTP Bank kedvezményes lakáshitel ajánlata? *

* A kérdésre „Igen” válasz bejelölése esetén, az „Üzenet küldése” gombra kattintva kijelentem, hogy az OTP Bank Nyrt. Adatkezelési tájékoztatójának tartalmát megismertem és tudomásul vettem.

Eladó nyaraló leírása

Nyaraló Kulcson, csodás kilátással!

Eladásra kínálok egy nyaralót Kulcson üdülőövezetben, a Dunától rövid sétányi távolságra.
A nyaraló 50 m2 alapterületű, 3 szintes, összesen kb 90 m2-es, mely 898 m2-es telken helyezkedik el. Az épület téliesített, állandó lakhatásra alkalmas szigetelt faház, terasszal.
Az ingatlanban 2 szoba, nappali konyhával, zuhanyzós fürdőszoba, 2 wc található.
Keletre néző ablakaiból gyönyörű örök panorámás kilátás esik a Dunára. Vezetékes víz, villany a házban, emésztő a ház mellett lett kiépítve.
2 autónak alkalmas betonozott beálló a ház előtt található.
Iskola, óvoda, bölcsőde 15 perc séta.
Az M6-os ill. 6-os út közelségének köszönhetően könnyen megközelíthető Dunaújváros, illetve Budapest és környéke is.
A faluban sportpálya, játszótér, orvosi rendelő is van.

Megtekintésért, vagy ha kérdése lenne, forduljon hozzám bizalommal, akár hétvégén is.

Hirdetés feltöltve: 2026. 04. 09. Utoljára módosítva: 2026. 05. 05.

Nyaralók ára Kulcson

Ebből az összehasonlításból megtudhatod, hogyan viszonyul a lakás ára a környékbeli nyaralók átlagos árához. Ez nem azt jelenti, hogy ennyivel olcsóbb vagy drágább, mint amennyit a lakás ér, hanem hogy ennyivel tér el a környékbeli átlagtól.

Ennek a m² ára
Kulcs m² ár
183 e Ft
878 e Ft 79%
Ennek az ára
Kulcs átlagár
16.5 M Ft m Ft
35.8 m Ft 54%

Az ingatlan elhelyezkedése

Cím: Kulcs

Eladó nyaralók a környékről

Kulcs
Eladó nyaraló

Kulcs

40 M Ft
1 szoba
25 m²
Kulcs
Eladó nyaraló

Kulcs

40 M Ft
1 szoba
25 m²
Kulcs
Eladó nyaraló

Kulcs

40 M Ft
1 szoba
25 m²
Szabadbattyán, Emmaróza
Eladó nyaraló

Szabadbattyán

12 M Ft
2 szoba
30 m²
Szabadbattyán
Eladó nyaraló

Szabadbattyán

24.9 M Ft
1 + 1 szoba
30 m²
Kulcs
Eladó nyaraló

Kulcs

23.5 M Ft
2 szoba
56 m²
Kulcs
Eladó nyaraló

Kulcs

60 M Ft
2 szoba
50 m²
Kulcs
Eladó nyaraló

Kulcs

100 M Ft
3 szoba
75 m²
Csór
Eladó nyaraló

Csór

10.9 M Ft
1 szoba
20 m²
Enying
Eladó nyaraló

Enying

16.9 M Ft
1 szoba
50 m²
Pákozd
Eladó nyaraló

Pákozd

14.9 M Ft
2 szoba
48 m²
Kulcs
Eladó nyaraló

Kulcs

60 M Ft
2 szoba
50 m²
Kulcs
Eladó nyaraló

Kulcs

32.7 M Ft
3 szoba
38 m²
Pázmánd
Eladó nyaraló

Pázmánd

15 M Ft
1 szoba
25 m²
Kulcs
Eladó nyaraló

Kulcs

16.5 M Ft
2 szoba
35 m²
Gárdony
Eladó nyaraló

Gárdony

89.5 M Ft
6 szoba
140 m²
Bicske, Galagonyás IV. dűlő út
Eladó nyaraló

Bicske

9.4 M Ft
1 szoba
16 m²
Kulcs
Eladó nyaraló

Kulcs

13.5 M Ft
1 szoba
20 m²
Kulcs
Eladó nyaraló

Kulcs

32.7 M Ft
3 szoba
38 m²
Sukoró
Eladó nyaraló

Sukoró

49 M Ft
5 szoba
129 m²
Kulcs
Eladó nyaraló

Kulcs

21.8 M Ft
2 szoba
45 m²
Kulcs
Eladó nyaraló

Kulcs

90 M Ft
1 + 1 szoba
46 m²
Sukoró
Eladó nyaraló

Sukoró

55 M Ft
2 + 3 szoba
126 m²
Etyek, Öreghegyi présházak
Eladó nyaraló

Etyek

24.9 M Ft
2 szoba
101 m²

Falusi CSOK ingatlanok

Hegyeshalom, Margaréta utca 12
Eladó téglalakás

Hegyeshalom

35.92 M Ft
1 szoba
31 m²
Hajós
Eladó családi ház

Hajós

49.5 M Ft
6 szoba
394 m²
Szigetújfalu
Eladó családi ház

Szigetújfalu

66 M Ft
3 szoba
118 m²
Hegyeshalom, Margaréta utca 12
Eladó téglalakás

Hegyeshalom

50.09 M Ft
2 szoba
43 m²
Rábatamási
Eladó családi ház

Rábatamási

39 M Ft
3 szoba
106 m²
Nyirád
Eladó családi ház

Nyirád

124.99 M Ft
4 szoba
263 m²
Szakony
Eladó családi ház

Szakony

57.77 M Ft
4 szoba
160 m²
Győrság
Eladó családi ház

Győrság

79.9 M Ft
4 szoba
92 m²