Seven Pearl

Eladó nyaraló
Kiskunlacháza

+ 13 kép 1/16
118 000 000 Ft118 M Ft 1 282 609 Ft/m2
3 + 1 szoba
92 m2
építés éve:2021

Részletes adatok

Állapot: Újszerű
Telekméret: 588 m2
Fűtés: Elektromos
Energetikai besorolás: Nem adta meg a hirdető

Az OTP Bank lakáshitel ajánlataFizetett hirdetés

+36 30 324
Major Katalin Tünde
Szigetszentmiklós OTP Ip

Érdekel az OTP Bank kedvezményes lakáshitel ajánlata? *

* A kérdésre „Igen” válasz bejelölése esetén, az „Üzenet küldése” gombra kattintva kijelentem, hogy az OTP Bank Nyrt. Adatkezelési tájékoztatójának tartalmát megismertem és tudomásul vettem.

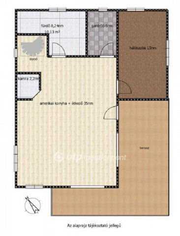
Eladó nyaraló leírása

***Prémium kivitelezésű hétvégi ház!***

Eladó Kiskunlacházán, a Dunától mindössze 60 méterre egy 92 m2-es, modern technológiával épült, thermoblock falazatú, kívül-belül szigetelt, kiemelkedő minőségű, belterületi hétvégi ház, 588 m2-es, parkosított telken.

A ház különlegességét a látványos vörösfenyő tetőszerkezet, a padlófűtés, a korszerű légkondicionált fűtési rendszer, valamint a beépített kandalló adják. A tágas, 35 m2-es, gépesített amerikai konyhás nappali ideális családi és baráti összejövetelekhez.

Az ingatlan része továbbá egy 7,5 × 4 méteres fűthető medence, egy impozáns vörösfenyő terasz, valamint rendezett, zöld, parkosított kert. Az ingatlan elektromos kapuval, riasztórendszerrel ellátott.

Amennyiben felkeltettem érdeklődését, hívjon bizalommal a hét bármely napján!

Az OTP Bankcsoport teljeskörű ügyintézéssel áll az eladók és a vevők rendelkezésére! A kínálatunkból választott ingatlan finanszírozásához kedvezményes hitelkonstrukciókat kínálunk. Az adásvételi szerződés megkötéséhez igény szerint megbízható ügyvédi közreműködést biztosítunk és segítséget nyújtunk az adásvételhez kapcsolódó ügyek intézéséhez.

Referenciaszám: M318962

Hirdetés feltöltve: 2025. 12. 30. Utoljára módosítva: 2025. 12. 30.

Nyaralók ára Kiskunlacházán

Ebből az összehasonlításból megtudhatod, hogyan viszonyul a lakás ára a környékbeli nyaralók átlagos árához. Ez nem azt jelenti, hogy ennyivel olcsóbb vagy drágább, mint amennyit a lakás ér, hanem hogy ennyivel tér el a környékbeli átlagtól.

Ennek a m² ára
Kiskunlacháza m² ár
1283 e Ft
706 e Ft -82%
Ennek az ára
Kiskunlacháza átlagár
118 M Ft m Ft
32 m Ft -268%

Az ingatlan elhelyezkedése

Cím: Kiskunlacháza

Eladó ingatlanok a környékről

Eladó nyaraló
Eladó nyaraló

Kiskunlacháza

35.9 M Ft
3 szoba
60 m2
Eladó nyaraló
Eladó nyaraló

Tóalmás

9.9 M Ft
0 + 2 szoba
30 m2
Eladó családi ház
Eladó családi ház

Szada

99.5 M Ft
5 szoba
115 m2
Eladó nyaraló
Eladó nyaraló

Délegyháza

25 M Ft
2 szoba
34 m2
Eladó nyaraló
Eladó nyaraló

Leányfalu, Rózsahegyi utca

69 M Ft
4 szoba
157 m2
Eladó nyaraló
Eladó nyaraló

Kiskunlacháza

36 M Ft
1 szoba
50 m2
Eladó nyaraló
Eladó nyaraló

Vác

29.5 M Ft
3 szoba
45 m2
Eladó téglalakás
Eladó téglalakás

Dunakeszi

66.9 M Ft
3 szoba
72 m2
Eladó téglalakás
Eladó téglalakás

Ráckeve

69.5 M Ft
2 szoba
67 m2
Eladó családi ház
Eladó családi ház

Csörög

97.9 M Ft
4 szoba
120 m2
Eladó panellakás
Eladó panellakás

Szigetszentmiklós

62.7 M Ft
2 + 1 szoba
54 m2
Eladó telek
Eladó telek

Dunakeszi

120 M Ft
1094 m²
Eladó nyaraló
Eladó nyaraló

Kiskunlacháza

39.9 M Ft
4 szoba
60 m2
Eladó nyaraló
Eladó nyaraló

Szigetszentmiklós

31.5 M Ft
3 szoba
62 m2
Eladó nyaraló
Eladó nyaraló

Kóka, Zártkert

7.5 M Ft
1 szoba
22 m2
Eladó nyaraló
Eladó nyaraló

Délegyháza, Óbudai telep

23 M Ft
1 szoba
35 m2
Eladó nyaraló
Eladó nyaraló

Tápiószentmárton, Zártkert

11 M Ft
0 + 2 szoba
32 m2
Eladó nyaraló
Eladó nyaraló

Isaszeg

59.9 M Ft
4 szoba
115 m2
Eladó nyaraló
Eladó nyaraló

Kismaros

15.9 M Ft
1 + 1 szoba
31 m2
Eladó családi ház
Eladó családi ház

Nagykovácsi, Nagykovácsi - kertváros

338 M Ft
690 m²
240 m2
Eladó családi ház
Eladó családi ház

Tápiószentmárton

50 M Ft
4 szoba
75 m2
Eladó nyaraló
Eladó nyaraló

Zebegény, Zártkert

98 M Ft
1 szoba
50 m2
Eladó családi ház
Eladó családi ház

Dabas

149.9 M Ft
5 szoba
166 m2
Eladó családi ház
Eladó családi ház

Érd

79.9 M Ft
2 szoba
72 m2

Falusi CSOK ingatlanok

Eladó családi ház
Eladó családi ház

Kenyeri

39.9 M Ft
3 szoba
94 m2
Eladó családi ház
Eladó családi ház

Balatonkeresztúr

119 M Ft
6 szoba
180 m2
Eladó családi ház
Eladó családi ház

Elek

21.5 M Ft
2 szoba
76 m2
Eladó ikerház
Eladó ikerház

Balatonakali

165 M Ft
4 szoba
138 m2
Eladó családi ház
Eladó családi ház

Pannonhalma

83.9 M Ft
4 szoba
97 m2
Eladó családi ház
Eladó családi ház

Újkígyós

19.99 M Ft
2 + 1 szoba
72 m2
Eladó családi ház
Eladó családi ház

Ádánd

69.9 M Ft
6 szoba
251 m2
Eladó családi ház
Eladó családi ház

Pápakovácsi

33 M Ft
3 szoba
87 m2