Oasis Residence

Eladó iroda
Eger

+ 17 kép 1/20
149 000 000 Ft149 M Ft 1 064 286 Ft/m2
3 szoba
140 m2
építés éve:1950

Részletes adatok

Állapot: Felújított
Fűtés: Egyéb
Energetikai besorolás: Nem adta meg a hirdető

Az OTP Bank lakáshitel ajánlataFizetett hirdetés

+36 70 907
Juhász Anita
referens

Érdekel az OTP Bank kedvezményes lakáshitel ajánlata? *

* A kérdésre „Igen” válasz bejelölése esetén, az „Üzenet küldése” gombra kattintva kijelentem, hogy az OTP Bank Nyrt. Adatkezelési tájékoztatójának tartalmát megismertem és tudomásul vettem.

Eladó iroda leírása

Elegáns családi ház extrákkal, mely alkalmas exkluzív irodaként, igényes orvosi rendelőként vagy vendégházként is.

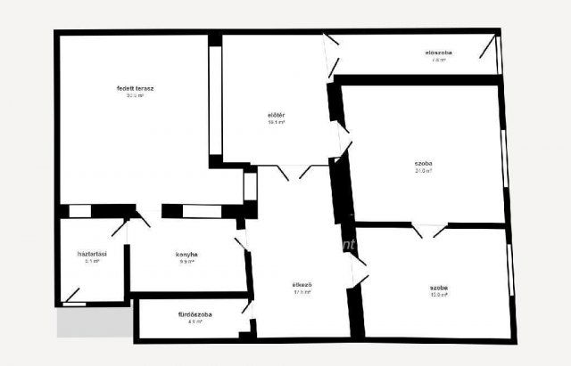
Heves vármegye, Eger belvárosnak közelében egy 140 m2-es elegáns és modern kényelmi megoldásokkal felszerelt családi ház eladó.
Az ingatlan a Deák Ferenc utcában található, rendezett környezetben. A házban előszoba, fényes nappali, 2 tágas hálószoba, étkező, konyha, zuhanyzós fürdőszoba WC-vel, valamint egy praktikus házimunka helyiség található, ahonnan a pince is megközelíthető. Az 50 m2-es, fűthető pince kis ablakkal rendelkezik, jelenleg klubszobaként van kialakítva. A házhoz tartozik továbbá egy 60 m2-es fedett terasz, amely ideális szabadtéri pihenésre és vendégfogadásra. A fürdőszoba járólappal, a többi helyiség pedig laminált padlóval burkolt. Az otthon melegét hőszivattyús rendszer biztosítja, alternatívaként gáz-cirkó és kályha is rendelkezésre áll.

Az ingatlan néhány éve jelentős felújításon esett át: hőszivattyús fűtési-hűtési rendszer kiépítése, 10 kW-os napelemrendszer telepítése a tetőre, a teljes villamos hálózat korszerűsítése, elektromos redőnyök, kamera-, riasztó- és beléptetőrendszer telepítése, az eredeti fa ablakokat felújítása, hőszigetelt üvegezéssel.

A ház előtt saját, 4-5 autó számára kényelmes parkoló áll rendelkezésre.
Az ingatlan minden részlete átgondolt, jól megtervezett és magas minőséget képvisel. Nemcsak családi háznak, de vendégháznak, elegáns orvosi rendelőnek vagy irodának is kiváló választás.
A ház jelenlegi berendezéssel együtt eladó, így akár azonnal költözhető. A bútorzat a vételár részét képezi, de igény esetén megállapodás tárgyát képezheti.
További információért hívjon bizalommal, akár hétvégén is. Ügyfeleink számára igény esetén kedvező hitellehetőséget, megbízható ügyvédi közreműködést és irodai hátteret biztosítunk a szerződéskötéshez. Kérem, érdeklődéskor hivatkozzon az M317855 számra.

Referencia szám: M317855-ZE

Hirdetés feltöltve: 2025. 11. 26. Utoljára módosítva: 2026. 02. 02.

Irodák ára Egerben

Ebből az összehasonlításból megtudhatod, hogyan viszonyul a lakás ára a környékbeli irodák átlagos árához. Ez nem azt jelenti, hogy ennyivel olcsóbb vagy drágább, mint amennyit a lakás ér, hanem hogy ennyivel tér el a környékbeli átlagtól.

Ennek a m² ára
Eger m² ár
1064 e Ft
130 e Ft -716%
Ennek az ára
Eger átlagár
149 M Ft m Ft
32.3 m Ft -362%

Az ingatlan elhelyezkedése

Cím: Eger

Eladó ingatlanok a környékről

Eladó iroda
Eladó iroda

Eger

6 M Ft
1 szoba
5 m2
Eladó iroda
Eladó iroda

Recsk, Kossuth Lajos út

5.75 M Ft
79 m2
Eladó családi ház
Eladó családi ház

Poroszló

112.99 M Ft
4 szoba
193 m2
Eladó iroda
Eladó iroda

Gyöngyös

65 M Ft
150 m2
Eladó telek
Eladó telek

Poroszló

9.9 M Ft
1546 m²
Eladó iroda
Eladó iroda

Eger, Hatvani hóstya, Deák Ferenc utca

149 M Ft
3 szoba
140 m2
Eladó családi ház
Eladó családi ház

Bükkszék

30 M Ft
3 szoba
76 m2
Eladó családi ház
Eladó családi ház

Adács

38 M Ft
2 szoba
75 m2
Eladó iroda
Eladó iroda

Szihalom, Hunyadi János út

14.95 M Ft
1 szoba
133 m2
Eladó családi ház
Eladó családi ház

Gyöngyös

99.99 M Ft
6 + 1 szoba
330 m2
Eladó téglalakás
Eladó téglalakás

Gyöngyös

44.9 M Ft
3 szoba
95 m2
Eladó családi ház
Eladó családi ház

Rózsaszentmárton

57.5 M Ft
5 szoba
160 m2
Eladó családi ház
Eladó családi ház

Mátraderecske, Kossuth Lajos út

51 M Ft
3 szoba
130 m2
Eladó téglalakás
Eladó téglalakás

Hatvan

41.9 M Ft
2 szoba
59 m2
Eladó téglalakás
Eladó téglalakás

Hatvan

41.9 M Ft
2 szoba
59 m2
Eladó családi ház
Eladó családi ház

Zagyvaszántó

25 M Ft
2 szoba
Eladó családi ház
Eladó családi ház

Tiszanána

28.5 M Ft
3 szoba
133 m2
Eladó családi ház
Eladó családi ház

Tiszanána

14.9 M Ft
3 szoba
80 m2
Eladó iroda
Eladó iroda

Eger, Hatvani hóstya, Deák Ferenc utca

149 M Ft
3 szoba
140 m2
Eladó téglalakás
Eladó téglalakás

Hatvan

41.9 M Ft
2 szoba
59 m2
Eladó iroda
Eladó iroda

Eger

175 M Ft
5 szoba
159 m2
Eladó iroda
Eladó iroda

Kompolt, Kölcsey Ferenc utca

18.63 M Ft
1 szoba
92 m2
Eladó iroda
Eladó iroda

Eger

175 M Ft
5 szoba
159 m2
Eladó téglalakás
Eladó téglalakás

Eger

54.9 M Ft
1 + 1 szoba
41 m2

Falusi CSOK ingatlanok

Eladó családi ház
Eladó családi ház

Tápszentmiklós

59.8 M Ft
5 szoba
110 m2
Eladó családi ház
Eladó családi ház

Sellye

48.2 M Ft
4 szoba
99 m2
Eladó családi ház
Eladó családi ház

Balatonkeresztúr, Berek utca

149 M Ft
4 szoba
185 m2
Eladó családi ház
Eladó családi ház

Lengyeltóti

46 M Ft
2 szoba
90 m2
Eladó családi ház
Eladó családi ház

Porva

74.6 M Ft
3 szoba
115 m2
Eladó családi ház
Eladó családi ház

Vaszar

13.9 M Ft
2 szoba
67 m2
Eladó családi ház
Eladó családi ház

Szászvár, Meggyes utca

9.99 M Ft
2 szoba
90 m2
Eladó családi ház
Eladó családi ház

Szilvásvárad

50 M Ft
5 szoba
146 m2