Kedves Felhasználónk! Rendszerfrissítés miatt az oldalunk 2026. február 9-én 12 órától várhatóan 20 óráig nem lesz elérhető. Köszönjük megértésed!
Astora Art House

Eladó iroda
Cegléd

1/2
100 000 000 Ft100 M Ft 892 857 Ft/m2
4 szoba
112 m2
építés éve:2026

Részletes adatok

Fűtés: Egyéb
Parkolás: Kocsibeálló
Közmű: Víz, Gáz, Villany, Csatorna
Energetikai besorolás: Nem adta meg a hirdető

Az OTP Bank lakáshitel ajánlataFizetett hirdetés

+36 20 232
Legjobb Otthon ingatlaniroda
Legjobb Otthon ingatlaniroda

Érdekel az OTP Bank kedvezményes lakáshitel ajánlata? *

* A kérdésre „Igen” válasz bejelölése esetén, az „Üzenet küldése” gombra kattintva kijelentem, hogy az OTP Bank Nyrt. Adatkezelési tájékoztatójának tartalmát megismertem és tudomásul vettem.

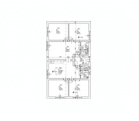
Eladó iroda leírása

Eladó iroda új építésű társasházban Cegléden!

Tervezett átadás: 2026. nyarán.

Az ingatlan főbb jellemzői:
- 112,09 m2 hasznos alapterület,
- földszinti elhelyezkedés,
- Viablokk D-300 tégla falazat,
- cserép fedés,
- 4 iroda + tárgyaló,
- A+++ energetikai besorolás,
- műanyag 3 rétegű hőszigetelt üvegezésű nyílászárók,
- összközműves,
- 3x25 A áramerősség,
- 3 fázisú levegő-víz hőszivattyú, padlófűtés és mennyezeti hűtés-fűtés,
- napelemrendszer,
- minőségi alapanyagokból, megbízható kivitelező által kivitelezett,
- az iroda megvásárlása befektetési célra is kiválóan alkalmas, mert lakásként is funkcionálhat.

További részletekért és bővebb információért kérem hívjon! Amennyiben hitelre van szüksége, irodánk teljes körű ügyintézéssel, ingyenes és bankfüggetlen hiteltanácsadással várja. A hirdetésben szereplő információk a megbízótól kapott adatok alapján készültek, pontosságukért felelősséget nem vállalunk!


































#legjobbotthoningatlaniroda #legjobbotthon #ingatlancegléd #cegléd #ceglédiingatlan #ceglédilakás #ceglédieladóingatlan #ceglédiház #eladóingatlancegléd #ceglédkörnyéke #ceglédingatlanos #1,5% #eladóingatlan #eladóház #eladólakás #ingatlan #ingatlanpiac #otthon #lakásvásárlás #házvásárlás #befektetés #ingatlanbefektetés #kiadó #kiadóingatlancegléd #CSOK #tápióság #csemő #albertirsa #ceglédbercel #pilis

Hirdetés feltöltve: 2025. 10. 02. Utoljára módosítva: 2026. 01. 13.

Az ingatlan elhelyezkedése

Cím: Cegléd

Eladó ingatlanok a környékről

Eladó családi ház
Eladó családi ház

Tápiógyörgye

33 M Ft
3 + 2 szoba
140 m2
Eladó iroda
Eladó iroda

Cegléd

60.55 M Ft
64 m2
Eladó ikerház
Eladó ikerház

Gyömrő

127.9 M Ft
5 szoba
119 m2
Eladó családi ház
Eladó családi ház

Veresegyház

79.99 M Ft
2 szoba
60 m2
Eladó családi ház
Eladó családi ház

Kerepes

74.9 M Ft
3 szoba
80 m2
Eladó ikerház
Eladó ikerház

Vecsés

129.9 M Ft
5 szoba
118 m2
Eladó családi ház
Eladó családi ház

Úri

74.9 M Ft
6 szoba
386 m2
Eladó iroda
Eladó iroda

Érd

88.773 M Ft
48 m2
Eladó iroda
Eladó iroda

Domony

420 M Ft
35 szoba
1653 m2
Eladó iroda
Eladó iroda

Biatorbágy

125 M Ft
6 szoba
193 m2
Eladó iroda
Eladó iroda

Érd

115 M Ft
277 m2
Eladó iroda
Eladó iroda

Cegléd

50 M Ft
2 szoba
56 m2
Eladó családi ház
Eladó családi ház

Üllő

92.9 M Ft
4 szoba
89 m2
Eladó családi ház
Eladó családi ház

Szigethalom

97.9 M Ft
5 szoba
135 m2
Eladó családi ház
Eladó családi ház

Őrbottyán

85 M Ft
4 szoba
103 m2
Eladó iroda
Eladó iroda

Törökbálint

680 M Ft
1120 m2
Eladó iroda
Eladó iroda

Monor

180 M Ft
420 m2
Eladó téglalakás
Eladó téglalakás

Üllő

64.99 M Ft
4 szoba
66 m2
Eladó iroda
Eladó iroda

Cegléd

60.55 M Ft
64 m2
Eladó iroda
Eladó iroda

Érd

62.04 M Ft
58 m2
Eladó iroda
Eladó iroda

Gödöllő

370 M Ft
900 m2
Eladó családi ház
Eladó családi ház

Kerepes

74.9 M Ft
3 szoba
80 m2
Eladó iroda
Eladó iroda

Érd

62.103 M Ft
55 m2
Eladó iroda
Eladó iroda

Gödöllő

370 M Ft
900 m2

Falusi CSOK ingatlanok

Eladó családi ház
Eladó családi ház

Illocska

15 M Ft
2 szoba
105 m2
Eladó családi ház
Eladó családi ház

Elek

85.9 M Ft
5 szoba
274 m2
Eladó családi ház
Eladó családi ház

Csót

39.5 M Ft
4 szoba
123 m2
Eladó téglalakás
Eladó téglalakás

Kőröshegy

68 M Ft
2 szoba
65 m2
Eladó családi ház
Eladó családi ház

Beremend, 7827 Beremend, Petőfi Sándor utca 10

11.95 M Ft
1 + 1 szoba
124 m2
Eladó családi ház
Eladó családi ház

Szabadbattyán

67.5 M Ft
5 szoba
180 m2
Eladó családi ház
Eladó családi ház

Véménd

46.9 M Ft
5 szoba
195 m2
Eladó családi ház
Eladó családi ház

Seregélyes

73.9 M Ft
4 szoba
110 m2