Oasis Residence

Eladó családi ház
Vecsés

+ 15 kép 1/18
77 000 000 Ft77 M Ft 641 667 Ft/m2
3 + 1 szoba
120 m²
építés éve:1970

Részletes adatok

Állapot: Átlagos
Telekméret: 893 m2
Fűtés: Elektromos
Energetikai besorolás: I

Az OTP Bank lakáshitel ajánlataFizetett hirdetés

+36 70 786
Pröbsztl Gábor Zoltán
referens

Érdekel az OTP Bank kedvezményes lakáshitel ajánlata? *

* A kérdésre „Igen” válasz bejelölése esetén, az „Üzenet küldése” gombra kattintva kijelentem, hogy az OTP Bank Nyrt. Adatkezelési tájékoztatójának tartalmát megismertem és tudomásul vettem.

Eladó családi ház leírása

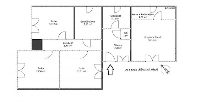
Eladó egy jó állapotú vegyes falazatú családi ház Vecsésen, 893 négyzetméteres telken. A ház 87 négyzetméteres alapterületű részben felújított három plusz egy félszobás. A felújított zuhanyzó és tágas étkezős konyha napfényes, igény szerint az első szoba kellemes nappalinak is kialakítható. 2023-ban a teljes épületfalazat vízszigetelést kapott injektálós technológiával. A villamos vezetékek és a csövek cseréje már megtörtént. Jelenleg elektromos fűtéssel rendelkezik egy H- tarifás nagy teljesítményű klímával kiegészítve. Mivel a cserépkályhákat megőrizték akár fával is fűthető a ház. Melegvizet modern Hajdú villanybojler szolgáltat. Tartozik még hozzá egy 34 négyzetméteres téliesített melléképület ami jelenleg lakássá van alakítva, de akár üzlethelyiségnek (Pl.: körmös, fodrász) is kiváló lehet. A telken található még egy betonalapos lemez fészer és egy kisház ami műhelynek vagy tárolónak is hasznosítható. Parkolni a ház előtt de a kertben is van hely akár több autónak is. Vecsés egy jó infrastruktúrájú város szinte minden szolgáltatás helyben elérhető, Budapestre ingázóknak pedig vonzó lehetőség az agglomerációban, hiszen autóval és tömegközlekedéssel is megoldhatóak a mindennapok. Elsősorban pároknak és családosoknak ajánlanám, de érdekes lehet bárkinek aki otthonról dolgozik vagy vállalkozik. Ha érdekesnek találta jöjjön el és tekintse meg élőben is! Időpont egyeztetéshez hívjon bizalommal!

Teljes körű ügyintézéssel állunk az eladók és a vevők rendelkezésére! A kínálatunkból választott ingatlan finanszírozásához minősített fogyasztóbarát, piaci és kedvezményes hitel- és lízingkonstrukciókat kínálunk (lakásvásárlási hitel, szabad felhasználású hitel, babaváró hitel, CSOK Plusz intézés, Otthonfelújítási Támogatás, egyéb felújítási hitelek). Az adásvételi szerződés megkötéséhez igény szerint megbízható ügyvédi közreműködést biztosítunk, és segítséget nyújtunk az adásvételhez kapcsolódó egyéb ügyek intézéséhez.

Kérdéseire az esti órákban és hétvégén is szívesen válaszolok! Ha az új ingatlana megvásárlásához a jelenlegi ingatlanát el kell adnia, abban is szívesen segítünk.

Hirdetés feltöltve: 2026. 04. 10. Utoljára módosítva: 2026. 04. 10.

4 szobás családi házak ára Vecsésen

Ebből az összehasonlításból megtudhatod, hogyan viszonyul a lakás ára a környékbeli családi házak átlagos árához. Ez nem azt jelenti, hogy ennyivel olcsóbb vagy drágább, mint amennyit a lakás ér, hanem hogy ennyivel tér el a környékbeli átlagtól.

Ennek a m² ára
Vecsés m² ár
642 e Ft
993 e Ft 35%
Ennek az ára
Vecsés átlagár
77 M Ft m Ft
117.2 m Ft 34%

Az ingatlan elhelyezkedése

Cím: Vecsés

Eladó családi házak a környékről

Tápiószentmárton
Eladó családi ház

Tápiószentmárton

16.5 M Ft
3 szoba
50 m²
Tápiószentmárton
Eladó családi ház

Tápiószentmárton

7.9 M Ft
2 + 1 szoba
86 m²
Tápiószele
Eladó családi ház

Tápiószele

18.9 M Ft
4 szoba
68 m²
Vecsés
Eladó családi ház

Vecsés

395 M Ft
8 szoba
580 m²
Tápiógyörgye
Eladó családi ház

Tápiógyörgye

19.9 M Ft
3 szoba
65 m²
Tápiószele
Eladó családi ház

Tápiószele

11.9 M Ft
3 szoba
62 m²
Vecsés
Eladó családi ház

Vecsés

299.9 M Ft
1 szoba
505 m²
Nagykáta
Eladó családi ház

Nagykáta

130 M Ft
3 szoba
203 m²
Kerepes
Eladó családi ház

Kerepes

199 M Ft
6 szoba
360 m²
Vecsés
Eladó családi ház

Vecsés

172 M Ft
2 szoba
220 m²
Tápiószele
Eladó családi ház

Tápiószele

32.9 M Ft
4 szoba
200 m²
Vecsés
Eladó családi ház

Vecsés

149.9 M Ft
5 szoba
194 m²
Vecsés
Eladó családi ház

Vecsés

137.9 M Ft
4 szoba
143 m²
Vecsés
Eladó családi ház

Vecsés

110 M Ft
5 szoba
160 m²
Vecsés, Bem utca
Eladó családi ház

Vecsés

87 M Ft
7 szoba
120 m²
Budaörs
Eladó családi ház

Budaörs

400 M Ft
12 szoba
583 m²
Tápiószőlős
Eladó családi ház

Tápiószőlős

34.9 M Ft
5 szoba
210 m²
Dunakeszi
Eladó családi ház

Dunakeszi

250 M Ft
4 szoba
180 m²
Vecsés, Küküllői utca
Eladó családi ház

Vecsés

159 M Ft
9 szoba
315 m²
Vecsés
Eladó családi ház

Vecsés

140 M Ft
6 + 2 szoba
187 m²
Kerepes
Eladó családi ház

Kerepes

81.99 M Ft
5 szoba
102 m²
Vecsés
Eladó családi ház

Vecsés

120 M Ft
3 szoba
89 m²
Budakeszi, Makkosmária
Eladó családi ház

Budakeszi

100 M Ft
1 szoba
10 m²
Vecsés
Eladó családi ház

Vecsés

290 M Ft
11 + 2 szoba
315 m²

Falusi CSOK ingatlanok

Nagybörzsöny
Eladó családi ház

Nagybörzsöny

79.9 M Ft
4 szoba
129 m²
Szigetcsép
Eladó családi ház

Szigetcsép

110 M Ft
3 szoba
137 m²
Derekegyház
Eladó családi ház

Derekegyház

24 M Ft
2 + 2 szoba
81 m²
Zsámbok
Eladó családi ház

Zsámbok

32 M Ft
2 szoba
75 m²
Zalakomár
Eladó családi ház

Zalakomár

35.9 M Ft
4 szoba
0 m²
Szegvár
Eladó családi ház

Szegvár

14.3 M Ft
3 + 1 szoba
130 m²
Tápióság
Eladó családi ház

Tápióság

59.9 M Ft
4 szoba
99 m²
Szob
Eladó sorház

Szob

16 M Ft
2 szoba
45 m²