Avico Greentop

Eladó iroda
Budapest, XI. kerület, Albertfalva, 1. emelet

+ 10 kép 1/13
61 990 000 Ft61.99 M Ft 645 729 Ft/m2
4 szoba
96 m2
1. emelet
építés éve:1980

Részletes adatok

Állapot: Felújított
Fűtés: Gázkazán
Emelet: 1. emelet
Parkolás: Kocsibeálló
Energetikai besorolás: Nem adta meg a hirdető

Az OTP Bank lakáshitel ajánlataFizetett hirdetés

+36 70 421
Agatity Roland
referens

Érdekel az OTP Bank kedvezményes lakáshitel ajánlata? *

* A kérdésre „Igen” válasz bejelölése esetén, az „Üzenet küldése” gombra kattintva kijelentem, hogy az OTP Bank Nyrt. Adatkezelési tájékoztatójának tartalmát megismertem és tudomásul vettem.

Eladó iroda leírása

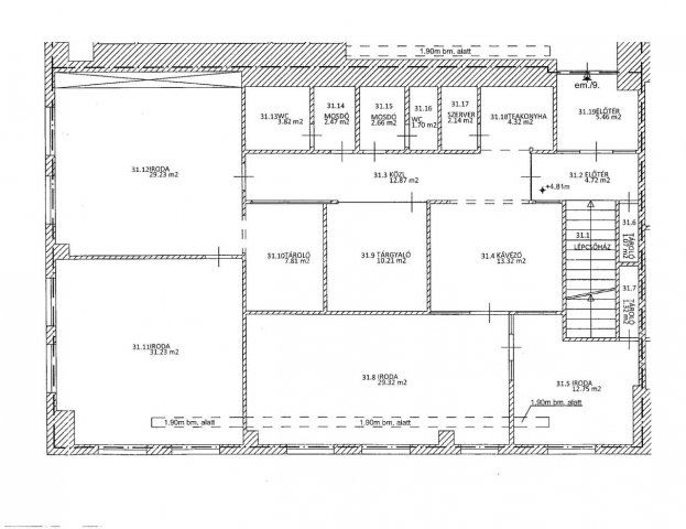
Budapest XI. kerület, Albertfalván, a budafoki út közelében, ipari területen lévő 192 m2-es felújított irodahelyiség 1/2 tulajdonjoga eladó!
Az ingatlan rendezett jogi háttérrel (társasház önálló helyrajzi számú irodákkal, saját mérők), délkeleti tájolással és saját parkolóval rendelkezik. Elsőrendű autós és teherautós közlekedési kapcsolat. 2020-ban felújításon esett át (vezetékek, burkolatok, nyílászárók, beépített konyha) riasztóval és valamennyi helyisége klímával van felszerelve. Közlekedési szempontból az iroda páratlan lehetőségeket nyújt. Az MO körgyűrű csomópontja mindössze 2 km-re, a 6-os főút 1000 méterre található, míg az M1 és M7 közös bevezető szakasza 5 km-re helyezkedik el. A Rákóczi híd budai hídfője 3 km-re van, és a repülőtér autóval 50 perc alatt elérhető. A közlekedés még egyszerűbbé válik, hiszen a 33,133E buszok az épület előtt állnak meg, míg további busz- és villamosjáratok mindössze 5-10 perces sétával elérhetők. ...TOVÁBBI, TÖBBEZRES INGATLAN KÍNÁLAT: www.gdn-ingatlan.hu - GDN azonosító: 388858

Hirdetés feltöltve: 2025. 10. 27. Utoljára módosítva: 2026. 01. 21.

Irodák ára Budapesten

Ebből az összehasonlításból megtudhatod, hogyan viszonyul a lakás ára a környékbeli irodák átlagos árához. Ez nem azt jelenti, hogy ennyivel olcsóbb vagy drágább, mint amennyit a lakás ér, hanem hogy ennyivel tér el a környékbeli átlagtól.

Ennek a m² ára
XI. kerület m² ár
Budapest m² ár
646 e Ft
926 e Ft 30%
1033 e Ft 37%
Ennek az ára
XI. kerület átlagár
Budapest átlagár
61.99 M Ft m Ft
297.7 m Ft 79%
265.1 m Ft 77%

Az ingatlan elhelyezkedése

Cím: Budapest, XI. kerület, Albertfalva, 1. emelet

Eladó ingatlanok a környékről

Eladó téglalakás
Eladó téglalakás

VII. kerület, Belső Erzsébetváros, Erzsébet körút

160 M Ft
3 szoba
88 m2
Eladó iroda
Eladó iroda

XI. kerület, Kelenföld

78.4 M Ft
98 m2
Eladó téglalakás
Eladó téglalakás

IV. kerület, Újpest, Kassai utca

84.9 M Ft
2 + 1 szoba
71 m2
Eladó téglalakás
Eladó téglalakás

XIII. kerület, Angyalföld, Fiastyúk utca

39.9 M Ft
1 + 1 szoba
34 m2
Eladó téglalakás
Eladó téglalakás

XI. kerület, Gellérthegy, Gyula utca

130 M Ft
2 szoba
56 m2
Eladó iroda
Eladó iroda

XI. kerület

170.17 M Ft
169 m2
Eladó téglalakás
Eladó téglalakás

VI. kerület, Külső Terézváros, Szív utca

124.9 M Ft
3 szoba
94 m2
Eladó iroda
Eladó iroda

XI. kerület, Lágymányos

251.9 M Ft
458 m2
Eladó iroda
Eladó iroda

XI. kerület

170.17 M Ft
169 m2
Eladó téglalakás
Eladó téglalakás

VIII. kerület, Palotanegyed, Rákóczi út

185 M Ft
5 szoba
121 m2
Eladó iroda
Eladó iroda

XI. kerület

199 M Ft
184 m2
Eladó téglalakás
Eladó téglalakás

VI. kerület, Belső Terézváros, Jókai utca

87.6 M Ft
3 szoba
75 m2
Eladó családi ház
Eladó családi ház

II. kerület

224.8 M Ft
5 szoba
240 m2
Eladó iroda
Eladó iroda

XI. kerület

219 M Ft
200 m2
Eladó iroda
Eladó iroda

XI. kerület, Lágymányos

65 M Ft
63 m2
Eladó iroda
Eladó iroda

XI. kerület

490 M Ft
16 szoba
520 m2
Eladó iroda
Eladó iroda

XI. kerület, Nádorkert

2117.5 M Ft
82583 m²
4337 m2
Eladó iroda
Eladó iroda

XI. kerület

62.23 M Ft
70 m2
Eladó iroda
Eladó iroda

XI. kerület

285 M Ft
287 m2
Eladó iroda
Eladó iroda

I. kerület, Víziváros, Széna tér

189 M Ft
4 szoba
90 m2
Eladó családi ház
Eladó családi ház

XXII. kerület, Budafok, Baross utca

222 M Ft
6 + 1 szoba
200 m2
Eladó panellakás
Eladó panellakás

XX. kerület, Pesterzsébet-szabótelep

65 M Ft
2 + 1 szoba
68 m2
Eladó téglalakás
Eladó téglalakás

VI. kerület, Külső Terézváros, Szófia utca

112.9 M Ft
4 szoba
103 m2

Falusi CSOK ingatlanok

Eladó családi ház
Eladó családi ház

Pusztamonostor

22 M Ft
3 szoba
86 m2
Eladó családi ház
Eladó családi ház

Kaposgyarmat

695 M Ft
6 szoba
610 m2
Eladó családi ház
Eladó családi ház

Gönyű

111.951 M Ft
5 szoba
105 m2
Eladó családi ház
Eladó családi ház

Bátmonostor

22.9 M Ft
3 szoba
82 m2
Eladó családi ház
Eladó családi ház

Bakonycsernye

39 M Ft
3 szoba
350 m2
Eladó családi ház
Eladó családi ház

Egerág

129 M Ft
5 szoba
178 m2
Eladó családi ház
Eladó családi ház

Tárkány

5.9 M Ft
3 szoba
80 m2
Eladó családi ház
Eladó családi ház

Recsk

28 M Ft
3 szoba
91 m2