Avico Greentop

Eladó ipari ingatlan
Szolnok, Tiszaliget, Mártírok útja

+ 11 kép 1/14
59 900 000 Ft59.9 M Ft 369 753 Ft/m2
162 m²
építés éve:2016

Részletes adatok

Fűtés: Gázkazán
Energetikai besorolás: Nem adta meg a hirdető

Az OTP Bank lakáshitel ajánlataFizetett hirdetés

+36 1 690
Szántóné János Ildikó
Duna House - Galagonya utca

Érdekel az OTP Bank kedvezményes lakáshitel ajánlata? *

* A kérdésre „Igen” válasz bejelölése esetén, az „Üzenet küldése” gombra kattintva kijelentem, hogy az OTP Bank Nyrt. Adatkezelési tájékoztatójának tartalmát megismertem és tudomásul vettem.

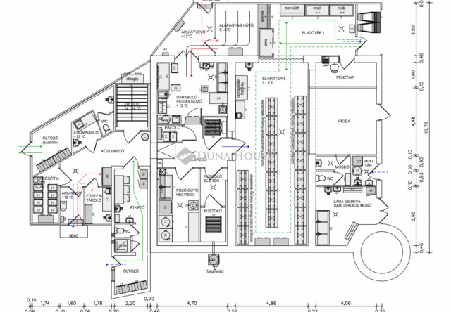
Eladó ipari ingatlan leírása

Szolnokon, a Belváros közelében, ipari környezetben eladó egy kb. 273 m² alapterületű, több helyiségből álló ipari épület zárt, telephely jellegű területen.

Az ingatlan korábban üzemként működött, kialakítása és belső technológiai tereinek rendszere miatt elsősorban hűtési igényű tevékenységhez, élelmiszer- vagy logisztikai háttérfunkcióhoz, raktározáshoz, feldolgozó vagy csomagoló tevékenységhez lehet alkalmas.

Az épület körbejárható, több bejárattal rendelkezik, ami telephelyi használatnál, árumozgatásnál vagy több funkció elkülönítésénél jelentős előny.

Épület

Kb. 273 m² alapterületű, több helyiségből álló ipari épület.

A jelenlegi kialakítás:
    elkülönített árufeldolgozásra/ hűtésre/ raktározásra alkalmas terek
    elkülönített üzemi gyártó/ rakterek
    tárolók
    öltözők
    zuhanyzók és külön helyiségekben WC-k
    pihenő helyiség

Az épület belső válaszfalainak jelentős része szendvicspanel szerkezetű, így a főfalak kivételével a belső terek viszonylag szabadon alakíthatók, a funkció könnyen átszervezhető.

Az épület központi fűtéssel rendelkezik (gázkazán).

Fejlesztési lehetőség

Az épület felett jelenleg kb. 162 m² szerkezeti bővítés található, amely befejezésre és szabad kialakításra vár.

A meglévő szerkezet lehetőséget ad további:
üzemi terület
raktár
iroda
technológiai tér
kialakítására, így az ingatlan lépcsőzetesen fejleszthető telephelyként is hasznosítható.

Megközelítés
Az épület körbejárható, ami telephelyi logisztika, árumozgatás vagy több külön funkció elhelyezése esetén praktikus kialakítást biztosít.

Az ingatlan zárt telephelyen belül helyezkedik el, ipari környezetben, Szolnok Belvárosának és a Tisza-part közelében.Szolnok az Alföld közepén, az M4 autópálya mellett található. Az ingatlan Szolnok belvárosához közel, ipari övezetben helyezkedik el.

A Budapest Liszt Ferenc Nemzetközi Repülőtér autóval kb. 90 km, amely forgalomtól függően kb. 55 perc alatt elérhető.

A telephely az M0 autóúttól kb. 70 km távolságra található, így a budapesti körgyűrűn keresztül az országos autópálya-hálózat gyorsan elérhető. Az M4 gyorsforgalmi út és a 4-es főút közelsége biztosítja a Budapest-Szolnok-kelet-magyarországi irányú áruszállítás hatékony kapcsolatát.

Közművek
ipari áram
víz
gáz
kiépített központi fűtés
Az ár nettó vételár, az ÁFÁ-t nem tartalmazza.

Ajánlom
hűtési vagy temperált technológiát igénylő tevékenységhez
raktár és logisztikai funkcióra
élelmiszer- vagy feldolgozóipari háttértevékenységhez
telephelyet kereső vállalkozásoknak
fejlesztési potenciált kereső befektetőknek

Befektetői szempont

Az ingatlan egyik előnye a jelenlegi üzemi infrastruktúra és a továbbfejleszthető szerkezet együttes megléte.

A meglévő épület azonnal használatba vehető telephelyként vagy raktárként, miközben a felső szerkezet befejezésével a hasznos terület tovább növelhető. Ez lehetőséget ad fokozatos fejlesztési stratégiára, amely során az alsó szintek már működhetnek vagy bérbe adhatók, míg a felső rész később kerül kialakításra.
Telephelyet, raktárt vagy ipari ingatlant kereső vállalkozások és befektetők számára egyaránt jó lehetőség.
A meglévő infrastruktúra és a további fejlesztési potenciál miatt az ingatlan hosszú távon is értéket képvisel.

Amennyiben az ingatlan felkeltette érdeklődését, keressen kérdésével vagy megtekintési szándékával bizalommal.Rugalmas időbeosztással mutatom az ingatlant.

Hirdetés feltöltve: 2026. 03. 12. Utoljára módosítva: 2026. 04. 01.

Ipari ingatlanok ára Szolnokon

Ebből az összehasonlításból megtudhatod, hogyan viszonyul a lakás ára a környékbeli ipari ingatlanok átlagos árához. Ez nem azt jelenti, hogy ennyivel olcsóbb vagy drágább, mint amennyit a lakás ér, hanem hogy ennyivel tér el a környékbeli átlagtól.

Ennek a m² ára
Szolnok m² ár
370 e Ft
267 e Ft -38%
Ennek az ára
Szolnok átlagár
59.9 M Ft m Ft
140.3 m Ft 57%

Az ingatlan elhelyezkedése

Cím: Szolnok, Tiszaliget, Mártírok útja

Eladó ipari ingatlanok a környékről

Szolnok
Eladó ipari ingatlan

Szolnok

140 M Ft
1200 m²
3800 m²
Szolnok
Eladó ipari ingatlan

Szolnok

22 M Ft
32 m²
Szolnok
Eladó ipari ingatlan

Szolnok

34.99 M Ft
4943 m²
633 m²
Kisújszállás
Eladó ipari ingatlan

Kisújszállás

100 M Ft
1 m²
Karcag
Eladó ipari ingatlan

Karcag

38.9 M Ft
1 szoba
230 m²
Szolnok
Eladó ipari ingatlan

Szolnok

180 M Ft
600 m²
Szolnok
Eladó ipari ingatlan

Szolnok

315 M Ft
450 m²
1141 m²
Szolnok, Nagyváros, Mártírok útja 25
Eladó ipari ingatlan

Szolnok

99.99 M Ft
510 m²
510 m²
Szolnok
Eladó ipari ingatlan

Szolnok

54.9 M Ft
4990 m²
4990 m²
Karcag, Bodza 12
Eladó ipari ingatlan

Karcag

240 M Ft
2 ha
800 m²
Jászberény
Eladó ipari ingatlan

Jászberény

799 M Ft
2.05 ha
8000 m²
Martfű
Eladó ipari ingatlan

Martfű

65.5 M Ft
8 szoba
407 m²
Szolnok
Eladó ipari ingatlan

Szolnok

315 M Ft
450 m²
1141 m²
Tiszaörs
Eladó ipari ingatlan

Tiszaörs

79 M Ft
2075 m²
149 m²
Szolnok
Eladó ipari ingatlan

Szolnok

499 M Ft
2 szoba
914 m²
Szolnok
Eladó ipari ingatlan

Szolnok

34.99 M Ft
2 szoba
76 m²
Szolnok
Eladó ipari ingatlan

Szolnok

478 M Ft
5.95 ha
5.95 ha
Szolnok, Tiszaliget, Boldog Sándor István körút
Eladó ipari ingatlan

Szolnok

3.45 M Ft
69 m²
Újszász
Eladó ipari ingatlan

Újszász

95 M Ft
5.11 ha
5.11 ha
Szolnok, Thököly út 115
Eladó ipari ingatlan

Szolnok

70 M Ft
2550 m²
2550 m²
Nagyiván
Eladó ipari ingatlan

Nagyiván

99.5 M Ft
1.09 ha
7000 m²
Szolnok
Eladó ipari ingatlan

Szolnok

180 M Ft
600 m²
Szolnok, Nagyváros, Mártírok útja 25
Eladó ipari ingatlan

Szolnok

99.99 M Ft
510 m²
510 m²
Szolnok, Thököly út 115
Eladó ipari ingatlan

Szolnok

70 M Ft
2550 m²
2550 m²

Falusi CSOK ingatlanok

Elek
Eladó családi ház

Elek

18 M Ft
4 szoba
180 m²
Balatonszepezd
Eladó családi ház

Balatonszepezd

189 M Ft
3 szoba
125 m²
Gölle
Eladó családi ház

Gölle

29.9 M Ft
2 szoba
60 m²
Tápiószőlős
Eladó családi ház

Tápiószőlős

9.5 M Ft
2 szoba
46 m²
Isztimér
Eladó családi ház

Isztimér

29.5 M Ft
3 szoba
83 m²
Gesztely
Eladó családi ház

Gesztely

12.5 M Ft
3 szoba
65 m²
Marcalgergelyi
Eladó családi ház

Marcalgergelyi

31 M Ft
2 + 1 szoba
120 m²
Szigetcsép
Eladó családi ház

Szigetcsép

158.9 M Ft
5 szoba
176 m²