Eladó ipari ingatlan
Szigetszentmiklós

+ 7 kép 1/10
78 000 000 Ft78 M Ft 408 377 Ft/m2
191 m2
építés éve:2024

Részletes adatok

Állapot: Újszerű
Fűtés: Egyéb
Közmű: Víz, Villany, Csatorna
Energetikai besorolás: Nem adta meg a hirdető

Az OTP Bank lakáshitel ajánlataFizetett hirdetés

+36 70 423
Hackenberger Rita
referens

Érdekel az OTP Bank kedvezményes lakáshitel ajánlata? *

* A kérdésre „Igen” válasz bejelölése esetén, az „Üzenet küldése” gombra kattintva kijelentem, hogy az OTP Bank Nyrt. Adatkezelési tájékoztatójának tartalmát megismertem és tudomásul vettem.

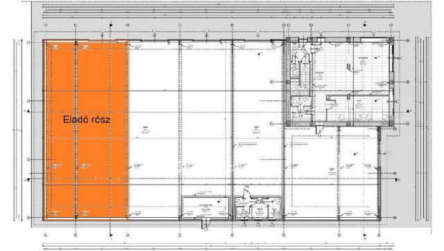
Eladó ipari ingatlan leírása

***IPARI INGATLAN ELADÓ SZIGETSZENTMIKLÓSON! RAKTÁRNAK/CSARNOKNAK TÖKÉLETES!***KAVOSZ HITEL FELVEHETŐ!***

Pest megyében, Szigetszentmiklóson, autópálya közeli elhelyezkedéssel eladó egy 2024-ben épült, modern ipari ingatlan, amely kiválóan alkalmas raktározásra, csarnoknak vagy műhelynek is.

Az épület 10 cm vastag szendvicspanelből készült, így energiahatékony és korszerű szerkezetű.
A 6 méteres belmagasság lehetővé teszi galéria kialakítását, amellyel akár további ~100 négyzetméter hasznos terület nyerhető.
Az ingatlan albetétesítve van, ezért hitelképes, és jogilag rendezett, önálló helyrajzi számmal rendelkezik.
Az ingatlanhoz 2 gépkocsibeálló is tartozik zárt telephelyen.
Mivel ez az utolsó egység az ingatlanban, így az épület mögött kb 400 négyzetméteres telekrész is hasznosítható megállapodás alapján földhasználati díj ellenében.

Ideális választás vállalkozásoknak, akik új telephelyet, raktárt vagy gyártócsarnokot keresnek Szigetszentmiklós frekventált, mégis jól megközelíthető részén.
A kínálatunkból választott ingatlan finanszírozásához kedvezményes hitel- és lízingkonstrukciókat kínálunk. Az adásvételi szerződés megkötéséhez igény szerint megbízható ügyvédi közreműködést biztosítunk, és segítséget nyújtunk az adásvételhez kapcsolódó ügyek intézéséhez. Amennyiben felkeltettem érdeklődését, keressen bizalommal, akár hétvégén is.
Referenciaszám: M316299

Hirdetés feltöltve: 2025. 10. 29. Utoljára módosítva: 2025. 10. 29.

Ipari ingatlanok ára Szigetszentmiklóson

Ebből az összehasonlításból megtudhatod, hogyan viszonyul a lakás ára a környékbeli ipari ingatlanok átlagos árához. Ez nem azt jelenti, hogy ennyivel olcsóbb vagy drágább, mint amennyit a lakás ér, hanem hogy ennyivel tér el a környékbeli átlagtól.

Ennek a m² ára
Szigetszentmiklós m² ár
408 e Ft
146 e Ft -179%
Ennek az ára
Szigetszentmiklós átlagár
78 M Ft m Ft
307 m Ft 75%

Az ingatlan elhelyezkedése

Cím: Szigetszentmiklós

Eladó ingatlanok a környékről

Eladó ipari ingatlan
Eladó ipari ingatlan

Szigetszentmiklós

748 M Ft
34010 m²
Eladó ipari ingatlan
Eladó ipari ingatlan

Pusztazámor, Remeteség utca

59.999 M Ft
9998 m²
9998 m2
Eladó ipari ingatlan
Eladó ipari ingatlan

Felsőpakony

695 M Ft
5090 m²
2700 m2
Eladó mezogazdasagi ingatlan
Eladó mezogazdasagi ingatlan

Péteri

11 M Ft
5046 m2
Eladó családi ház
Eladó családi ház

Gyál

87.5 M Ft
3 szoba
64 m2
Eladó ipari ingatlan
Eladó ipari ingatlan

Gyál

224 M Ft
2900 m²
800 m2
Eladó családi ház
Eladó családi ház

Üllő

99.8 M Ft
3 szoba
161 m2
Eladó telek
Eladó telek

Kerepes

25.9 M Ft
1001 m²
Eladó ipari ingatlan
Eladó ipari ingatlan

Vác

779 M Ft
113817 m²
113817 m2
Eladó családi ház
Eladó családi ház

Szigetszentmiklós

291 M Ft
7 szoba
390 m2
Eladó ipari ingatlan
Eladó ipari ingatlan

Szigetszentmiklós

1773.972 M Ft
98554 m2
Eladó ipari ingatlan
Eladó ipari ingatlan

Budaörs

300 M Ft
300 m2
Eladó családi ház
Eladó családi ház

Gyömrő

108 M Ft
4 szoba
93 m2
Eladó ipari ingatlan
Eladó ipari ingatlan

Szigetszentmiklós

800 M Ft
9521 m²
3000 m2
Eladó telek
Eladó telek

Kerepes

26.5 M Ft
550 m²
Eladó ipari ingatlan
Eladó ipari ingatlan

Újhartyán

232.524 M Ft
38754 m2
Eladó ipari ingatlan
Eladó ipari ingatlan

Szigethalom

139 M Ft
1222 m²
950 m2
Eladó családi ház
Eladó családi ház

Halásztelek

69 M Ft
5 szoba
140 m2
Eladó téglalakás
Eladó téglalakás

Gyömrő

94 M Ft
4 szoba
85 m2
Eladó ipari ingatlan
Eladó ipari ingatlan

Vecsés

264 M Ft
6600 m2
Eladó hotel
Eladó hotel

Göd

1050 M Ft
21 szoba
2155 m2
Eladó ipari ingatlan
Eladó ipari ingatlan

Szigetszentmiklós

359.456 M Ft
22466 m²
22466 m2
Eladó ipari ingatlan
Eladó ipari ingatlan

Szigetszentmiklós

730.016 M Ft
45626 m²
45626 m2
Eladó ipari ingatlan
Eladó ipari ingatlan

Felsőpakony

770 M Ft
5090 m²
2700 m2

Falusi CSOK ingatlanok

Eladó ikerház
Eladó ikerház

Balatonakali

165 M Ft
4 szoba
138 m2
Eladó családi ház
Eladó családi ház

Szentmártonkáta

43.9 M Ft
6 szoba
137 m2
Eladó családi ház
Eladó családi ház

Tápióbicske

12.5 M Ft
2 szoba
51 m2
Eladó családi ház
Eladó családi ház

Badacsonytördemic

183.77 M Ft
4 szoba
160 m2
Eladó családi ház
Eladó családi ház

Tiszaroff

15.5 M Ft
2 szoba
63 m2
Eladó családi ház
Eladó családi ház

Németkér

33 M Ft
3 szoba
130 m2
Eladó téglalakás
Eladó téglalakás

Tokaj

149.5 M Ft
2 szoba
61 m2
Eladó családi ház
Eladó családi ház

Tótszerdahely

55.5 M Ft
4 + 2 szoba
160 m2