River Life

Eladó ipari ingatlan
Szentes

+ 15 kép 1/18
137 000 000 Ft137 M Ft 183 400 Ft/m2
747 m²
építés éve:1920

Részletes adatok

Telekméret: 1200 m2
Fűtés: Egyéb
Energetikai besorolás: Nem adta meg a hirdető

Az OTP Bank lakáshitel ajánlataFizetett hirdetés

+36 70 455
Szlovák Ibolya
Csongrád OTP Ingatlanpont Iroda

Érdekel az OTP Bank kedvezményes lakáshitel ajánlata? *

* A kérdésre „Igen” válasz bejelölése esetén, az „Üzenet küldése” gombra kattintva kijelentem, hogy az OTP Bank Nyrt. Adatkezelési tájékoztatójának tartalmát megismertem és tudomásul vettem.

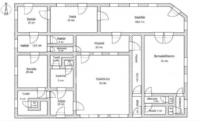
Eladó ipari ingatlan leírása

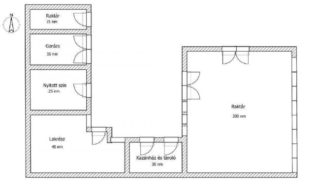
Kizárólag az OTP Ingatlanpont kínálatában! Szentes, Felsőpárton, sokoldalú ingatlan komplexum eladó! Eladásra kínálunk Szentesen, a Felsőpárton egy 747 nm-es, többfunkciós épületkomplexumot, amely számos vállalkozási és hasznosítási lehetőséget rejt magában. A főépület 357 nm, korábban vendéglátóegységként működött, de kialakítása miatt irodai, kereskedelmi vagy gyártási célokra is ideális. Az épületben található utcafrontra nyíló iroda, bemutatóterem és raktárhelyiség, több mosdó, tusoló, konyha valamint gyártó- és kiszolgálóhelyiségek. Minden részegységhez külön vizesblokk tartozik. Az 1200 nm-es telken egy 200 nm-es üzemcsarnok is található, ipari árammal (3×32A, bővíthető 3×65A) felújított világítással. Az udvaron melléképületek, garázs, nyitott szín, valamint egy lakórész is helyet kapott. Ez az ingatlan számtalan lehetőséget kínál, legyen szó vállalkozás indításáról, bővítéséről vagy befektetésről. Ne hagyja ki ezt a kivételes lehetőséget! Kizárólag az OTP Ingatlanpontnál elérhető! Amennyiben az ingatlan felkeltette érdeklődését, hívjon bizalommal és tekintsük meg együtt. Irodánk teljes OTP banki hátterével áll rendelkezésére, egyedi ajánlatokkal, sorban állás nélküli díjmentes ügyintézéssel.
Érdeklődni: Szlovák Ibolya +36704550993

Referencia szám: M316040-ZE

Hirdetés feltöltve: 2026. 04. 21. Utoljára módosítva: 2026. 05. 13.

Ipari ingatlanok ára Szentesen

Ebből az összehasonlításból megtudhatod, hogyan viszonyul a lakás ára a környékbeli ipari ingatlanok átlagos árához. Ez nem azt jelenti, hogy ennyivel olcsóbb vagy drágább, mint amennyit a lakás ér, hanem hogy ennyivel tér el a környékbeli átlagtól.

Ennek a m² ára
Szentes m² ár
183 e Ft
269 e Ft 32%
Ennek az ára
Szentes átlagár
137 M Ft m Ft
157.5 m Ft 13%

Az ingatlan elhelyezkedése

Cím: Szentes

Eladó ingatlanok a környékről

Szeged, Újszeged, Derkovits fasor
Eladó családi ház

Szeged

199 M Ft
5 szoba
160 m²
Szentes
Eladó ipari ingatlan

Szentes

150 M Ft
1220 m²
Hódmezővásárhely
Eladó ipari ingatlan

Hódmezővásárhely

159 M Ft
5060 m²
1567 m²
Szentes
Eladó ipari ingatlan

Szentes

139 M Ft
8547 m²
60 m²
Hódmezővásárhely
Eladó ipari ingatlan

Hódmezővásárhely

150 M Ft
1 szoba
1100 m²
Mindszent
Eladó ipari ingatlan

Mindszent

120 M Ft
1080 m²
Makó
Eladó ipari ingatlan

Makó

3440 M Ft
2.96 ha
7600 m²
Csongrád
Eladó ipari ingatlan

Csongrád

275 M Ft
1000 m²
Szentes
Eladó ipari ingatlan

Szentes

137 M Ft
1200 m²
747 m²
Algyő
Eladó ipari ingatlan

Algyő

148 M Ft
1 szoba
0 m²
Szentes
Eladó ipari ingatlan

Szentes

289 M Ft
5809 m²
2024 m²
Szeged
Eladó téglalakás

Szeged

59.59 M Ft
2 szoba
59 m²
Szeged
Eladó téglalakás

Szeged

75.5 M Ft
4 szoba
66 m²
Szentes
Eladó ipari ingatlan

Szentes

200 M Ft
6.02 ha
3040 m²
Szeged
Eladó ipari ingatlan

Szeged

258.459 M Ft
20.16 ha
250 m²
Szeged
Eladó téglalakás

Szeged

48.364 M Ft
1 szoba
40 m²
Szeged, Tarján lakótelep, Budapesti körút
Eladó panellakás

Szeged

59.9 M Ft
3 szoba
52 m²
Szentes
Eladó ipari ingatlan

Szentes

289 M Ft
5809 m²
2024 m²
Hódmezővásárhely
Eladó ipari ingatlan

Hódmezővásárhely

115 M Ft
4 + 6 szoba
630 m²
Szeged
Eladó panellakás

Szeged

57.9 M Ft
3 szoba
52 m²
Szeged
Eladó téglalakás

Szeged

88 M Ft
4 szoba
84 m²
Makó
Eladó ipari ingatlan

Makó

42 M Ft
2351 m²
0 m²
Szeged
Eladó panellakás

Szeged

58 M Ft
3 szoba
55 m²
Sándorfalva
Eladó családi ház

Sándorfalva

68.5 M Ft
4 szoba
90 m²

Falusi CSOK ingatlanok

Halimba
Eladó családi ház

Halimba

59.9 M Ft
6 szoba
182 m²
Beremend, 7827 Beremend, Petőfi Sándor utca 10
Eladó családi ház

Beremend

11.95 M Ft
1 + 1 szoba
124 m²
Tass
Eladó családi ház

Tass

37 M Ft
2 szoba
75 m²
Röszke
Eladó családi ház

Röszke

69.99 M Ft
4 szoba
99 m²
Tápiószőlős
Eladó családi ház

Tápiószőlős

9.9 M Ft
3 szoba
0 m²
Villány
Eladó családi ház

Villány

31 M Ft
1 szoba
35 m²
Kánya
Eladó családi ház

Kánya

5.5 M Ft
3 szoba
70 m²
Levelek
Eladó családi ház

Levelek

74 M Ft
6 + 1 szoba
190 m²