Stay Family Park

Eladó ipari ingatlan
Szentes

+ 14 kép 1/17
95 000 000 Ft95 M Ft 355 805 Ft/m2
267 m2
építés éve:1950

Részletes adatok

Állapot: Átlagos
Telekméret: 820 m2
Fűtés: Gázkazán
Energetikai besorolás: Nem adta meg a hirdető

Az OTP Bank lakáshitel ajánlataFizetett hirdetés

+36 70 429
Majzik Alexandra
referens

Érdekel az OTP Bank kedvezményes lakáshitel ajánlata? *

* A kérdésre „Igen” válasz bejelölése esetén, az „Üzenet küldése” gombra kattintva kijelentem, hogy az OTP Bank Nyrt. Adatkezelési tájékoztatójának tartalmát megismertem és tudomásul vettem.

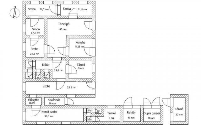
Eladó ipari ingatlan leírása

Kizárólag az OTP Ingatlanpont kínálatában! Szentes, Kíséri városrészen sokoldalú, 267 nm-es ingatlan eladó! Eladásra kínálunk Csongrád-Csanád vármegyében, Szentesen, a Kíséri városrészben egy 267 nm-es épületet, amely számos vállalkozási és hasznosítási lehetőséget rejt magában. Ajánlom irodaházként, sportkomplexumként, kereskedelmi vagy gyártási célokra, illetve akár több lakásos társasház kialakítására is! A városközpont egy karnyújtásnyira, mégis nyugodt környezetben. Telek mérete 820 nm, az udvaron található dupla garázs, raktár, tároló, melléképület, fedett kocsibeállók. Az épület több pontján vizesblokk is ki lett alakítva, így könnyen átalakítható különböző funkciókra. Ez az ingatlan számtalan lehetőséget kínál, legyen szó vállalkozás indításáról, bővítésről vagy befektetésről! Ne hagyja ki ezt a kivételes lehetőséget! Kizárólag az OTP Ingatlanpontnál elérhető! Amennyiben felkeltette érdeklődését, hívjon bizalommal, és tekintsük meg együtt! Irodáink Szentes, Petőfi utca 12. (a buszmegálló felől) és Csongrád, Fő utca 54. szám alatt várja a személyes érdeklődőket. az OTP teljes banki hátterével, egyedi ajánlatokkal, sorban állás nélküli, díjmentes ügyintézéssel áll rendelkezésére. ***VÁLASSZUK KI EGYÜTT AZ ÖNNEK LEGMEGFELELŐBB AJÁNLATOT! BANKI SORBAN ÁLLÁS NÉLKÜL! ***

Hirdetés feltöltve: 2025. 10. 27. Utoljára módosítva: 2025. 11. 02.

Ipari ingatlanok ára Szentesen

Ebből az összehasonlításból megtudhatod, hogyan viszonyul a lakás ára a környékbeli ipari ingatlanok átlagos árához. Ez nem azt jelenti, hogy ennyivel olcsóbb vagy drágább, mint amennyit a lakás ér, hanem hogy ennyivel tér el a környékbeli átlagtól.

Ennek a m² ára
Szentes m² ár
356 e Ft
269 e Ft -32%
Ennek az ára
Szentes átlagár
95 M Ft m Ft
157.5 m Ft 40%

Az ingatlan elhelyezkedése

Cím: Szentes

Eladó ingatlanok a környékről

Eladó ipari ingatlan
Eladó ipari ingatlan

Makó

42 M Ft
2351 m²
Eladó ipari ingatlan
Eladó ipari ingatlan

Hódmezővásárhely

130 M Ft
4150 m²
1800 m2
Eladó családi ház
Eladó családi ház

Szeged

34.9 M Ft
1 szoba
42 m2
Eladó családi ház
Eladó családi ház

Szeged

44.9 M Ft
1 szoba
44 m2
Eladó téglalakás
Eladó téglalakás

Szeged

55.4 M Ft
2 szoba
49 m2
Eladó ipari ingatlan
Eladó ipari ingatlan

Csongrád

275 M Ft
1000 m2
Eladó ipari ingatlan
Eladó ipari ingatlan

Makó

1250 M Ft
5200 m²
2670 m2
Eladó családi ház
Eladó családi ház

Szeged

199 M Ft
7 szoba
223 m2
Eladó családi ház
Eladó családi ház

Hódmezővásárhely

99 M Ft
7 szoba
190 m2
Eladó családi ház
Eladó családi ház

Szatymaz

69.9 M Ft
4 szoba
150 m2
Eladó családi ház
Eladó családi ház

Makó, Thököly utca 6

53 M Ft
3 szoba
80 m2
Eladó ipari ingatlan
Eladó ipari ingatlan

Szeged

11821.85 M Ft
272171 m²
Eladó ipari ingatlan
Eladó ipari ingatlan

Szentes

147.3 M Ft
7856 m2
Eladó családi ház
Eladó családi ház

Szeged

69.9 M Ft
3 szoba
85 m2
Eladó ipari ingatlan
Eladó ipari ingatlan

Pusztamérges

69 M Ft
400 m2
Eladó ipari ingatlan
Eladó ipari ingatlan

Hódmezővásárhely

118 M Ft
1388 m²
600 m2
Eladó ipari ingatlan
Eladó ipari ingatlan

Algyő

148 M Ft
1 szoba
Eladó ipari ingatlan
Eladó ipari ingatlan

Szentes

139 M Ft
8547 m²
60 m2
Eladó téglalakás
Eladó téglalakás

Szeged

45 M Ft
2 szoba
52 m2
Eladó családi ház
Eladó családi ház

Szeged

210 M Ft
6 szoba
210 m2
Eladó ipari ingatlan
Eladó ipari ingatlan

Hódmezővásárhely

159 M Ft
5060 m²
1567 m2
Eladó panellakás
Eladó panellakás

Szeged

74 M Ft
2 + 2 szoba
72 m2
Eladó ipari ingatlan
Eladó ipari ingatlan

Hódmezővásárhely

10 M Ft
380 m2
Eladó téglalakás
Eladó téglalakás

Szeged, Alsóváros, Homok utca

92.5 M Ft
3 szoba
65 m2

Falusi CSOK ingatlanok

Eladó családi ház
Eladó családi ház

Ceglédbercel, Iskola utca

79.99 M Ft
5 szoba
90 m2
Eladó családi ház
Eladó családi ház

Nyékládháza

75 M Ft
4 szoba
140 m2
Eladó családi ház
Eladó családi ház

Pölöskefő

19.9 M Ft
2 szoba
96 m2
Eladó családi ház
Eladó családi ház

Meggyeskovácsi

22.5 M Ft
3 szoba
88 m2
Eladó családi ház
Eladó családi ház

Tömörkény

8.9 M Ft
2 szoba
80 m2
Eladó családi ház
Eladó családi ház

Tésenfa, Kossuth utca 23/a

5.55 M Ft
1 + 1 szoba
109 m2
Eladó családi ház
Eladó családi ház

Ságvár

64.9 M Ft
3 szoba
70 m2
Eladó családi ház
Eladó családi ház

Kenyeri

39.9 M Ft
3 szoba
94 m2