Oasis Residence

Eladó ipari ingatlan
Kecskemét

+ 9 kép 1/12
379 900 000 Ft379.9 M Ft 643 898 Ft/m2
590 m²

Részletes adatok

Állapot: Felújított
Fűtés: Gázkazán
Energetikai besorolás: Nem adta meg a hirdető

Az OTP Bank lakáshitel ajánlataFizetett hirdetés

+36 30 724
Fricskáné Oltai Katalin
HOUSE36 Ingatlanbázis Kft.

Érdekel az OTP Bank kedvezményes lakáshitel ajánlata? *

* A kérdésre „Igen” válasz bejelölése esetén, az „Üzenet küldése” gombra kattintva kijelentem, hogy az OTP Bank Nyrt. Adatkezelési tájékoztatójának tartalmát megismertem és tudomásul vettem.

Eladó ipari ingatlan leírása

ELADÓ Kecskeméten a Mindszenti krt.-ról könnyen megközelíthető, igényesen felújított telephely raktárral!

Jellemzői:
- Besorolás: Gksz
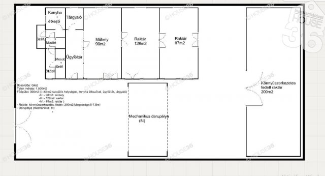
- Telek mérete: 1.500 m2
- Főépület: 390 m2 (I.: - 67 m2: szociális helységek, konyha, ügyféltér, tárgyaló
II.: - 98 m2: műhely
III.: - 128 m2: raktár
IV.: - 97 m2: raktár)
- Raktár: könnyűszerkezetes, fedett : 200 m2 (Magassága:5-7,5 m)
- Daru pálya: mechanikus (8t)
- Teljesen leburkolt terület
- Elektromos kapu
- Kamera rendszer + riasztó
- 2022-ben műszaki (vezeték-,nyílászáró- és tetőcsere, szigetelés, fűtéskorszerűsítés)- és esztétikai felújítások (burkolat- és konyhabútorcsere, fürdőszoba ill.festés)
- Klimatizált helyiségek

Az eladási ár az ÁFÁ-t nem tartalmazza!

Figyelem az adatlap megbízónktól kapott adatok alapján készült, pontosságáért felelősséget nem tudunk vállalni! Szolgáltatásaink Kereső ügyfeleink számára INGYENESEK! Amennyiben eladó-kiadó ingatlana van vagy finanszírozási megoldást keres, hívjon, megtaláljuk a legjobb lehetőséget Önnek! A HOUSE36 kínálatában található összes ingatlannal kapcsolatban tudok felvilágosítást nyújtani!
Hívjon bizalommal!
Az iroda legfrissebb, aktuális kínálatát a HOUSE36 saját weboldalán találja!

Hirdetés feltöltve: 2026. 03. 20. Utoljára módosítva: 2026. 05. 24.

Ipari ingatlanok ára Kecskeméten

Ebből az összehasonlításból megtudhatod, hogyan viszonyul a lakás ára a környékbeli ipari ingatlanok átlagos árához. Ez nem azt jelenti, hogy ennyivel olcsóbb vagy drágább, mint amennyit a lakás ér, hanem hogy ennyivel tér el a környékbeli átlagtól.

Ennek a m² ára
Kecskemét m² ár
644 e Ft
373 e Ft -73%
Ennek az ára
Kecskemét átlagár
379.9 M Ft m Ft
288.8 m Ft -32%

Az ingatlan elhelyezkedése

Cím: Kecskemét

Eladó ipari ingatlanok a környékről

Kecskemét
Eladó ipari ingatlan

Kecskemét

1493 M Ft
3.88 ha
Kecskemét, Szent István-város, Klebelsberg Kuno utca
Eladó ipari ingatlan

Kecskemét

104.9 M Ft
3 ha
Kecskemét
Eladó ipari ingatlan

Kecskemét

170 M Ft
9144 m²
Kisszállás
Eladó ipari ingatlan

Kisszállás

129 M Ft
1 szoba
1800 m²
Kecskemét
Eladó ipari ingatlan

Kecskemét

420 M Ft
700 m²
Szalkszentmárton
Eladó ipari ingatlan

Szalkszentmárton

145 M Ft
785 m²
250 m²
Kecskemét
Eladó ipari ingatlan

Kecskemét

105 M Ft
6.26 ha
Kecskemét
Eladó ipari ingatlan

Kecskemét

300 M Ft
3219 m²
Kecskemét
Eladó ipari ingatlan

Kecskemét

1615.5 M Ft
1.3 ha
6700 m²
Kunadacs
Eladó ipari ingatlan

Kunadacs

690 M Ft
2000 m²
Kecskemét
Eladó ipari ingatlan

Kecskemét

140 M Ft
4 ha
2300 m²
Kecskemét
Eladó ipari ingatlan

Kecskemét

130 M Ft
3.54 ha
Kecskemét
Eladó ipari ingatlan

Kecskemét

500 M Ft
6000 m²
2000 m²
Ballószög
Eladó ipari ingatlan

Ballószög

94.9 M Ft
400 m²
Kecskemét
Eladó ipari ingatlan

Kecskemét

249.99 M Ft
3000 m²
950 m²
Kecskemét
Eladó ipari ingatlan

Kecskemét

95 M Ft
4616 m²
640 m²
Kecskemét
Eladó ipari ingatlan

Kecskemét

140 M Ft
4 ha
2300 m²
Kecskemét
Eladó ipari ingatlan

Kecskemét

22.9 M Ft
2669 m²
Kecskemét
Eladó ipari ingatlan

Kecskemét

249.99 M Ft
3000 m²
950 m²
Foktő
Eladó ipari ingatlan

Foktő

98 M Ft
936 m²
Kecskemét
Eladó ipari ingatlan

Kecskemét

150 M Ft
3159 m²
Tiszakécske
Eladó ipari ingatlan

Tiszakécske

152 M Ft
1000 m²
Kisszállás
Eladó ipari ingatlan

Kisszállás

129 M Ft
2800 m²
Kecskemét
Eladó ipari ingatlan

Kecskemét

500 M Ft
6000 m²
2000 m²

Falusi CSOK ingatlanok

Hajós
Eladó családi ház

Hajós

49.5 M Ft
6 szoba
394 m²
Újhartyán
Eladó családi ház

Újhartyán

59.9 M Ft
4 szoba
75 m²
Balatonszepezd
Eladó családi ház

Balatonszepezd

299 M Ft
5 szoba
220 m²
Andornaktálya
Eladó családi ház

Andornaktálya

31.9 M Ft
2 szoba
60 m²
Arló, Mátyás Király utca
Eladó családi ház

Arló

14.99 M Ft
2 szoba
66 m²
Szentmártonkáta
Eladó családi ház

Szentmártonkáta

53 M Ft
2 szoba
120 m²
Patca
Eladó családi ház

Patca

21.9 M Ft
4 szoba
104 m²
Fertőszentmiklós
Eladó családi ház

Fertőszentmiklós

249 M Ft
3 szoba
1200 m²