BAM Living

Eladó ipari ingatlan
Kecskemét

+ 9 kép 1/12
379 900 000 Ft379.9 M Ft 643 898 Ft/m2
590 m2

Részletes adatok

Állapot: Átlagos
Fűtés: Egyéb
Energetikai besorolás: Nem adta meg a hirdető

Az OTP Bank lakáshitel ajánlataFizetett hirdetés

+36 30 161
Göbölyös Edit
HOUSE36 Ingatlanbázis Kft.

Érdekel az OTP Bank kedvezményes lakáshitel ajánlata? *

* A kérdésre „Igen” válasz bejelölése esetén, az „Üzenet küldése” gombra kattintva kijelentem, hogy az OTP Bank Nyrt. Adatkezelési tájékoztatójának tartalmát megismertem és tudomásul vettem.

Eladó ipari ingatlan leírása

ELADÓ Kecskeméten a Mindszenti krt.-ról könnyen megközelíthető, igényesen felújított telephely raktárral!

Jellemzői:
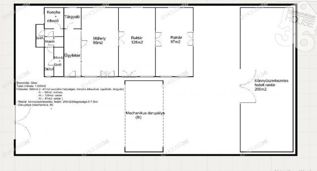
- Besorolás: Gksz
- Telek mérete: 1.500 m2
- Főépület: 390 m2 (I.: - 67 m2: szociális helységek, konyha, ügyféltér, tárgyaló
II.: - 98 m2: műhely
III.: - 128 m2: raktár
IV.: - 97 m2: raktár)
- Raktár: könnyűszerkezetes, fedett : 200 m2 (Magassága:5-7,5 m)
- Daru pálya: mechanikus (8t)
- Teljesen leburkolt terület
- Elektromos kapu
- Kamera rendszer + riasztó
- 2022-ben műszaki (vezeték-,nyílászáró- és tetőcsere, szigetelés, fűtéskorszerűsítés)- és esztétikai felújítások (burkolat- és konyhabútorcsere, fürdőszoba ill.festés)
- Klimatizált helyiségek

Az eladási ár az ÁFÁ-t nem tartalmazza!

Figyelem az adatlap megbízónktól kapott adatok alapján készült, pontosságáért felelősséget nem tudunk vállalni! Szolgáltatásaink Kereső ügyfeleink számára INGYENESEK! Amennyiben eladó-kiadó ingatlana van vagy finanszírozási megoldást keres, hívjon, megtaláljuk a legjobb lehetőséget Önnek! A HOUSE36 kínálatában található összes ingatlannal kapcsolatban tudok felvilágosítást nyújtani!
Hívjon bizalommal!
Az iroda legfrissebb, aktuális kínálatát a HOUSE36 saját weboldalán találja!

Hirdetés feltöltve: 2025. 11. 13. Utoljára módosítva: 2025. 11. 13.

Ipari ingatlanok ára Kecskeméten

Ebből az összehasonlításból megtudhatod, hogyan viszonyul a lakás ára a környékbeli ipari ingatlanok átlagos árához. Ez nem azt jelenti, hogy ennyivel olcsóbb vagy drágább, mint amennyit a lakás ér, hanem hogy ennyivel tér el a környékbeli átlagtól.

Ennek a m² ára
Kecskemét m² ár
644 e Ft
374 e Ft -72%
Ennek az ára
Kecskemét átlagár
379.9 M Ft m Ft
285.9 m Ft -33%

Az ingatlan elhelyezkedése

Cím: Kecskemét

Eladó ipari ingatlanok a környékről

Eladó ipari ingatlan
Eladó ipari ingatlan

Kecskemét

1100 M Ft
6500 m2
Eladó ipari ingatlan
Eladó ipari ingatlan

Kecskemét

500 M Ft
6000 m²
2000 m2
Eladó ipari ingatlan
Eladó ipari ingatlan

Pálmonostora

70 M Ft
1300 m2
Eladó ipari ingatlan
Eladó ipari ingatlan

Kecskemét

140 M Ft
40000 m²
2300 m2
Eladó ipari ingatlan
Eladó ipari ingatlan

Kecskemét

320 M Ft
960 m2
Eladó ipari ingatlan
Eladó ipari ingatlan

Kecskemét

249.99 M Ft
3000 m²
950 m2
Eladó ipari ingatlan
Eladó ipari ingatlan

Tiszakécske

152 M Ft
1000 m2
Eladó ipari ingatlan
Eladó ipari ingatlan

Foktő

98 M Ft
936 m2
Eladó ipari ingatlan
Eladó ipari ingatlan

Kecskemét

75 M Ft
1400 m²
720 m2
Eladó ipari ingatlan
Eladó ipari ingatlan

Szalkszentmárton

150 M Ft
785 m²
250 m2
Eladó ipari ingatlan
Eladó ipari ingatlan

Kecskemét

399 M Ft
1200 m2
Eladó ipari ingatlan
Eladó ipari ingatlan

Kecskemét

180 M Ft
1147 m2
Eladó ipari ingatlan
Eladó ipari ingatlan

Kiskunfélegyháza

260 M Ft
1000 m2
Eladó ipari ingatlan
Eladó ipari ingatlan

Kecskemét

1746 M Ft
13000 m²
6700 m2
Eladó ipari ingatlan
Eladó ipari ingatlan

Bácsszőlős

230.084 M Ft
12 szoba
794 m2
Eladó ipari ingatlan
Eladó ipari ingatlan

Kecskemét

22.9 M Ft
2669 m2
Eladó ipari ingatlan
Eladó ipari ingatlan

Kecskemét

500 M Ft
6000 m²
2000 m2
Eladó ipari ingatlan
Eladó ipari ingatlan

Kecskemét

1100 M Ft
6500 m2
Eladó ipari ingatlan
Eladó ipari ingatlan

Kecskemét, Szent István-város, Klebelsberg Kuno utca

104.9 M Ft
29996 m2
Eladó ipari ingatlan
Eladó ipari ingatlan

Kecskemét

1493 M Ft
38800 m2
Eladó ipari ingatlan
Eladó ipari ingatlan

Kecskemét

249.99 M Ft
3000 m²
950 m2
Eladó ipari ingatlan
Eladó ipari ingatlan

Kecskemét

75 M Ft
1400 m²
720 m2
Eladó ipari ingatlan
Eladó ipari ingatlan

Kecskemét

22.9 M Ft
2669 m2
Eladó ipari ingatlan
Eladó ipari ingatlan

Kecskemét

130 M Ft
35381 m2

Falusi CSOK ingatlanok

Eladó családi ház
Eladó családi ház

Hegyeshalom

85 M Ft
4 + 1 szoba
123 m2
Eladó családi ház
Eladó családi ház

Balatonfenyves

119 M Ft
5 szoba
142 m2
Eladó családi ház
Eladó családi ház

Jászkarajenő

19.9 M Ft
3 szoba
81 m2
Eladó családi ház
Eladó családi ház

Sárosd

21.9 M Ft
3 szoba
86 m2
Eladó családi ház
Eladó családi ház

Gyömöre

45.99 M Ft
2 szoba
118 m2
Eladó családi ház
Eladó családi ház

Nádasd

84.9 M Ft
4 szoba
143 m2
Eladó családi ház
Eladó családi ház

Szigliget

299 M Ft
3 szoba
95 m2
Eladó családi ház
Eladó családi ház

Balatonfenyves

430 M Ft
4 szoba
274 m2