Astora Art House

Eladó ipari ingatlan
Dunaharaszti

+ 13 kép 1/16
788 000 000 Ft788 M Ft 70 251 Ft/m2
11217 m2

Részletes adatok

Telekméret: 11217 m2
Fűtés: Egyéb
Energetikai besorolás: Nem adta meg a hirdető

Az OTP Bank lakáshitel ajánlataFizetett hirdetés

+36 70 269
Göbölyös Judit
referens

Érdekel az OTP Bank kedvezményes lakáshitel ajánlata? *

* A kérdésre „Igen” válasz bejelölése esetén, az „Üzenet küldése” gombra kattintva kijelentem, hogy az OTP Bank Nyrt. Adatkezelési tájékoztatójának tartalmát megismertem és tudomásul vettem.

Eladó ipari ingatlan leírása

Dunaharaszti iparterületén telephely minősítésű ingatlan, számos felhasználói és fejlesztési lehetőséggel eladó!

Kereskedelmi, szolgáltató gazdasági terület, rajta épített háromszintes felépítmény és fejlesztési terület!

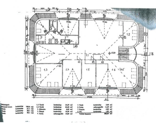
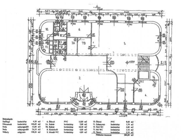
A 11.217 m2-es sík, teljes közművel ellátott telekterületen elhelyezkedő többfunkciós 1162 m2-es ingatlan mellett, a jelenleg érvényes beépítési szabályzatnak megfelelően igény esetén további építmények elhelyezésének lehetősége adott.

A MEGLÉVŐ ÉPÍTMÉNY KISEBB TERÜLETTEL IS MEGVÁSÁROLHATÓ (kb. 6000 nm)!

FEJLESZTÉSI LEHETŐSÉG:
Az ingatlan Gksz-2 építési övezetbe sorolt. Az építési szabályozás alapján iparitermelő, vagy raktár funkciójú fejlesztésre is alkalmas.

Az ingatlan területe 11.217m2, beépíthetősége 45%, így még 5047 m2 építhető be.

Az építménymagasság a szomszédos területen kialakult legmagasabb épületekhez igazodik. Az itt álló legmagasabb épületek kb. 10 méteres homlokzatmagasságúak, amely földszint + 2 emeletnek felel meg.

Engedélyezett kamion és buszközlekedés!

AZ IRODAÉPÜLET FŐBB JELLEMZŐI:

- 1162 m2 alapterületű, két szintes (+pince) néhány éve felújított
épület (szintenként 380 m2),
- Porotherm 38-as falazat, bitumenes zsindely héj,
- szintenként korszerű vizesblokk és irodai konyha,
- saját hőközponttal rendelkezik az épület + klímák,
- tűz és riasztórendszer,
- kiépített LAN-kábel hálózat és telefonhálózat,
- kerítéssel határolt zöldterület,
- parkosított kert, több gépjármű részére biztosított parkoló,

AZ INGATLAN ELHELYEZKEDÉSÉNEK ELŐNYEI:

A Dunaharaszti ipari park nyújtotta lehetőségek számos előnyt kínálnak. Nagyfeszültségű csatlakozási lehetőség. Fejlett infrastruktúra. A Dunától való távolság lehetővé teszi a vízi közlekedés előnyök kiaknázását.

A frekventált ipari park megközelítése aszfaltozott közúton és üzemi úton, M0 autóútról 51-es számú útra letérve, könnyen megközelíthető.
Dunaharaszti-Budapest centrum= 20 km
Dunaharaszti-M0 autópálya= 2 km.

Amivel segítjük az Ön ingatlanvásárlását:
- ingyenes hitelügyintézés,
- jogi háttér,
- földhivatali ügyintézés,
- energetikai tanúsítvány,
- a vevő számára az ingatlanközvetítés ingyenes.
Irodánk 27 éves szakmai tapasztalattal áll ügyfelei rendelkezésére!

Várom szíves megkeresését! ...TOVÁBBI, TÖBBEZRES INGATLAN KÍNÁLAT: www.gdn-ingatlan.hu - GDN azonosító: 388686

Hirdetés feltöltve: 2025. 10. 20. Utoljára módosítva: 2025. 11. 05.

Ipari ingatlanok ára Dunaharasztin

Ebből az összehasonlításból megtudhatod, hogyan viszonyul a lakás ára a környékbeli ipari ingatlanok átlagos árához. Ez nem azt jelenti, hogy ennyivel olcsóbb vagy drágább, mint amennyit a lakás ér, hanem hogy ennyivel tér el a környékbeli átlagtól.

Ennek a m² ára
Dunaharaszti m² ár
70 e Ft
1799 e Ft 96%
Ennek az ára
Dunaharaszti átlagár
788 M Ft m Ft
150.7 m Ft -423%

Az ingatlan elhelyezkedése

Cím: Dunaharaszti

Eladó ingatlanok a környékről

Eladó ikerház
Eladó ikerház

Üröm, Üröm, Rókahegy lakópark

198 M Ft
5 szoba
125 m2
Eladó ipari ingatlan
Eladó ipari ingatlan

Monor, Csévharaszt

780 M Ft
160000 m2
Eladó ipari ingatlan
Eladó ipari ingatlan

Vác

779 M Ft
113817 m²
113817 m2
Eladó ipari ingatlan
Eladó ipari ingatlan

Monorierdő

500 M Ft
50000 m²
2840 m2
Eladó ikerház
Eladó ikerház

Üröm, Üröm,Völgyliget II. Lakópark

140 M Ft
4 szoba
128 m2
Eladó családi ház
Eladó családi ház

Dabas

52 M Ft
2 + 2 szoba
90 m2
Eladó ipari ingatlan
Eladó ipari ingatlan

Monorierdő

135 M Ft
2250 m²
606 m2
Eladó ipari ingatlan
Eladó ipari ingatlan

Budaörs

300 M Ft
300 m2
Eladó családi ház
Eladó családi ház

Csömör, Csömör, Középhegy

229 M Ft
5 szoba
238 m2
Eladó családi ház
Eladó családi ház

Nagykőrös

69 M Ft
1 + 4 szoba
150 m2
Eladó ipari ingatlan
Eladó ipari ingatlan

Újhartyán

218.736 M Ft
36456 m2
Eladó ipari ingatlan
Eladó ipari ingatlan

Inárcs

380 M Ft
1300 m2
Eladó ikerház
Eladó ikerház

Üröm, Üröm

126.9 M Ft
4 szoba
128 m2
Eladó családi ház
Eladó családi ház

Pilis

81.9 M Ft
3 szoba
130 m2
Eladó téglalakás
Eladó téglalakás

Szob

132 M Ft
5 + 2 szoba
187 m2
Eladó ipari ingatlan
Eladó ipari ingatlan

Dunaharaszti

788 M Ft
11220 m²
11220 m2
Eladó ipari ingatlan
Eladó ipari ingatlan

Dunaharaszti

165 M Ft
7500 m²
5500 m2
Eladó családi ház
Eladó családi ház

Szigetcsép

109.9 M Ft
3 szoba
77 m2
Eladó ipari ingatlan
Eladó ipari ingatlan

Újhartyán

232.524 M Ft
38754 m2
Eladó ipari ingatlan
Eladó ipari ingatlan

Dunaharaszti

525 M Ft
7500 m²
17500 m2
Eladó ipari ingatlan
Eladó ipari ingatlan

Vecsés

297 M Ft
6600 m2
Eladó ipari ingatlan
Eladó ipari ingatlan

Felsőpakony

770 M Ft
5090 m²
2700 m2
Eladó ipari ingatlan
Eladó ipari ingatlan

Dunaharaszti

300 M Ft
6000 m²
6020 m2
Eladó ipari ingatlan
Eladó ipari ingatlan

Monorierdő

135 M Ft
2250 m²
606 m2

Falusi CSOK ingatlanok

Eladó családi ház
Eladó családi ház

Somogygeszti

38.6 M Ft
3 + 1 szoba
98 m2
Eladó családi ház
Eladó családi ház

Tarján

31.5 M Ft
3 szoba
120 m2
Eladó családi ház
Eladó családi ház

Murony

19.9 M Ft
3 szoba
94 m2
Eladó családi ház
Eladó családi ház

Tésenfa, Kossuth utca 23/a

5.55 M Ft
1 + 1 szoba
109 m2
Eladó családi ház
Eladó családi ház

Nyáregyháza

47 M Ft
4 szoba
127 m2
Eladó családi ház
Eladó családi ház

Szabadbattyán

136 M Ft
5 szoba
226 m2
Eladó családi ház
Eladó családi ház

Hunya

10.99 M Ft
3 szoba
80 m2
Eladó családi ház
Eladó családi ház

Gógánfa

22.99 M Ft
3 szoba
93 m2