NapForrás 20 - Buda

Eladó ikerház
Veresegyház

+ 15 kép 1/18
158 800 000 Ft158.8 M Ft 1 095 172 Ft/m2
5 szoba
145 m²
építés éve:2026

Részletes adatok

Telekméret: 480 m2
Fűtés: Egyéb
Parkolás: Garázs
Energetikai besorolás: A+

Az OTP Bank lakáshitel ajánlataFizetett hirdetés

+36 30 960
Ludas Judit
referens

Érdekel az OTP Bank kedvezményes lakáshitel ajánlata? *

* A kérdésre „Igen” válasz bejelölése esetén, az „Üzenet küldése” gombra kattintva kijelentem, hogy az OTP Bank Nyrt. Adatkezelési tájékoztatójának tartalmát megismertem és tudomásul vettem.

Eladó ikerház leírása

Eladásra kínáljuk egy új építésű projetben, 960 nm-es telken épülő ikerház mindkét felét Veresegyház kertvárosi részén, a Harmatok városrészben, gyönyörű természeti környezetben, aszfaltozott utcában.

Jelen ikerház fél nettó 145 nm hasznos alapterületű két szintes épület + 20 nm-es fedett garázs, valamint 20 nm-es terasz és fedett belépő.

Az ingatlan 5 szobával rendelkezik és majd 500 nm-es telekrész tartozik hozzá.

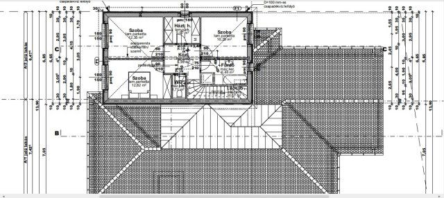
HELYISÉGEK:
Földszint
Nappali: 19,5 nm
Étkező-konyha: 18,5 nm
Szoba1: 10 nm
Előtér: 8,6 nm
Kamra : 2,2 nm
Fürdő1: 3, 5 nm
Lépcsőház: 2,4 nm
+1,8 nm fedett belépő+19 nm terasz+20 nm garázs
Emelet
Szoba2: 12,4 nm
Szoba3: 10,3 nm
Szoba4: 12,8 nm
Hátartási helyiség: 5 nm
Fürdő2: 6,5 nm
WC: 1,7 nm
Közlekedő: 5,9 nm
Lépcsőház: 4,7 nm

Nappali+ 4 hálószoba, dupla komfort!

MŰSZAKI TARTALOM:

Az épület PTH 30-as falazóelemből, 12cm-es aljzatszigeteléssel, 10cm-es grafitos EPS homlokzati és 25cm-es födém hőszigeteléssel, beton födémmel, Bramac betoncserép fedéssel épül. Korszerű 5-légkamrás műanyag nyílászárók kerülnek beépítésre 3 rétegű üvegezéssel, elektromos redőny előkészítéssel.

A fűtést, hűtést és meleg víz ellátást a legkorszerűbb hőszivattyús rendszer működteti beépített puffertartállyal kiegészítve, padlófűtéses hőleadással, H-tarifás villanyórával. Napelem és riasztó rendszer előkészítést valamint minden szobában klíma kiállást tartalmazza az ár.

KÖRNYEZET:

Veresegyház egyik legszebb városrészében, kertvárosi környezetben épül az ingatlan.
Ajánlom mindenkinek, akik nyugodt, zöldövezeti környezetben szeretnének élni.
Veresegyház rendekezik minden olyan infrastruktúrával, amely a mindennapi élethez elengedhetetlen: iskolák, óvodák, bevásárlási lehetőségek széles választéka, sportcentrumok, színház, egészségügyi központ.
Helyi és kistérségi buszok könnyítik a közlekedést.
Budapest mind tömegközlekedéssel, mind autóval 20-45 perc alatt elérhető.

A beruházó több évtizedes tapasztalattal rendelkező, tőke erős cég, referenciáik a környéken igény esetén megtekinthetőek.

Tervezett átadás. 2026.III. negyedévben.

Ugyanitt az ikerház másik fele is eladó, amely 1 szintes, 4 szobás épület, hasonló műszaki tartalommal, amelynek az irányára: 145 800 000 Ft

Az ingatlanok 10% -al leköthetők!

TÁMOGATOTT ÉS PIACI HITELEKBEN KOLLÉGÁINK OTTHON VANNAK.

EBBEN IS ÁLLUNK VEVŐINK RENDELKEZÉSÉRE.

Várom megtisztelő hívását.

ID:392756 ...TOVÁBBI, TÖBBEZRES INGATLAN KÍNÁLAT: www.gdn-ingatlan.hu - GDN azonosító: 392756

Hirdetés feltöltve: 2026. 02. 24. Utoljára módosítva: 2026. 02. 25.

5 szobás ikerházak ára Veresegyházon

Ebből az összehasonlításból megtudhatod, hogyan viszonyul a lakás ára a környékbeli ikerházak átlagos árához. Ez nem azt jelenti, hogy ennyivel olcsóbb vagy drágább, mint amennyit a lakás ér, hanem hogy ennyivel tér el a környékbeli átlagtól.

Ennek a m² ára
Veresegyház m² ár
1095 e Ft
977 e Ft -12%
Ennek az ára
Veresegyház átlagár
158.8 M Ft m Ft
144.9 m Ft -10%

Az ingatlan elhelyezkedése

Cím: Veresegyház

Eladó ikerházak a környékről

Veresegyház
Eladó ikerház

Veresegyház

120 M Ft
4 szoba
109 m²
Pilisjászfalu
Eladó ikerház

Pilisjászfalu

82.279 M Ft
4 szoba
73 m²
Mogyoród
Eladó ikerház

Mogyoród

135 M Ft
5 szoba
137 m²
Veresegyház
Eladó ikerház

Veresegyház

120 M Ft
4 szoba
109 m²
Veresegyház
Eladó ikerház

Veresegyház

99.7 M Ft
6 szoba
210 m²
Vác
Eladó ikerház

Vác

89.9 M Ft
4 szoba
91 m²
Szentendre
Eladó ikerház

Szentendre

179 M Ft
5 + 1 szoba
147 m²
Veresegyház
Eladó ikerház

Veresegyház

148.5 M Ft
5 szoba
120 m²
Veresegyház
Eladó ikerház

Veresegyház

99.7 M Ft
6 szoba
210 m²
Veresegyház
Eladó ikerház

Veresegyház

229 M Ft
5 szoba
170 m²
Pécel
Eladó ikerház

Pécel

149.9 M Ft
5 szoba
306 m²
Diósd
Eladó ikerház

Diósd

206.25 M Ft
5 szoba
184 m²
Nagytarcsa
Eladó ikerház

Nagytarcsa

119.9 M Ft
4 szoba
103 m²
Dunakeszi
Eladó ikerház

Dunakeszi

149 M Ft
1 + 4 szoba
127 m²
Budakalász
Eladó ikerház

Budakalász

195 M Ft
5 + 2 szoba
170 m²
Veresegyház
Eladó ikerház

Veresegyház

110 M Ft
4 szoba
97 m²
Veresegyház
Eladó ikerház

Veresegyház

99.7 M Ft
6 szoba
210 m²
Vác
Eladó ikerház

Vác

149.9 M Ft
5 szoba
202 m²
Szentendre
Eladó ikerház

Szentendre

718 M Ft
10 + 2 szoba
578 m²
Pécel, Pécel - kertváros
Eladó ikerház

Pécel

127 M Ft
4 szoba
125 m²
Veresegyház
Eladó ikerház

Veresegyház

109 M Ft
4 szoba
114 m²
Mogyoród
Eladó ikerház

Mogyoród

135 M Ft
5 szoba
137 m²
Veresegyház
Eladó ikerház

Veresegyház

120 M Ft
4 szoba
90 m²
Kiskunlacháza
Eladó ikerház

Kiskunlacháza

44.9 M Ft
2 szoba
39 m²

Falusi CSOK ingatlanok

Iváncsa
Eladó családi ház

Iváncsa

32.5 M Ft
2 + 1 szoba
72 m²
Bugac
Eladó családi ház

Bugac

90 M Ft
5 szoba
230 m²
Tésenfa, Kossuth utca 23/a
Eladó családi ház

Tésenfa

5.55 M Ft
1 + 1 szoba
109 m²
Tápiószőlős
Eladó családi ház

Tápiószőlős

47.5 M Ft
5 szoba
122 m²
Mezőkeresztes
Eladó ikerház

Mezőkeresztes

14.9 M Ft
2 + 1 szoba
70 m²
Szigetcsép
Eladó családi ház

Szigetcsép

92.9 M Ft
4 szoba
145 m²
Kaposgyarmat
Eladó családi ház

Kaposgyarmat

695 M Ft
6 szoba
610 m²
Tápióbicske
Eladó családi ház

Tápióbicske

15 M Ft
2 szoba
62 m²